St Peters Gardens, Great Moulton
By Brown & Co
£ 595,000
Reviews
3 out of 5 stars
Brown & Co says ..
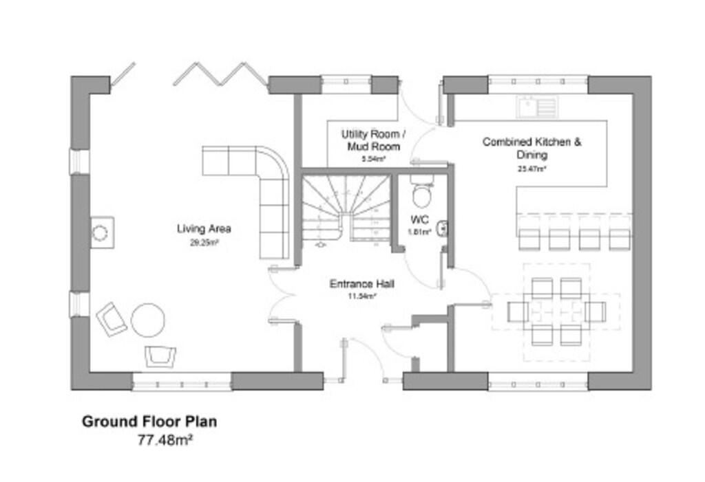
The Wicklow is a striking detached family home in the exclusive St Peters Gardens, a boutique development of just eight homes. Offering 1,657 sq ft of thoughtfully designed living space, it combines modern comfort, premium finishes, and the privacy perfect for contemporary family life. An early v...
Property Oracle says ..
This is a modern detached property located in Great Moulton, South Norfolk. The house appears to be newly built and in excellent condition, featuring a modern kitchen and a well-thought-out floor plan. While the plot size isn’t specified, there seems to be adequate garden space. The location offers a more rural setting, which may appeal to some, and is within a reasonable distance of well-rated schools. The price appears competitive compared to other new builds in the area. Overall, this property presents a good opportunity for those seeking a modern family home in a quieter location.
Therefore, we give this property 7 / 10. *Disclaimer: This is our option and does constitute a recommendation or financial advice. Do your own research. *
- Price
- 7
- Condition
- 9
- Location
- 7
- Land
- 6
- Bedrooms
- 4
- Bathrooms
- 2
The heatmap indicates the level of crime in the area. The color of the heatmap indicates the crime severity and recency.
Metrics Year-on-Year
- Average area value
- 262,833.00 £Decreased by 38.15 %
- Average area rental value
- 1,350.00 £/moIncreased by 3.85 %
- Est rental Yield
- 6.16 %Increased by 67.85 %
- Crime Rate
- 47.00 %Unchanged by 0.00 %
Agent Activity
Brown & Co created the listing.
Nearby Schools
| Name | Type | Ofsted | Distance |
|---|---|---|---|
| Aslacton Primary School | Academy Converter | Good | 1.79 KM |
| Forncett St Peter Church Of England Voluntary Aided Primary School | Voluntary Aided School | Outstanding | 2.42 KM |
| Tivetshall Community Primary School | Academy Converter | Good | 3.81 KM |
| Manor Field Infant And Nursery School | Academy Converter | Good | 4.62 KM |
| Long Stratton Area Children'S Centre | Children's Centre | 4.63 KM |
Images
Nearby Streets
| Name | Average Price | Average Sqft | Distance |
|---|---|---|---|
| Gore Lane | £ 0 | 0 | 0.00 KM |
Nearby Listings
| Address | Price | Type | Score | Distance |
|---|---|---|---|---|
| Plot 1, St Peters Gardens, Great Moulton, Norfolk | £ 650,000 | BUY | 6 / 10 | 0.00 KM |
| St Peters Gardens, Great Moulton | £ 595,000 | BUY | 7 / 10 | 0.00 KM |
| The Wexford, St Peters Gardens, Great Moulton, Norfolk | £ 675,000 | BUY | 6 / 10 | 0.00 KM |
| Plot 3, St Peters Gardens, Great Moulton, Norfolk | £ 650,000 | BUY | 6 / 10 | 0.00 KM |
| Firth Way, Great Moulton, Norwich, Norfolk, NR15 | £ 650,000 | BUY | 6 / 10 | 0.14 KM |
Nearby Properties
| Address | Price | Distance |
|---|---|---|
| 4 Frith Way | £ 159,500 | 0.18 KM |
| 10 Frith Way | £ 215,000 | 0.18 KM |
| 6 Orchard Crescent | £ 124,950 | 0.19 KM |
| 10 Orchard Crescent | £ 195,000 | 0.19 KM |
| 8 Orchard Crescent | £ 156,000 | 0.19 KM |