5 Kilbrannan Avenue, Saltcoats, KA21 6DL
By Taylor & Henderson
£ 104,000
Reviews
2 out of 5 stars
Taylor & Henderson says ..
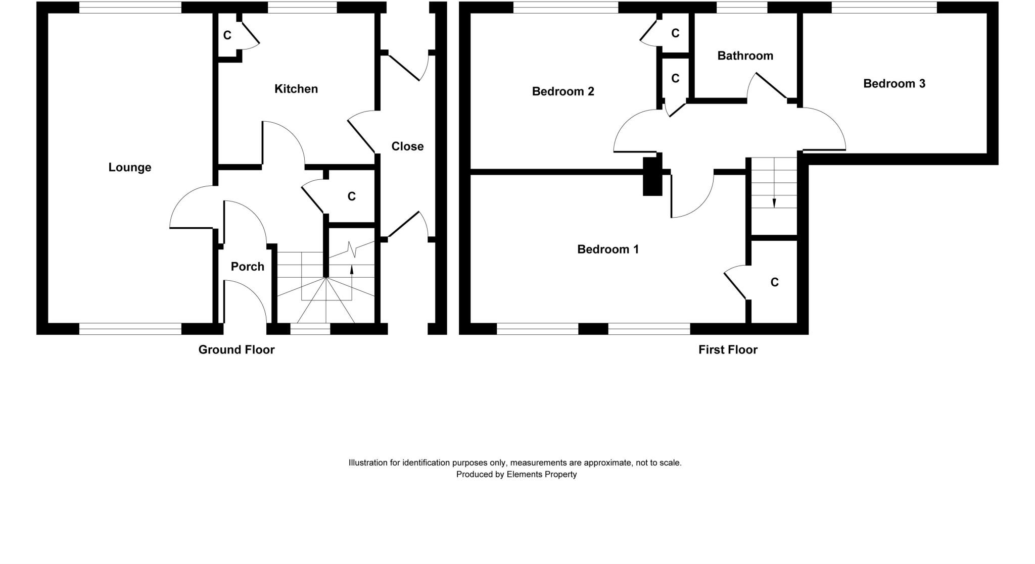
Taylor & Henderson are delighted to offer to the market this mid terraced villa situated within established residential area close to all local amenities and bus routes. The spacious accommodation comprises entrance porch, reception hallway, lounge, kitchen with door leading to the close which...
Property Oracle says ..
This three-bedroom terraced house in Saltcoats, North Ayrshire, presents a mixed bag. Its location is adequate, offering access to local amenities and transport links, namely nearby train stations. However, information on the quality of nearby schools is absent, which is a significant consideration for families. The property’s condition appears to be fair. While the structure is sound, the interior design and fittings are dated and would require updating or renovation to meet modern standards. The kitchen and bathroom specifically seem in need of some modernisation. The property includes a garden, a desirable feature, though its exact size and condition remain uncertain. The listed price of £104,000 sits within the range of similar properties in the area, making it a reasonably priced option. However, without more comprehensive details on average property price per square foot in Saltcoats, a firmer value assessment is not possible. Overall, the property presents an opportunity for a buyer willing to undertake some renovations to enhance its appearance and functionality. Buyers should conduct thorough inspections and take into account the need for modernisation before committing to purchase.
Therefore, we give this property 5 / 10. *Disclaimer: This is our option and does constitute a recommendation or financial advice. Do your own research. *
- Price
- 7
- Condition
- 5
- Location
- 6
- Land
- 4
- Bedrooms
- 3
- Bathrooms
- 1
- Sqft (est)
- 780.76
The heatmap indicates the level of crime in the area. The color of the heatmap indicates the crime severity and recency.
Metrics Year-on-Year
- Average area value
- 327,363.00 £Increased by 26.97 %
- Est sale value
- 299,811.84 £Increased by 70.67 %
- Average area rental value
- 1,112.00 £/moIncreased by 23.69 %
- Est letting value
- 780.76 £/mo
- Est rental Yield
- 4.08 %Decreased by 2.39 %
- Crime Rate
- 0.00 %
Agent Activity
Taylor & Henderson created the listing.
Images
Nearby Streets
| Name | Average Price | Average Sqft | Distance |
|---|---|---|---|
| Dykes Place | £ 99,000 | 0 | 0.00 KM |
| Kilmory Road | £ 0 | 0 | 0.00 KM |
| Ross Road | £ 75,000 | 0 | 0.00 KM |
| Pladda Road | £ 90,000 | 0 | 0.00 KM |
| Murdoch Court | £ 0 | 0 | 0.00 KM |
Nearby Transport
| Name | NLC | TLC | Distance |
|---|---|---|---|
| Saltcoats | 9547 | SLT | 1.45 KM |
| Ardrossan South Beach | 9569 | ASB | 1.46 KM |
| Ardrossan Town | 9455 | ADN | 2.73 KM |
| Ardrossan Harbour | 9453 | ADS | 3.63 KM |
| Stevenston | 9553 | STV | 4.41 KM |
Nearby Listings
| Address | Price | Type | Score | Distance |
|---|---|---|---|---|
| 11 Kilmory Road, Saltcoats, KA21 6DQ | £ 99,000 | BUY | 7 / 10 | 0.16 KM |
| 6 Dykes Place, Saltcoats, KA21 6BD | £ 134,000 | BUY | 6 / 10 | 0.17 KM |
| 30 Catacol Avenue, Saltcoats, KA21 6AD | £ 93,500 | BUY | 7 / 10 | 0.18 KM |
| 35 Mckillop Place, Saltcoats, KA21 6BA | £ 119,000 | BUY | 7 / 10 | 0.19 KM |
| Mckillop Place, Saltcoats, Ayrshire, KA21 | £ 115,000 | BUY | 8 / 10 | 0.19 KM |