Coldstream Street, Llanelli
DA

Coldstream Street, Llanelli

By Davies Craddock

£ 124,995

Reviews

2 out of 5 stars

Davies Craddock says ..

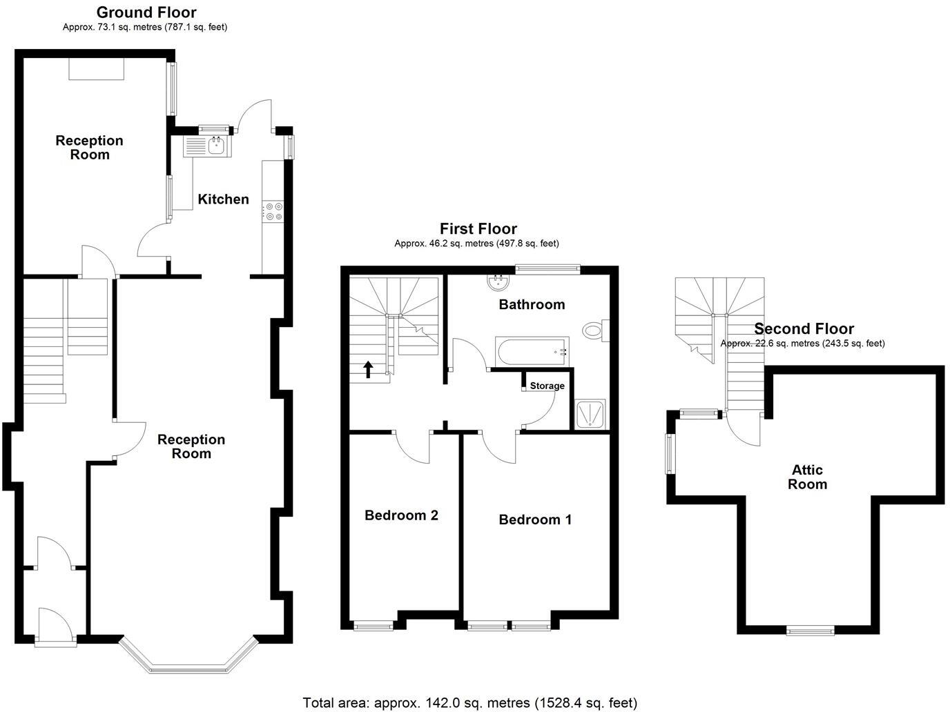
Davies Craddock Estates are delighted to present for sale this charming semi-detached property on Coldstream Street, Llanelli. In need of a full renovation, this home presents a fantastic opportunity for an investor or a homeowner with a vision. The property offers huge potential, with a...

Property Oracle says ..

The property is a semi-detached house located on Coldstream Street in Llanelli. It has 2 bedrooms and 1 bathroom. The property is in need of full renovation. The average price for similar properties in the area is £310,998. However, this property is in need of full renovation, which accounts for the lower price. Llanelli train station is only 1km away.

Therefore, we give this property 5 / 10. *Disclaimer: This is our option and does constitute a recommendation or financial advice. Do your own research. *

Price
7
Condition
3
Location
7
Land
4
Bedrooms
2
Bathrooms
1

The heatmap indicates the level of crime in the area. The color of the heatmap indicates the crime severity and recency.

Metrics Year-on-Year

Average area value
310,998.00 £
Decreased by 1.08 %
from 314,389.00 £
Average area rental value
1,363.00 £/mo
Increased by 13.58 %
from 1,200.00 £/mo
Est rental Yield
5.26 %
Increased by 14.85 %
from 4.58 %
Crime Rate
11.00 %
Unchanged by 0.00 %
from 11.00 %

Agent Activity

  • Davies Craddock created the listing.

Nearby Schools

NameTypeOfstedDistance
Pentip V.A. C.I.W. Primary SchoolWelsh Establishment0.24 KM
Old Road C.P. Primary SchoolWelsh Establishment0.46 KM
Ysgol Gymraeg FfwrnesWelsh Establishment1.08 KM
Bigyn County PrimaryWelsh Establishment1.16 KM
Heol Goffa SchoolWelsh Establishment1.56 KM

Images

IMG-20250913-WA0003.jpg IMG-20250913-WA0016.jpg IMG-20250913-WA0017.jpg IMG-20250913-WA0018.jpg IMG-20250913-WA0022.jpg IMG-20250913-WA0019.jpg IMG-20250913-WA0023.jpg IMG-20250915-WA0006.jpg IMG-20250915-WA0004.jpg IMG-20250915-WA0005.jpg IMG-20250913-WA0009.jpg IMG-20250913-WA0015.jpg IMG-20250913-WA0010.jpg IMG-20250913-WA0008.jpg IMG-20250913-WA0012.jpg IMG-20250913-WA0014.jpg IMG-20250913-WA0013.jpg IMG-20250913-WA0007.jpg IMG-20250913-WA0001.jpg IMG-20250913-WA0002.jpg IMG-20250913-WA0011.jpg Screenshot 2025-09-16 122744.png Screenshot 2025-09-16 122803.png

Nearby Streets

NameAverage PriceAverage SqftDistance
West End £ 000.00 KM
John Street £ 000.00 KM
Park Crescent £ 190,00000.00 KM
Murray Street £ 000.00 KM
Thomas Street £ 000.00 KM

Nearby Transport

NameNLCTLCDistance
Llanelli4133LLE1.08 KM
Bynea4124BYE7.34 KM
Pembrey And Burry Port4140PBY9.23 KM
Llangennech4138LLH9.49 KM

Nearby Listings

AddressPriceTypeScoreDistance
Coldstream Street, Llanelli £ 124,995BUY5 / 100.00 KM
Coldstream Street, Llanelli £ 179,995BUY6 / 100.02 KM
Coldstream Street, Llanelli, Carmarthenshire, SA15 £ 190,000BUY5 / 100.08 KM
Coleshill Terrace, Llanelli £ 275,000BUYUnknown0.12 KM
West End, Llanelli, Carmarthenshire, SA15 £ 145,000BUY5 / 100.15 KM

Nearby Properties

AddressPriceDistance
36 Coldstream Street £ 105,0000.06 KM
12 Coldstream Street £ 137,0000.06 KM
8a Coldstream Street £ 50,0000.06 KM
5 Coldstream Street £ 110,5000.09 KM
57 Coldstream Street £ 138,9950.09 KM