Marchand Petit says ..
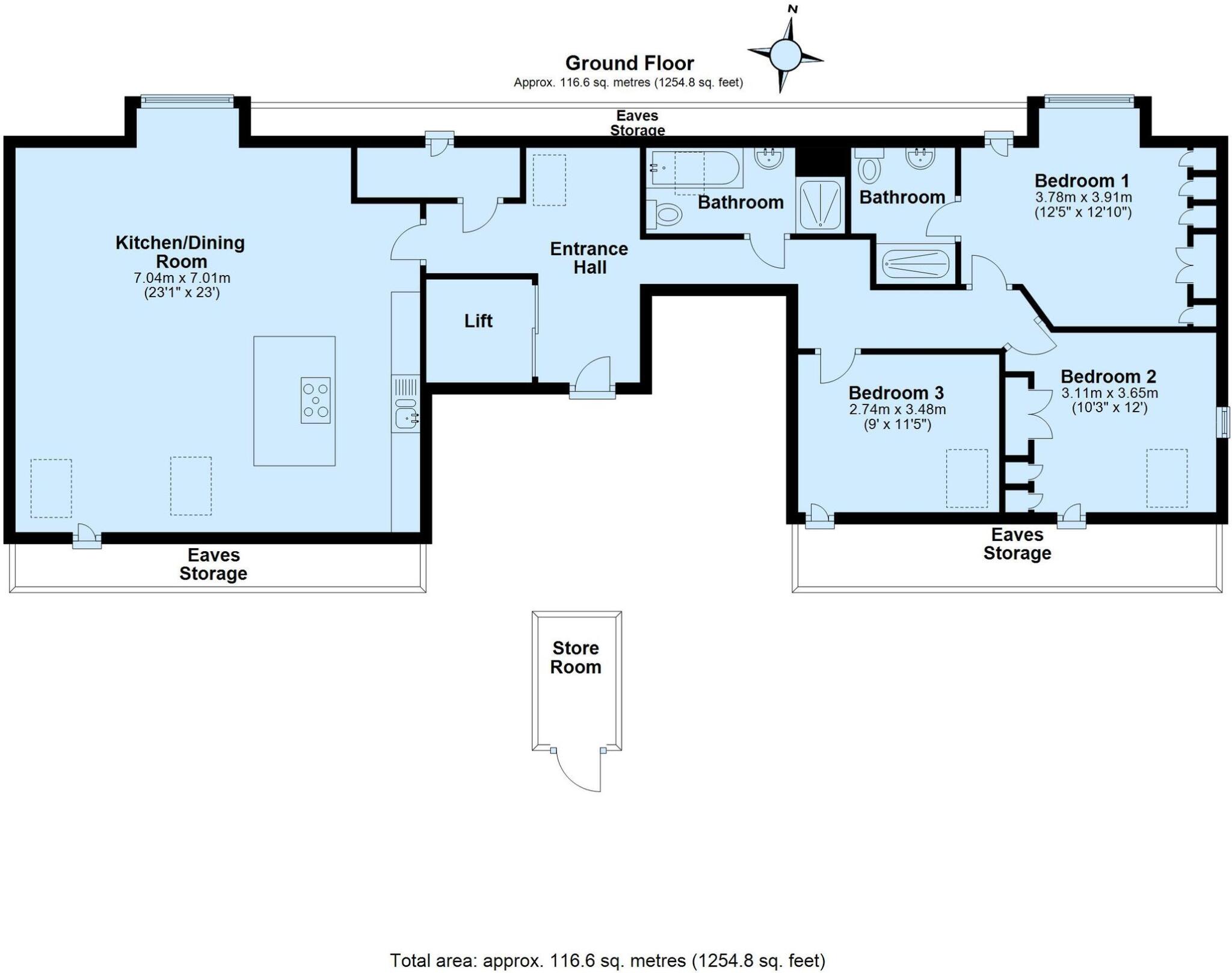
A wonderful penthouse apartment with direct lift access which is situated in a central level position in the heart of this beautiful waterside South Hams town with parking.
Property Oracle says ..
Therefore, we give this property 6 / 10. *Disclaimer: This is our option and does constitute a recommendation or financial advice. Do your own research. *
- Price
- 9
- Condition
- 8
- Location
- 7
- Land
- 1
- Bedrooms
- 3
- Bathrooms
- 2
- Sqft (est)
- 915.12
The heatmap indicates the level of crime in the area. The color of the heatmap indicates the crime severity and recency.
Metrics Year-on-Year
- Average area value
- 831,571.00 £Increased by 59.88 %
- Est sale value
- 745,822.80 £Increased by 115.04 %
- Average area rental value
- 1,217.00 £/moDecreased by 4.92 %
- Est letting value
- 915.12 £/mo
- Est rental Yield
- 1.76 %Decreased by 40.34 %
- Crime Rate
- 27.00 %Unchanged by 0.00 %
from 520,136.00 £
from 346,830.48 £
from 1,280.00 £/mo
from 0.00 £/mo
from 2.95 %
from 27.00 %
Agent Activity
Marchand Petit created the listing.
Nearby Schools
| Name | Type | Ofsted | Distance |
|---|---|---|---|
| Kingswear Community Primary School | Academy Converter | Good | 1.50 KM |
| Dartmouth Academy | Academy Sponsor Led | Good | 1.51 KM |
| Dartmouth & District Children'S Centre | Children's Centre | 1.58 KM | |
| St John The Baptist Roman Catholic Primary School, Dartmouth | Academy Converter | Good | 1.73 KM |
| Stoke Fleming Community Primary School | Academy Converter | 3.77 KM |
Images
Nearby Streets
| Name | Average Price | Average Sqft | Distance |
|---|---|---|---|
| Albert Place | £ 575,000 | 0 | 0.00 KM |
| Charles Street | £ 385,000 | 0 | 0.00 KM |
| Cox's Steps | £ 475,000 | 0 | 0.00 KM |
| Undercliff | £ 0 | 0 | 0.00 KM |
| Chapel Lane | £ 800,000 | 0 | 0.00 KM |
Nearby Transport
| Name | NLC | TLC | Distance |
|---|---|---|---|
| Paignton | 3427 | PGN | 9.50 KM |
Nearby Listings
| Address | Price | Type | Score | Distance |
|---|---|---|---|---|
| Victoria Road, Dartmouth | £ 495,000 | BUY | 6 / 10 | 0.00 KM |
| Westwater Court, Victoria Road, Dartmouth | £ 325,000 | BUY | 6 / 10 | 0.00 KM |
| Victoria Road, Dartmouth, Devon, TQ6 | £ 295,000 | BUY | 5 / 10 | 0.00 KM |
| Westwater Court, Dartmouth | £ 385,000 | BUY | 8 / 10 | 0.01 KM |
| Lake Street, Dartmouth, TQ6 | £ 250,000 | BUY | 6 / 10 | 0.04 KM |
Nearby Properties
| Address | Price | Distance |
|---|---|---|
| 16 Victoria Road | £ 515,000 | 0.04 KM |
| 12b Victoria Road | £ 235,000 | 0.04 KM |
| 30 Victoria Road | £ 400,000 | 0.05 KM |
| 9 Roseville Street | £ 167,500 | 0.06 KM |
| 19 South Ford Road | £ 390,000 | 0.07 KM |