Grey & Co says ..
Detached 2 bedroom bungalow in Wembley with large reception, kitchen diner, extended, side conservatory, ample parking and a huge garden. Perfect for families or seasoned investors.
Property Oracle says ..
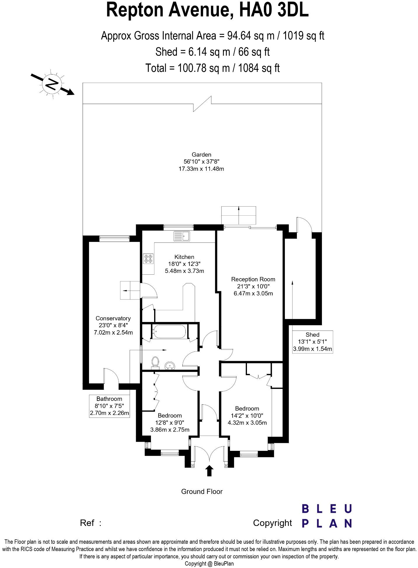
Repton Avenue, Wembley, is located in the Sudbury area of Brent, Greater London. The property is a detached bungalow with two bedrooms and one bathroom, and a total area of 1,599.76 square feet. The plot size is 1,084 square feet. The asking price is £650,000. The property benefits from being close to several transportation links and well-regarded schools. Based on the provided images, the property appears to be in generally good condition, although some minor updating or modernisation may be desirable. The garden is of a reasonable size and includes a paved patio area and a lawn. Considering the average house price in the area and the average price per square foot, the asking price appears to be at the higher end of the market. However, the property’s size, detached nature, and location near good schools and transport links justify a premium compared to the average price per square foot. The condition of the property, while not needing major work, could be a factor in determining the final sale price.
Therefore, we give this property 7 / 10. *Disclaimer: This is our option and does constitute a recommendation or financial advice. Do your own research. *
- Price
- 7
- Condition
- 7
- Location
- 8
- Land
- 7
- Bedrooms
- 2
- Bathrooms
- 1
- Sqft (est)
- 1,599.76
- Lot (est)
- 1,084.00
The heatmap indicates the level of crime in the area. The color of the heatmap indicates the crime severity and recency.
Metrics Year-on-Year
- Average area value
- 497,772.00 £Increased by 11.11 %
- Est sale value
- 958,256.24 £Increased by 37.70 %
- Average area rental value
- 1,863.00 £/moDecreased by 5.72 %
- Est letting value
- 3,199.52 £/moIncreased by 100.00 %
- Est rental Yield
- 4.49 %Decreased by 15.12 %
- Crime Rate
- 4.00 %Unchanged by 0.00 %
Agent Activity
Grey & Co created the listing.
Nearby Schools
| Name | Type | Ofsted | Distance |
|---|---|---|---|
| Wembley High Technology College | Academy Converter | 0.70 KM | |
| East Lane Primary School | Academy Converter | Outstanding | 0.78 KM |
| North Brent School | Free Schools | 0.78 KM | |
| Barham Primary School | Community School | Good | 1.00 KM |
| Sudbury Primary School | Academy Converter | Good | 1.09 KM |
Images
Nearby Streets
| Name | Average Price | Average Sqft | Distance |
|---|---|---|---|
| Beaumont Court | £ 1,100,000 | 0 | 0.00 KM |
| Marloes Close | £ 625,000 | 0 | 0.00 KM |
| Allendale Road | £ 367,500 | 0 | 0.00 KM |
| Cherry Close | £ 0 | 0 | 0.00 KM |
| Bridgewater Road | £ 0 | 0 | 0.00 KM |
Nearby Transport
| Name | NLC | TLC | Distance |
|---|---|---|---|
| Sudbury And Harrow Road | 1483 | SUD | 0.64 KM |
| North Wembley | 1422 | NWB | 0.94 KM |
| South Kenton | 1453 | SOK | 1.51 KM |
| Wembley Central | 1423 | WMB | 1.60 KM |
| Wembley Stadium | 1509 | WCX | 2.73 KM |
Nearby Listings
| Address | Price | Type | Score | Distance |
|---|---|---|---|---|
| Repton Avenue Wembley HA0 3DL | £ 650,000 | BUY | 7 / 10 | 0.00 KM |
| Sudbury | £ 600,000 | BUY | 6 / 10 | 0.04 KM |
| Rugby Avenue, WEMBLEY | £ 400,000 | BUY | 6 / 10 | 0.08 KM |
| Rugby Avenue, Wembley, Middlesex, HA0 3DP | £ 450,000 | BUY | 6 / 10 | 0.09 KM |
| Beaumont Avenue, Wembley | £ 625,000 | BUY | 6 / 10 | 0.12 KM |
Nearby Properties
| Address | Price | Distance |
|---|---|---|
| 9 Repton Avenue | £ 540,000 | 0.07 KM |
| 5 Repton Avenue | £ 275,000 | 0.07 KM |
| 1 Repton Avenue | £ 330,000 | 0.07 KM |
| 2a Repton Avenue | £ 510,000 | 0.07 KM |
| 8 Repton Avenue | £ 215,000 | 0.07 KM |