10D, Gills Hall Lane, Radlett, Radlett, Hertfordshire, WD7 8DF
By The Shared Ownership Shop
£ 175,000
Reviews
3 out of 5 stars
The Shared Ownership Shop says ..
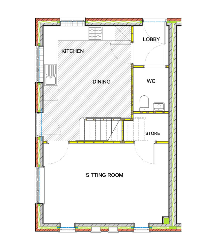
The Shared Ownership Shop are delighted to offer to the market this fantastic three-bedroom house located in the sought after village of Radlett. Available now on the shared ownership scheme. Price shown is for a 25% share.
Property Oracle says ..
This property is a 3-bedroom end of terrace house located in Radlett, Hertfordshire. The property is newly built and appears to be in excellent condition, with modern fixtures and fittings throughout. The location is convenient, with nearby schools and transportation links. The list price of £175,000 seems reasonable considering the current market conditions in the area and the property’s modern condition. However, the lack of plot size information makes it difficult to fully assess the value.
Therefore, we give this property 7 / 10. *Disclaimer: This is our option and does constitute a recommendation or financial advice. Do your own research. *
- Price
- 7
- Condition
- 10
- Location
- 8
- Land
- 3
- Bedrooms
- 3
- Bathrooms
- 1
- Sqft (est)
- 337.82
The heatmap indicates the level of crime in the area. The color of the heatmap indicates the crime severity and recency.
Metrics Year-on-Year
- Average area value
- 3,580,000.00 £Increased by 267.59 %
- Est sale value
- 558,078.64 £Increased by 118.52 %
- Average area rental value
- 2,900.00 £/moDecreased by 10.66 %
- Est letting value
- 337.82 £/moDecreased by 50.00 %
- Est rental Yield
- 0.97 %Decreased by 75.75 %
- Crime Rate
- 14.00 %Unchanged by 0.00 %
Agent Activity
The Shared Ownership Shop created the listing.
Nearby Schools
| Name | Type | Ofsted | Distance |
|---|---|---|---|
| St John'S Church Of England Infant And Nursery School | Academy Converter | 0.32 KM | |
| Fair Field Junior School | Academy Converter | Good | 0.63 KM |
| H6 Radlett Link Family Centre | Children's Centre | 1.22 KM | |
| The Aldenham Foundation | Other Independent School | 1.93 KM | |
| Edge Grove School | Other Independent School | 2.01 KM |
Images
Nearby Streets
| Name | Average Price | Average Sqft | Distance |
|---|---|---|---|
| Maytrees | £ 2,250,000 | 0 | 0.00 KM |
| Thelusson Court | £ 0 | 0 | 0.00 KM |
| Watling Street | £ 4,335,000 | 0 | 0.00 KM |
| Brook Drive | £ 0 | 0 | 0.00 KM |
| Mornington Road | £ 0 | 0 | 0.00 KM |
Nearby Transport
| Name | NLC | TLC | Distance |
|---|---|---|---|
| Radlett | 1546 | RDT | 1.33 KM |
| Bricket Wood | 1560 | BWO | 4.39 KM |
| How Wood (Hertfordshire) | 1563 | HWW | 4.52 KM |
| Park Street | 1561 | PKT | 5.17 KM |
| Garston (Hertfordshire) | 1559 | GSN | 5.95 KM |
Nearby Listings
| Address | Price | Type | Score | Distance |
|---|---|---|---|---|
| 10E, Gills Hall Lane, Radlett, Radlett, Hertfordshire, WD7 8DF | £ 171,250 | BUY | 7 / 10 | 0.00 KM |
| 10D, Gills Hall Lane, Radlett, Radlett, Hertfordshire, WD7 8DF | £ 175,000 | BUY | 7 / 10 | 0.00 KM |
| Gills Hill Lane, Radlett, Hertfordshire, WD7 | £ 760,000 | BUY | 7 / 10 | 0.08 KM |
| Gills Hill Lane, Radlett | £ 1,950,000 | BUY | 7 / 10 | 0.08 KM |
| Gills Hill Lane, Radlett | £ 760,000 | BUY | 6 / 10 | 0.10 KM |
Nearby Properties
| Address | Price | Distance |
|---|---|---|
| 30 Gills Hill Lane | £ 405,000 | 0.03 KM |
| 34 Gills Hill Lane | £ 1,010,000 | 0.03 KM |
| 10 Gills Hill Lane | £ 1,110,000 | 0.03 KM |
| 16 Gills Hill Lane | £ 669,000 | 0.03 KM |
| 14 Gills Hill Lane | £ 565,000 | 0.03 KM |