Greenwood Road, Upton, Wirral, Merseyside, CH49
By Bradshaw Farnham & Lea
£ 165,000
Reviews
3 out of 5 stars
Bradshaw Farnham & Lea says ..
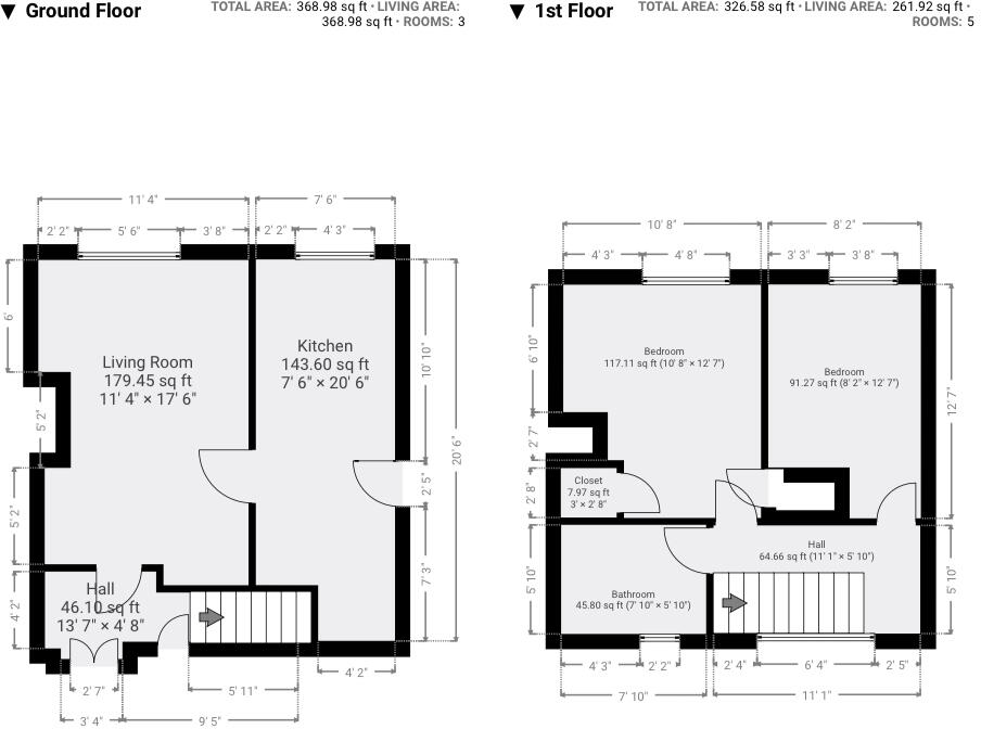
2-Bed End Terrace with Large Garden, Off-Road Parking & is being sold with No Onward Chain
Property Oracle says ..
This is a two-bedroom terraced house located in Upton, Wirral. The property offers a garden and is situated in a residential area with proximity to schools and transportation. While the interior appears to have some modern updates, the bathroom could benefit from renovation. The asking price of £165,000 seems reasonable given the property’s size, location, and condition, compared to other properties in the area. It would be ideal for a small family or first-time buyers.
Therefore, we give this property 7 / 10. *Disclaimer: This is our option and does constitute a recommendation or financial advice. Do your own research. *
- Price
- 8
- Condition
- 6
- Location
- 7
- Land
- 7
- Bedrooms
- 2
- Bathrooms
- 1
- Sqft (est)
- 368.98
The heatmap indicates the level of crime in the area. The color of the heatmap indicates the crime severity and recency.
Metrics Year-on-Year
- Average area value
- 364,766.00 £Decreased by 2.54 %
- Est sale value
- 117,335.64 £Increased by 5.30 %
- Average area rental value
- 1,277.00 £/moDecreased by 18.09 %
- Est letting value
- 368.98 £/moUnchanged by 0.00 %
- Est rental Yield
- 4.20 %Decreased by 16.00 %
- Crime Rate
- 12.00 %Unchanged by 0.00 %
Agent Activity
Bradshaw Farnham & Lea created the listing.
Nearby Schools
| Name | Type | Ofsted | Distance |
|---|---|---|---|
| Meadowside School | Community Special School | Requires improvement | 0.26 KM |
| Gilbrook School | Community Special School | Outstanding | 0.30 KM |
| Woodchurch Cofe Primary School | Voluntary Aided School | Requires improvement | 0.35 KM |
| Ganneys Meadow Early Years Centre | Children's Centre Linked Site | 1.03 KM | |
| Ganneys Meadow Nursery School And Family Centre | Local Authority Nursery School | Outstanding | 1.03 KM |
Images
Nearby Streets
| Name | Average Price | Average Sqft | Distance |
|---|---|---|---|
| Druids Way | £ 0 | 0 | 0.00 KM |
| Church Lane | £ 150,000 | 0 | 0.00 KM |
| Ford Close | £ 0 | 0 | 0.00 KM |
| Champions Business Park | £ 0 | 0 | 0.00 KM |
| The Paddock | £ 0 | 0 | 0.00 KM |
Nearby Transport
| Name | NLC | TLC | Distance |
|---|---|---|---|
| Upton (Merseyside) | 2141 | UPT | 1.50 KM |
| Leasowe | 2237 | LSW | 3.77 KM |
| Bidston | 2136 | BID | 4.04 KM |
| Moreton (Merseyside) | 2151 | MRT | 4.32 KM |
| Birkenhead North | 2145 | BKN | 4.97 KM |
Nearby Listings
| Address | Price | Type | Score | Distance |
|---|---|---|---|---|
| Greenwood Road, Upton, Wirral, Merseyside, CH49 | £ 165,000 | BUY | 7 / 10 | 0.00 KM |
| Greenwood Road, Upton, Wirral, Merseyside, CH49 | £ 180,000 | BUY | 7 / 10 | 0.05 KM |
| Houghton Road, Woodcurch | £ 165,000 | BUY | 6 / 10 | 0.14 KM |
| Lower Green, Wirral | £ 195,000 | BUY | 6 / 10 | 0.15 KM |
| Woodland Road, Upton, Wirral | £ 190,000 | BUY | 7 / 10 | 0.15 KM |
Nearby Properties
| Address | Price | Distance |
|---|---|---|
| 75 Greenwood Road | £ 120,000 | 0.03 KM |
| 77 Greenwood Road | £ 135,000 | 0.03 KM |
| 91 Greenwood Road | £ 77,500 | 0.03 KM |
| 87 Greenwood Road | £ 92,500 | 0.03 KM |
| 106 Greenwood Road | £ 118,000 | 0.03 KM |