Northumberland Avenue, Margate, CT9
By Miles & Barr Exclusive
£ 550,000
Reviews
3 out of 5 stars
Miles & Barr Exclusive says ..
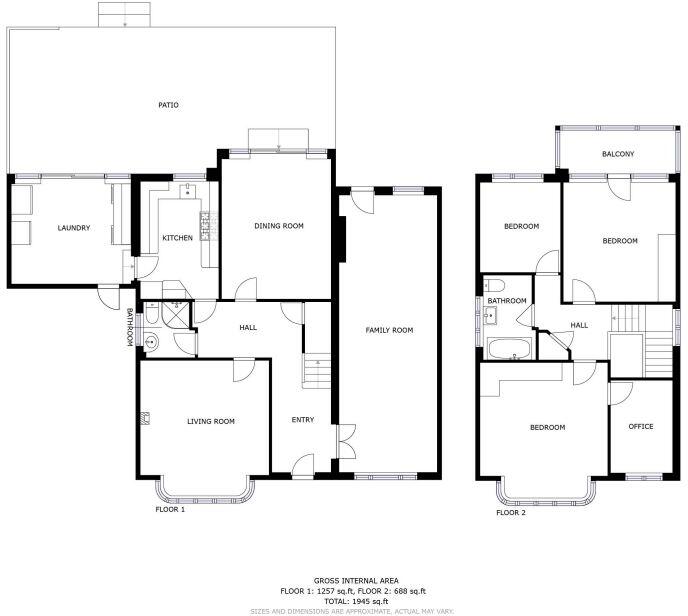
A delightful four bedroom detached home in Northumberland Avenue, Margate. A substantial and well presented family home occupying a large plot in a popular residential area this property has so much to offer! Internally the accommodation comprises - entrance hall, shower roo...
Property Oracle says ..
The property is a four-bedroom detached house located on Northumberland Avenue in Cliftonville East, Margate. It benefits from being close to several schools, including the Outstanding-rated Cliftonville Primary School, and is within reasonable distance of several Southeastern train stations. The property itself appears well-maintained and modernised, with a recently updated kitchen and bathrooms. The interior is presented in a contemporary style. There is a good-sized garden to the rear. While the list price is above the average for the area, the larger size of the property and its modern condition could justify this. More information on the plot size would improve the analysis.
Therefore, we give this property 7 / 10. *Disclaimer: This is our option and does constitute a recommendation or financial advice. Do your own research. *
- Price
- 7
- Condition
- 8
- Location
- 9
- Land
- 7
- Bedrooms
- 4
- Bathrooms
- 2
- Sqft (est)
- 1,945.00
The heatmap indicates the level of crime in the area. The color of the heatmap indicates the crime severity and recency.
Metrics Year-on-Year
- Average area value
- 388,182.00 £Decreased by 15.21 %
- Est sale value
- 1,069,750.00 £Increased by 48.25 %
- Average area rental value
- 885.00 £/moDecreased by 28.57 %
- Est letting value
- 1,945.00 £/moUnchanged by 0.00 %
- Est rental Yield
- 2.74 %Decreased by 15.69 %
- Crime Rate
- 3.00 %Unchanged by 0.00 %
Agent Activity
Miles & Barr Exclusive created the listing.
Nearby Schools
| Name | Type | Ofsted | Distance |
|---|---|---|---|
| Cliftonville Primary School | Academy Sponsor Led | Outstanding | 0.17 KM |
| St Anthony'S School | Foundation Special School | Good | 0.37 KM |
| Northdown Primary School | Academy Sponsor Led | Requires improvement | 0.42 KM |
| Millmead Children'S Centre | Children's Centre | 1.02 KM | |
| Lighthouse School | Other Independent Special School | Good | 1.25 KM |
Images
Nearby Streets
| Name | Average Price | Average Sqft | Distance |
|---|---|---|---|
| Adisham Way | £ 0 | 0 | 0.00 KM |
| Appledore Close | £ 0 | 0 | 0.00 KM |
| Rutland Gardens | £ 537,500 | 0 | 0.00 KM |
| Cedar Close | £ 250,000 | 0 | 0.00 KM |
| Wyndham Avenue | £ 130,000 | 0 | 0.00 KM |
Nearby Transport
| Name | NLC | TLC | Distance |
|---|---|---|---|
| Margate | 5018 | MAR | 3.85 KM |
| Broadstairs | 5006 | BSR | 3.92 KM |
| Dumpton Park | 5034 | DMP | 4.73 KM |
| Ramsgate | 5023 | RAM | 4.78 KM |
| Westgate-On-Sea | 5195 | WGA | 7.57 KM |
Nearby Listings
| Address | Price | Type | Score | Distance |
|---|---|---|---|---|
| Northumberland Avenue, Margate, CT9 | £ 550,000 | BUY | 7 / 10 | 0.00 KM |
| Northumberland Avenue, Margate | £ 475,000 | BUY | 7 / 10 | 0.01 KM |
| Northumberland Avenue, Margate | £ 499,995 | BUY | 7 / 10 | 0.04 KM |
| Northumberland Avenue, Cliftonville, Margate, Kent | £ 575,000 | BUY | 7 / 10 | 0.05 KM |
| Old Green Road, Margate, Kent, CT9 | £ 400,000 | BUY | 8 / 10 | 0.10 KM |
Nearby Properties
| Address | Price | Distance |
|---|---|---|
| 85 Northumberland Avenue | £ 465,000 | 0.05 KM |
| 91 Northumberland Avenue | £ 225,000 | 0.05 KM |
| 88 Northumberland Avenue | £ 265,000 | 0.05 KM |
| 97 Northumberland Avenue | £ 233,500 | 0.05 KM |
| 99 Northumberland Avenue | £ 300,000 | 0.05 KM |