Neville Lodge, Peacehaven
By Stratton & King Ltd
£ 249,950
Reviews
3 out of 5 stars
Stratton & King Ltd says ..
Welcome to Neville Lodge in the charming town of Peacehaven! This delightful one bedroom ground floor retirement apartment offers comfort and convenience with stunning coastal walks right on your doorstep. Inside you will find a cosy living room with a feature electric fireplace, providi...
Property Oracle says ..
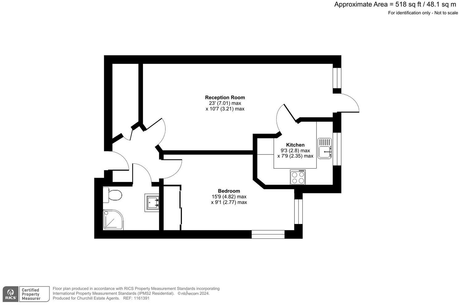
This one-bedroom retirement apartment in Neville Lodge, Peacehaven, is presented as a well-maintained and comfortable living space. The apartment boasts a modern kitchen and bathroom, and the property is located within a development offering communal facilities. Images indicate a relatively modern building with maintained communal areas. The location is attractive for those seeking coastal living, with the potential for walks and easy access to transport to nearby towns. While proximity to schools and amenities is a positive, specific details on their quality and rating are absent from the provided data. The apartment’s size (517.74 sq ft) is modest but standard for this type of retirement property. The price seems competitive when compared to other similar properties in the area. Overall, this property is suitable for a retired person seeking easy maintenance and a coastal setting, however the limited information regarding land and precise square footage of comparables makes a complete valuation assessment challenging. Potential buyers may wish to consult with a local estate agent to further verify the property’s value and assess their personal needs and requirements in more detail before making an offer.
Therefore, we give this property 6 / 10. *Disclaimer: This is our option and does constitute a recommendation or financial advice. Do your own research. *
- Price
- 7
- Condition
- 8
- Location
- 7
- Land
- 2
- Bedrooms
- 1
- Bathrooms
- 1
- Sqft (est)
- 517.74
The heatmap indicates the level of crime in the area. The color of the heatmap indicates the crime severity and recency.
Metrics Year-on-Year
- Average area value
- 667,778.00 £Decreased by 2.92 %
- Est sale value
- 285,792.48 £Decreased by 6.28 %
- Average area rental value
- 1,400.00 £/moDecreased by 43.84 %
- Est letting value
- 517.74 £/moDecreased by 50.00 %
- Est rental Yield
- 2.52 %Decreased by 42.07 %
- Crime Rate
- 16.00 %Unchanged by 0.00 %
Agent Activity
Stratton & King Ltd marked this listing as sold.
Stratton & King Ltd created the listing.
Nearby Schools
| Name | Type | Ofsted | Distance |
|---|---|---|---|
| Peacehaven Heights Academy | Academy Sponsor Led | 0.54 KM | |
| Peacehaven Children'S Centre | Children's Centre | 0.68 KM | |
| Peacehaven Community School | Academy Converter | 1.00 KM | |
| Telscombe Cliffs Academy | Academy Sponsor Led | 1.01 KM | |
| Meridian Community Primary School And Nursery | Community School | Good | 1.75 KM |
Images
Nearby Streets
| Name | Average Price | Average Sqft | Distance |
|---|---|---|---|
| Lake Drive | £ 180,000 | 0 | 0.00 KM |
| Cairo Avenue South | £ 0 | 0 | 0.00 KM |
| Cairo Avenue | £ 350,000 | 0 | 0.00 KM |
| Sutton Avenue | £ 0 | 0 | 0.00 KM |
| Phyllis Avenue | £ 387,475 | 0 | 0.00 KM |
Nearby Transport
| Name | NLC | TLC | Distance |
|---|---|---|---|
| Southease | 5339 | SEE | 5.87 KM |
| Newhaven Town | 5331 | NVN | 6.65 KM |
| Newhaven Harbour | 5330 | NVH | 6.65 KM |
| Lewes | 5329 | LWS | 8.90 KM |
| Bishopstone (Sussex) | 5402 | BIP | 9.81 KM |
Nearby Listings
| Address | Price | Type | Score | Distance |
|---|---|---|---|---|
| Neville Lodge, Peacehaven | £ 249,950 | BUY | 6 / 10 | 0.00 KM |
| Neville Lodge, Peacehaven | £ 259,950 | BUY | 5 / 10 | 0.02 KM |
| Neville Lodge, Peacehaven | £ 330,000 | BUY | 7 / 10 | 0.02 KM |
| Margaret Court, South Coast Road, BN10 | £ 170,000 | BUY | Unknown | 0.06 KM |
| South Coast Road, Peacehaven, East Sussex | £ 250,000 | BUY | Unknown | 0.06 KM |
Nearby Properties
| Address | Price | Distance |
|---|---|---|
| 276 South Coast Road | £ 295,000 | 0.08 KM |
| 27 Rowe Avenue | £ 289,950 | 0.08 KM |
| 279 South Coast Road | £ 265,000 | 0.13 KM |
| 275a South Coast Road | £ 335,000 | 0.13 KM |
| 51 Sutton Avenue | £ 275,300 | 0.13 KM |