Holtdale Place, Leeds, West Yorkshire
By Manning Stainton
£ 165,000
Reviews
2 out of 5 stars
Manning Stainton says ..
***CHAIN FREE*** Three bed terrace with KITCHEN DINER and GARDEN!
Property Oracle says ..
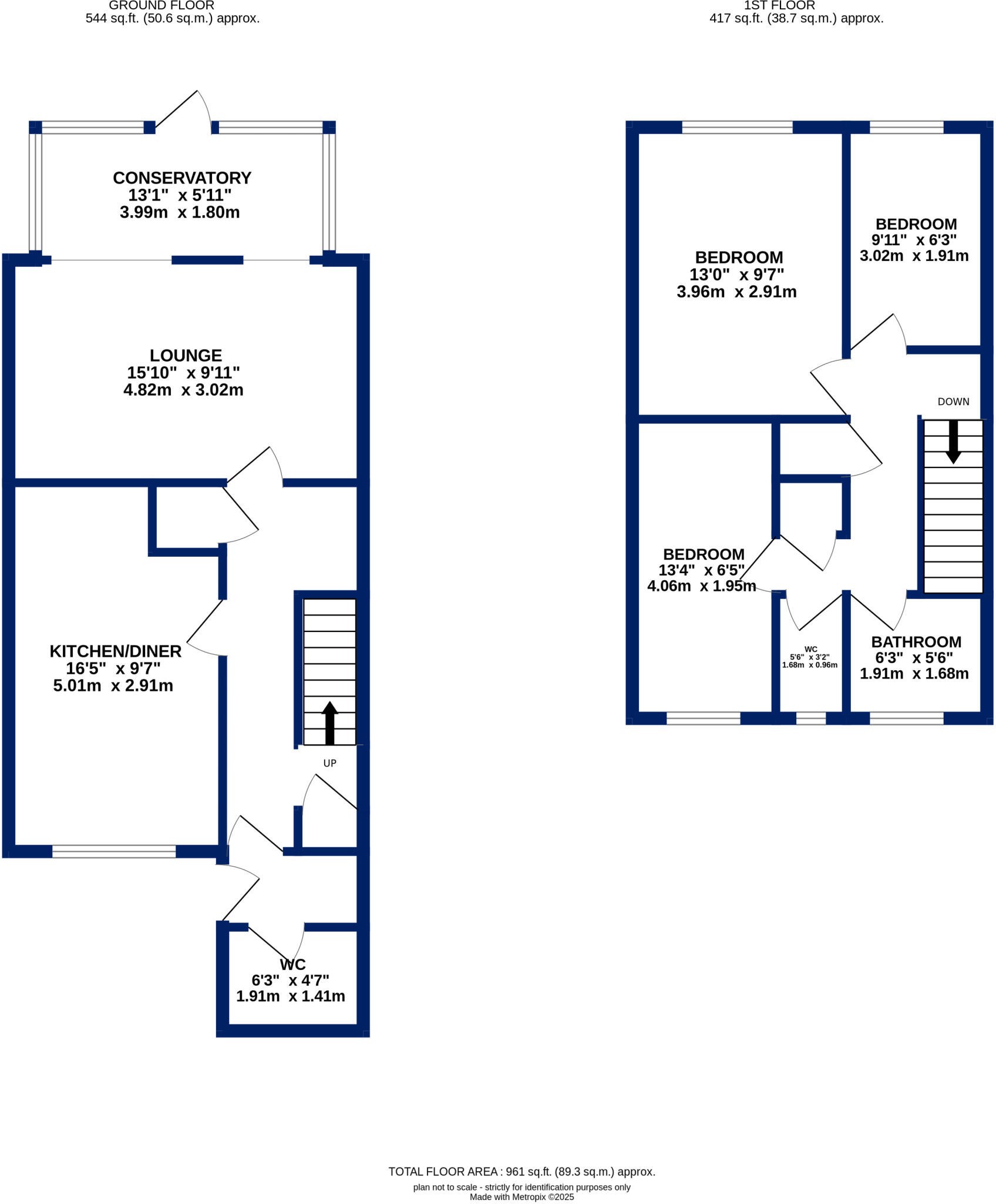
The property is a 3-bedroom terraced house located in Holtdale Place, Leeds, West Yorkshire. It is listed at £165,000 and has 961.22 sqft of living space. The property benefits from being close to several schools, including Cookridge Primary School and Ralph Thoresby School, both within a kilometer. Several train stations are also within a reasonable distance. The property includes a small garden. Based on the provided images, the property appears to be in generally fair condition. While it is habitable, some areas show signs of wear and tear, suggesting that some minor renovations or upgrades might be needed. The kitchen and other rooms appear functional but could benefit from some modernization. Considering the average house price in the area is significantly higher (£489,948) and the average price per sqft is £390, the listed price of £165,000 seems relatively low. However, the lack of plot size information and the condition of the property need to be factored in. Nearby comparable properties on Holtdale Place range from £90,000 to £190,000, suggesting that the listed price is within the range of similar properties in the area, although at the higher end. The smaller plot size and the need for some renovations likely contribute to the lower price compared to the area average.
Therefore, we give this property 5 / 10. *Disclaimer: This is our option and does constitute a recommendation or financial advice. Do your own research. *
- Price
- 7
- Condition
- 6
- Location
- 7
- Land
- 3
- Bedrooms
- 3
- Bathrooms
- 1
- Sqft (est)
- 961.22
The heatmap indicates the level of crime in the area. The color of the heatmap indicates the crime severity and recency.
Metrics Year-on-Year
- Average area value
- 444,966.00 £Increased by 5.54 %
- Est sale value
- 432,549.00 £Increased by 32.35 %
- Average area rental value
- 1,480.00 £/moDecreased by 0.34 %
- Est letting value
- 961.22 £/moUnchanged by 0.00 %
- Est rental Yield
- 3.99 %Decreased by 5.67 %
- Crime Rate
- 11.00 %Unchanged by 0.00 %
Agent Activity
Manning Stainton created the listing.
Nearby Schools
| Name | Type | Ofsted | Distance |
|---|---|---|---|
| Cookridge Primary School | Foundation School | Good | 0.26 KM |
| Ralph Thoresby School | Foundation School | Good | 0.58 KM |
| Ireland Wood Primary School | Foundation School | Good | 0.95 KM |
| Ireland Wood Children'S Centre | Children's Centre | 0.99 KM | |
| Cookridge Holy Trinity Church Of England Primary School | Voluntary Aided School | Good | 1.16 KM |
Images
Nearby Streets
| Name | Average Price | Average Sqft | Distance |
|---|---|---|---|
| Grove Farm Crescent | £ 0 | 0 | 0.00 KM |
| Pinfold Lane | £ 0 | 0 | 0.00 KM |
| Oak Park Mount | £ 0 | 0 | 0.00 KM |
| Black Wood Rise | £ 0 | 0 | 0.00 KM |
| Elder Close | £ 0 | 0 | 0.00 KM |
Nearby Transport
| Name | NLC | TLC | Distance |
|---|---|---|---|
| Horsforth | 8499 | HRS | 2.12 KM |
| Kirkstall Forge | 6544 | KLF | 3.74 KM |
| Headingley | 8498 | HDY | 4.71 KM |
| Bramley (West Yorkshire) | 8496 | BLE | 6.24 KM |
| Burley Park | 8500 | BUY | 6.24 KM |
Nearby Listings
| Address | Price | Type | Score | Distance |
|---|---|---|---|---|
| Holtdale Place, Leeds, West Yorkshire | £ 165,000 | BUY | 5 / 10 | 0.00 KM |
| Holtdale Place, Holt Park, Leeds, West Yorkshire | £ 210,000 | BUY | 7 / 10 | 0.03 KM |
| Holtdale Place, Leeds | £ 180,000 | BUY | 7 / 10 | 0.04 KM |
| Holtdale Place, Leeds, LS16 | £ 165,000 | BUY | 5 / 10 | 0.04 KM |
| Holtdale Place, Leeds | £ 185,000 | BUY | 6 / 10 | 0.09 KM |
Nearby Properties
| Address | Price | Distance |
|---|---|---|
| 21 Holtdale Place | £ 147,500 | 0.04 KM |
| 83 Holtdale Place | £ 120,000 | 0.04 KM |
| 77 Holtdale Place | £ 97,500 | 0.04 KM |
| 59 Holtdale Place | £ 145,000 | 0.04 KM |
| 57 Holtdale Place | £ 160,000 | 0.04 KM |