Hortons says ..
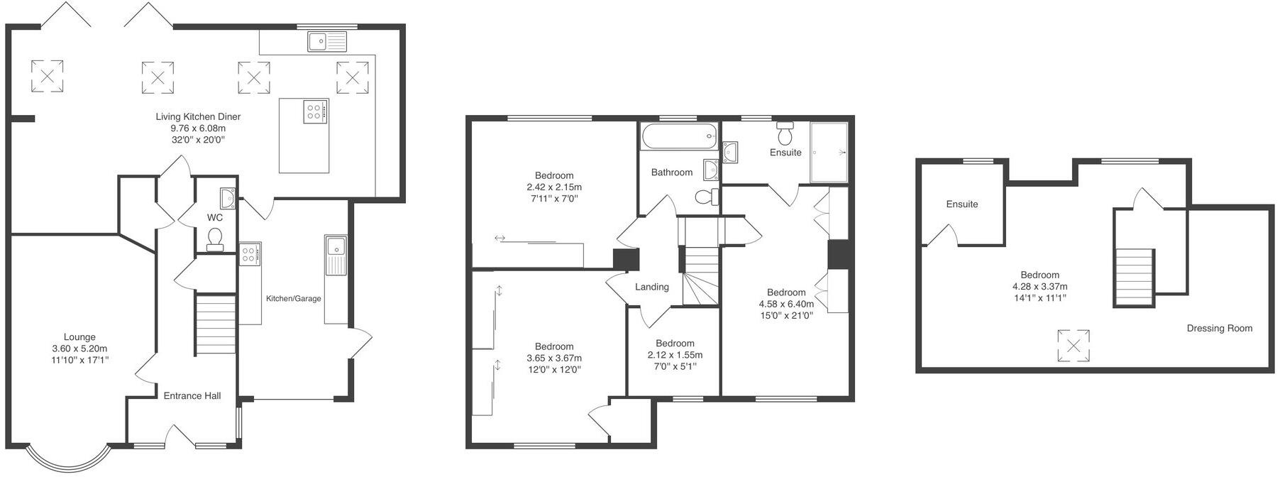
A beautifully reimagined five-bedroom home in central Oadby, combining elegant design with expansive family living across three thoughtfully extended floors.
Property Oracle says ..
Therefore, we give this property 7 / 10. *Disclaimer: This is our option and does constitute a recommendation or financial advice. Do your own research. *
- Price
- 7
- Condition
- 9
- Location
- 8
- Land
- 7
- Bedrooms
- 5
- Bathrooms
- 2
- Sqft (est)
- 1,375.41
The heatmap indicates the level of crime in the area. The color of the heatmap indicates the crime severity and recency.
Metrics Year-on-Year
- Average area value
- 366,250.00 £Decreased by 10.05 %
- Est sale value
- 836,249.28 £Increased by 87.65 %
- Average area rental value
- 1,450.00 £/moIncreased by 21.04 %
- Est letting value
- 2,750.82 £/mo
- Est rental Yield
- 4.75 %Increased by 34.56 %
- Crime Rate
- 6.00 %Unchanged by 0.00 %
from 407,182.00 £
from 445,632.84 £
from 1,198.00 £/mo
from 0.00 £/mo
from 3.53 %
from 6.00 %
Agent Activity
Hortons created the listing.
Nearby Schools
| Name | Type | Ofsted | Distance |
|---|---|---|---|
| Brookside Primary School | Academy Converter | 0.64 KM | |
| Manor High School | Academy Converter | Good | 0.75 KM |
| Woodland Grange Primary School | Academy Converter | 1.28 KM | |
| Launde Primary School | Academy Converter | 1.28 KM | |
| Beauchamp College | Academy Converter | 1.49 KM |
Images
Nearby Streets
| Name | Average Price | Average Sqft | Distance |
|---|---|---|---|
| Tamar Road | £ 500,000 | 0 | 0.00 KM |
| Wyndham Close | £ 0 | 0 | 0.00 KM |
| Ann's Way | £ 0 | 0 | 0.00 KM |
| Belvoir Close | £ 0 | 0 | 0.00 KM |
| Windsor Close | £ 0 | 0 | 0.00 KM |
Nearby Transport
| Name | NLC | TLC | Distance |
|---|---|---|---|
| Leicester | 1947 | LEI | 7.42 KM |
| South Wigston | 1949 | SWS | 7.77 KM |
Nearby Listings
| Address | Price | Type | Score | Distance |
|---|---|---|---|---|
| Silverton Road, Oadby, LE2 | £ 550,000 | BUY | 7 / 10 | 0.00 KM |
| Bollington Road, Oadby, LE2 | £ 375,000 | BUY | 6 / 10 | 0.10 KM |
| Dove Rise, Oadby, Leicester, LE2 | £ 475,000 | BUY | 6 / 10 | 0.12 KM |
| Bollington Road, Leicester, LE2 | £ 400,000 | BUY | 6 / 10 | 0.14 KM |
| Uplands Road, Oadby, Leicester | £ 70,000 | BUY | 7 / 10 | 0.14 KM |
Nearby Properties
| Address | Price | Distance |
|---|---|---|
| 9 Silverton Road | £ 152,000 | 0.05 KM |
| 4 Silverton Road | £ 327,000 | 0.05 KM |
| 14 Silverton Road | £ 213,000 | 0.05 KM |
| 6 Silverton Road | £ 119,950 | 0.05 KM |
| 3 Silverton Road | £ 180,000 | 0.05 KM |