Neptune Court, Homer Drive, E14
By Ernest Brooks International
£ 600,000
Reviews
2 out of 5 stars
Ernest Brooks International says ..
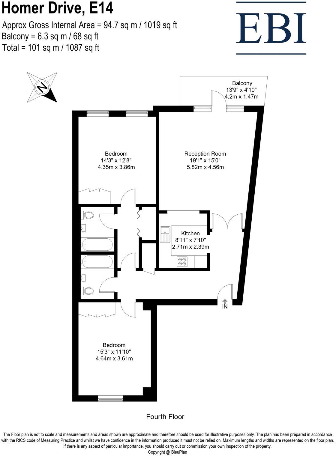
A beautifully refurbished two-bedroom, two-bathroom apartment on the fourth floor of Neptune Court, featuring a private balcony with direct river views, within the sought-after Cyclops Wharf development. This bright and spacious residence has been tastefully upgraded, boasting a newly fitted kitc...
Property Oracle says ..
This is a two-bedroom apartment in Neptune Court, Island Gardens, London. The property features two bathrooms and is listed for £600,000. While the square footage is not provided, the average price per square foot in the area is £840. The apartment appears to be in modern condition, with a well-maintained kitchen and bathrooms. The location is near the River Thames and several schools, but it is not particularly close to major transportation links. The property does not have a garden.
Therefore, we give this property 5 / 10. *Disclaimer: This is our option and does constitute a recommendation or financial advice. Do your own research. *
- Price
- 6
- Condition
- 7
- Location
- 7
- Land
- 3
- Bedrooms
- 2
- Bathrooms
- 2
The heatmap indicates the level of crime in the area. The color of the heatmap indicates the crime severity and recency.
Metrics Year-on-Year
- Average area value
- 508,333.00 £Decreased by 5.19 %
- Average area rental value
- 2,031.00 £/moIncreased by 42.63 %
- Est rental Yield
- 4.79 %Increased by 50.16 %
- Crime Rate
- 4.00 %Unchanged by 0.00 %
Agent Activity
Ernest Brooks International created the listing.
Nearby Schools
| Name | Type | Ofsted | Distance |
|---|---|---|---|
| St Edmund'S Catholic School | Voluntary Aided School | Good | 0.23 KM |
| Arnhem Wharf Primary School | Community School | Good | 0.48 KM |
| Harbinger Primary School | Community School | Requires improvement | 0.57 KM |
| Seven Mills Primary School | Community School | Good | 0.76 KM |
| South Quay College | Free Schools Alternative Provision | 1.00 KM |
Images
Nearby Streets
| Name | Average Price | Average Sqft | Distance |
|---|---|---|---|
| Millwall Slipway | £ 0 | 0 | 0.00 KM |
| Old Bellgate Place | £ 0 | 0 | 0.00 KM |
| Deptford Strand | £ 325,000 | 0 | 0.00 KM |
| Watergate Steps | £ 0 | 0 | 0.00 KM |
| Barnes Terrace | £ 0 | 0 | 0.00 KM |
Nearby Transport
| Name | NLC | TLC | Distance |
|---|---|---|---|
| Deptford | 5145 | DEP | 1.40 KM |
| Greenwich | 5146 | GNW | 1.95 KM |
| St Johns | 5059 | SAJ | 2.46 KM |
| New Cross Gate | 5345 | NXG | 2.50 KM |
| Surrey Quays | 1083 | SQE | 2.52 KM |
Nearby Listings
| Address | Price | Type | Score | Distance |
|---|---|---|---|---|
| Neptune Court, Homer Drive, E14 | £ 625,000 | BUY | 6 / 10 | 0.00 KM |
| Neptune Court, Homer Drive, E14 | £ 600,000 | BUY | 5 / 10 | 0.00 KM |
| Cyclops Wharf, Canary Wharf E14 | £ 650,000 | BUY | Unknown | 0.02 KM |
| Cyclops Wharf, Canary Wharf E14 | £ 630,000 | BUY | 5 / 10 | 0.02 KM |
| Cyclops Mews, Isle Of Dogs, London, E14 | £ 675,000 | BUY | 5 / 10 | 0.02 KM |
Nearby Properties
| Address | Price | Distance |
|---|---|---|
| 10 Cyclops Mews | £ 280,000 | 0.01 KM |
| 23 Cyclops Mews | £ 128,000 | 0.01 KM |
| 6 Cyclops Mews | £ 245,000 | 0.01 KM |
| 12 Cyclops Mews | £ 295,000 | 0.01 KM |
| 16 Cyclops Mews | £ 287,000 | 0.01 KM |