McGowan Housing says ..
Buy-to-Let Opportunity | Long Term Tenant Currently Situated | 2 Bedroom Flat | One Piece Bathroom | Spacious Rooms | Prime Rental Location Within Chorley
Property Oracle says ..
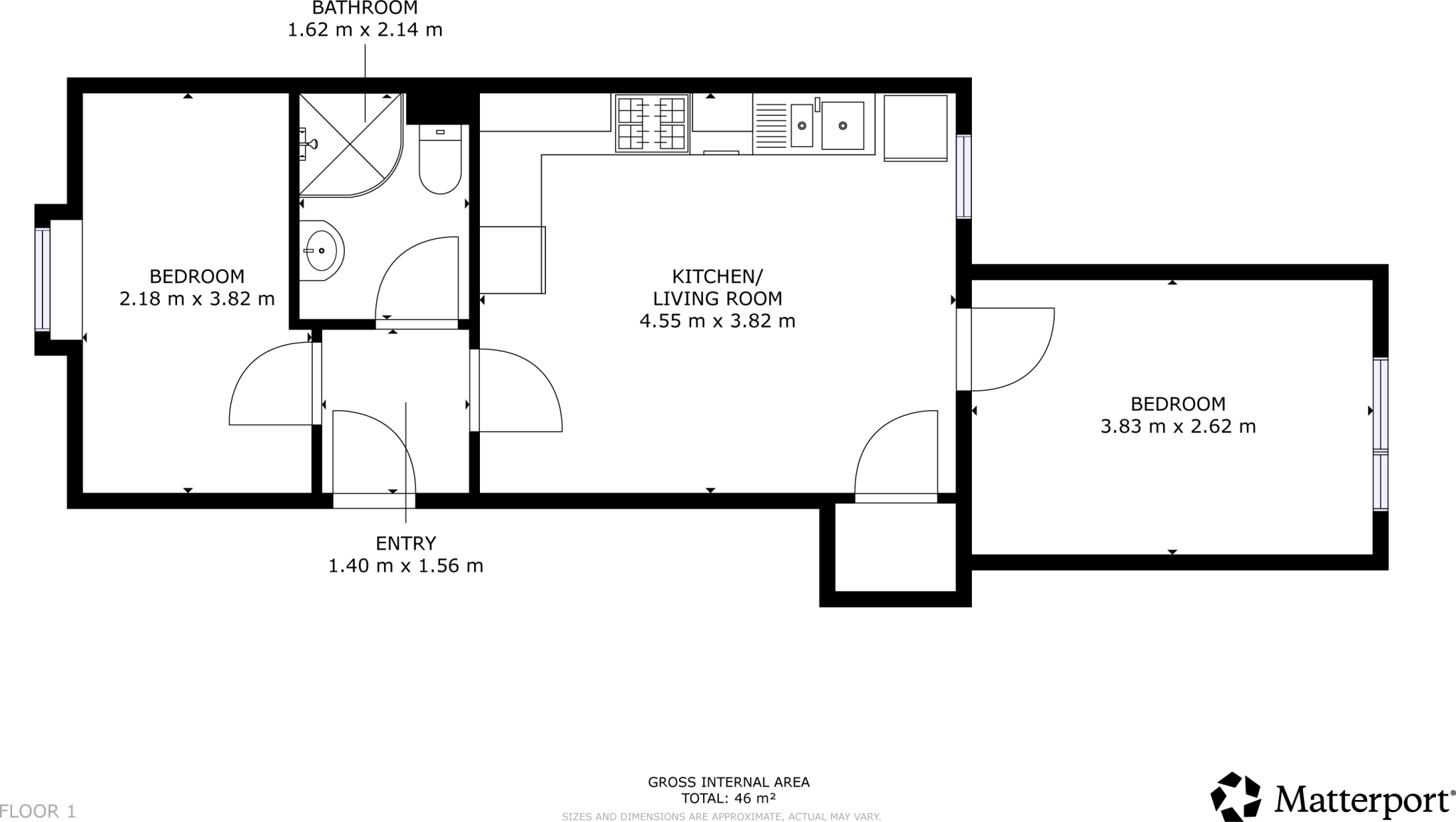
This is a two-bedroom flat on Park Road in Chorley. The property is in a convenient location, close to schools, transportation, and local amenities. The flat itself is in fair condition, with a modern kitchen and bathroom, but some areas need attention. The property has no garden. The asking price of £120,000 seems reasonable given the location and the condition of the property.
Therefore, we give this property 4 / 10. *Disclaimer: This is our option and does constitute a recommendation or financial advice. Do your own research. *
- Price
- 7
- Condition
- 5
- Location
- 6
- Land
- 1
- Bedrooms
- 2
- Bathrooms
- 1
The heatmap indicates the level of crime in the area. The color of the heatmap indicates the crime severity and recency.
Metrics Year-on-Year
- Average area value
- 271,777.00 £Increased by 15.25 %
- Average area rental value
- 761.00 £/moDecreased by 4.04 %
- Est rental Yield
- 3.36 %Decreased by 16.83 %
- Crime Rate
- 9.00 %Unchanged by 0.00 %
Agent Activity
McGowan Housing created the listing.
Nearby Schools
| Name | Type | Ofsted | Distance |
|---|---|---|---|
| Chorley, The Parish Of St Laurence Church Of England Primary School | Voluntary Aided School | Good | 0.16 KM |
| St Michael'S Church Of England High School | Academy Converter | 0.62 KM | |
| Mayfield House School | Other Independent Special School | 0.72 KM | |
| Chorley Astley Park School | Community Special School | Outstanding | 0.90 KM |
| St Joseph'S Catholic Primary School, Chorley | Voluntary Aided School | Good | 1.03 KM |
Images
Nearby Streets
| Name | Average Price | Average Sqft | Distance |
|---|---|---|---|
| Garden Terrace | £ 119,995 | 0 | 0.00 KM |
| Somerset Avenue | £ 249,995 | 0 | 0.00 KM |
| Water Street | £ 0 | 0 | 0.00 KM |
| Rectory Close | £ 0 | 0 | 0.00 KM |
| Union Street | £ 0 | 0 | 0.00 KM |
Nearby Transport
| Name | NLC | TLC | Distance |
|---|---|---|---|
| Chorley | 2745 | CRL | 0.81 KM |
| Buckshaw Parkway | 7501 | BSV | 3.68 KM |
| Euxton Balshaw Lane | 2080 | EBA | 4.53 KM |
| Adlington (Lancashire) | 2641 | ADL | 5.91 KM |
| Leyland | 2710 | LEY | 7.65 KM |
Nearby Listings
| Address | Price | Type | Score | Distance |
|---|---|---|---|---|
| Park Road, Chorley, PR7 | £ 120,000 | BUY | 4 / 10 | 0.00 KM |
| Park Road, Chorley, PR7 | £ 345,000 | BUY | 6 / 10 | 0.00 KM |
| Park Road, Chorley | £ 89,995 | BUY | 5 / 10 | 0.07 KM |
| Park Road, Chorley | £ 280,000 | BUY | 7 / 10 | 0.07 KM |
| Parker Street, Chorley | £ 124,995 | BUY | Unknown | 0.08 KM |
Nearby Properties
| Address | Price | Distance |
|---|---|---|
| 24 Park Road | £ 65,000 | 0.00 KM |
| 40 Park Road | £ 85,000 | 0.00 KM |
| 16 Garden Terrace | £ 95,000 | 0.09 KM |
| 12 Garden Terrace | £ 89,000 | 0.09 KM |
| 15 Garden Terrace | £ 90,500 | 0.09 KM |