Northway, THATCHAM, RG18
By Cricketts Of Berkshire
£ 460,000
Reviews
3 out of 5 stars
Cricketts Of Berkshire says ..
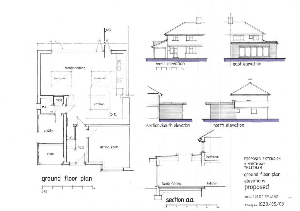
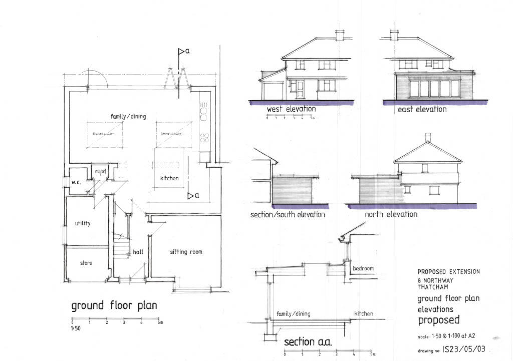
Welcome to this beautifully remodeled family home located in the desirable area of Northway, Thatcham. Three DOUBLE bedrooms, downstairs WC, integral garage AND approved planning permission for a single story extension to the rear.
Property Oracle says ..
This three-bedroom semi-detached house in Thatcham, Berkshire is listed at £460,000. The property benefits from a modern kitchen and bathroom, and boasts a good-sized garden. The location is convenient, with nearby schools and transportation links. However, the plot size is listed as 0.00 sqft, which may require clarification. The average house price in the area is £396,442, and the average price per sqft is £428. This property is slightly above average in price, but the modern updates and garden could justify the higher cost. More information on the plot size would assist in a more comprehensive evaluation.
Therefore, we give this property 7 / 10. *Disclaimer: This is our option and does constitute a recommendation or financial advice. Do your own research. *
- Price
- 7
- Condition
- 8
- Location
- 8
- Land
- 7
- Bedrooms
- 3
- Bathrooms
- 1
- Sqft (est)
- 1,007.00
The heatmap indicates the level of crime in the area. The color of the heatmap indicates the crime severity and recency.
Metrics Year-on-Year
- Average area value
- 456,667.00 £Increased by 7.33 %
- Est sale value
- 484,367.00 £Increased by 0.42 %
- Average area rental value
- 1,375.00 £/moIncreased by 25.00 %
- Est letting value
- 1,007.00 £/moUnchanged by 0.00 %
- Est rental Yield
- 3.61 %Increased by 16.45 %
- Crime Rate
- 6.00 %Unchanged by 0.00 %
Agent Activity
Cricketts Of Berkshire created the listing.
Nearby Schools
| Name | Type | Ofsted | Distance |
|---|---|---|---|
| Whitelands Park Primary School | Academy Sponsor Led | Good | 0.22 KM |
| Central Family Hub - Thatcham | Children's Centre | 0.82 KM | |
| Thatcham Park Cofe Primary | Voluntary Controlled School | Good | 0.91 KM |
| Parsons Down Infant School | Community School | Good | 1.16 KM |
| Parsons Down Junior School | Community School | Good | 1.32 KM |
Images
Nearby Streets
| Name | Average Price | Average Sqft | Distance |
|---|---|---|---|
| Kendal Close | £ 0 | 0 | 0.00 KM |
| Kipling Close | £ 385,000 | 0 | 0.00 KM |
| The Firs | £ 350,000 | 0 | 0.00 KM |
| Brownsfield Road | £ 0 | 0 | 0.00 KM |
| Tudor Court | £ 0 | 0 | 0.00 KM |
Nearby Transport
| Name | NLC | TLC | Distance |
|---|---|---|---|
| Thatcham | 3152 | THA | 3.13 KM |
| Newbury Racecourse | 3071 | NRC | 4.71 KM |
| Newbury | 3074 | NBY | 6.36 KM |
| Midgham | 3159 | MDG | 9.95 KM |
Nearby Listings
| Address | Price | Type | Score | Distance |
|---|---|---|---|---|
| Northway, THATCHAM, RG18 | £ 460,000 | BUY | 7 / 10 | 0.00 KM |
| Northway, Thatcham, Berkshire, RG18 | £ 425,000 | BUY | Unknown | 0.04 KM |
| Sagecroft Road, Thatcham, RG18 | £ 579,995 | BUY | 7 / 10 | 0.07 KM |
| Sagecroft Road, Thatcham, RG18, Berkshire, RG18 | £ 575,000 | BUY | Unknown | 0.08 KM |
| Sagecroft Road, Thatcham, Berkshire, RG18 | £ 450,000 | BUY | 6 / 10 | 0.10 KM |
Nearby Properties
| Address | Price | Distance |
|---|---|---|
| 3 Norlands | £ 309,950 | 0.08 KM |
| 5 Norlands | £ 248,500 | 0.08 KM |
| 4 Norlands | £ 405,000 | 0.08 KM |
| 9 Norlands | £ 343,000 | 0.08 KM |
| 14 Norlands | £ 385,000 | 0.08 KM |