CH
Forbury, Reading, Berkshire, RG1
By Chancellors
£ 325,000
Reviews
2 out of 5 stars
Chancellors says ..
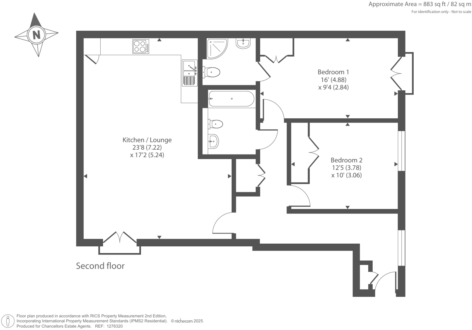
Town Centre, two double bedroom apartment with ensuite to master. Located 0.4 miles from Forbury Gardens and Oracle Shopping Centre. Open plan living/dining space. This is a gated block with fob access to development and communal areas
Property Oracle says ..
Therefore, we give this property 5 / 10. *Disclaimer: This is our option and does constitute a recommendation or financial advice. Do your own research. *
- Price
- 7
- Condition
- 8
- Location
- 7
- Land
- 1
- Bedrooms
- 2
- Bathrooms
- 1
- Sqft (est)
- 883.00
The heatmap indicates the level of crime in the area. The color of the heatmap indicates the crime severity and recency.
Metrics Year-on-Year
- Average area value
- 350,323.00 £Decreased by 1.18 %
- Est sale value
- 380,573.00 £Increased by 20.73 %
- Average area rental value
- 1,334.00 £/moDecreased by 2.49 %
- Est letting value
- 883.00 £/moUnchanged by 0.00 %
- Est rental Yield
- 4.57 %Decreased by 1.30 %
- Crime Rate
- 7.00 %Unchanged by 0.00 %
from 354,508.00 £
from 315,231.00 £
from 1,368.00 £/mo
from 883.00 £/mo
from 4.63 %
from 7.00 %
Agent Activity
Chancellors created the listing.
Nearby Schools
| Name | Type | Ofsted | Distance |
|---|---|---|---|
| Red Balloon Learner Centre Reading | Other Independent School | 0.17 KM | |
| St John'S Church Of England Primary School | Academy Converter | Requires improvement | 0.54 KM |
| The Deenway Montessori School | Other Independent School | Good | 0.69 KM |
| East Reading Children'S Centre | Children's Centre | 0.72 KM | |
| Kendrick School | Academy Converter | 0.82 KM |
Images
Nearby Streets
| Name | Average Price | Average Sqft | Distance |
|---|---|---|---|
| Queens Road | £ 287,000 | 0 | 0.00 KM |
| Joseph Huntley Walk | £ 375,000 | 0 | 0.00 KM |
| Carraway Street | £ 300,000 | 0 | 0.00 KM |
| Blake's Wharf | £ 280,000 | 0 | 0.00 KM |
| Queen's Road | £ 259,950 | 0 | 0.00 KM |
Nearby Transport
| Name | NLC | TLC | Distance |
|---|---|---|---|
| Reading | 3149 | RDG | 1.59 KM |
| Reading West | 3160 | RDW | 3.55 KM |
| Earley | 5694 | EAR | 4.69 KM |
| Winnersh Triangle | 5698 | WTI | 7.65 KM |
| Tilehurst | 3154 | TLH | 8.15 KM |
Nearby Listings
| Address | Price | Type | Score | Distance |
|---|---|---|---|---|
| Reading, Berkshire, RG1 | £ 270,000 | BUY | 5 / 10 | 0.00 KM |
| Forbury, Reading, Berkshire, RG1 | £ 325,000 | BUY | 5 / 10 | 0.00 KM |
| Arthur Place, Reading, Berkshire, RG1 | £ 200,000 | BUY | 6 / 10 | 0.02 KM |
| Arthur Place, Reading, Berkshire | £ 145,000 | BUY | 6 / 10 | 0.02 KM |
| Blakes Quay, Gas Works Road, Reading | £ 335,000 | BUY | 7 / 10 | 0.08 KM |
Nearby Properties
| Address | Price | Distance |
|---|---|---|
| 30 Arthur Place | £ 160,000 | 0.03 KM |
| 20 Arthur Place | £ 157,000 | 0.03 KM |
| 26 Arthur Place | £ 170,000 | 0.03 KM |
| 15 Arthur Place | £ 135,000 | 0.03 KM |
| 46 Kenavon Drive | £ 281,000 | 0.15 KM |