Hargrave Road, Shirley, Solihull, B90
OA

Hargrave Road, Shirley, Solihull, B90

By Oakmans Estate Agents

£ 425,000

Oakmans Estate Agents says ..

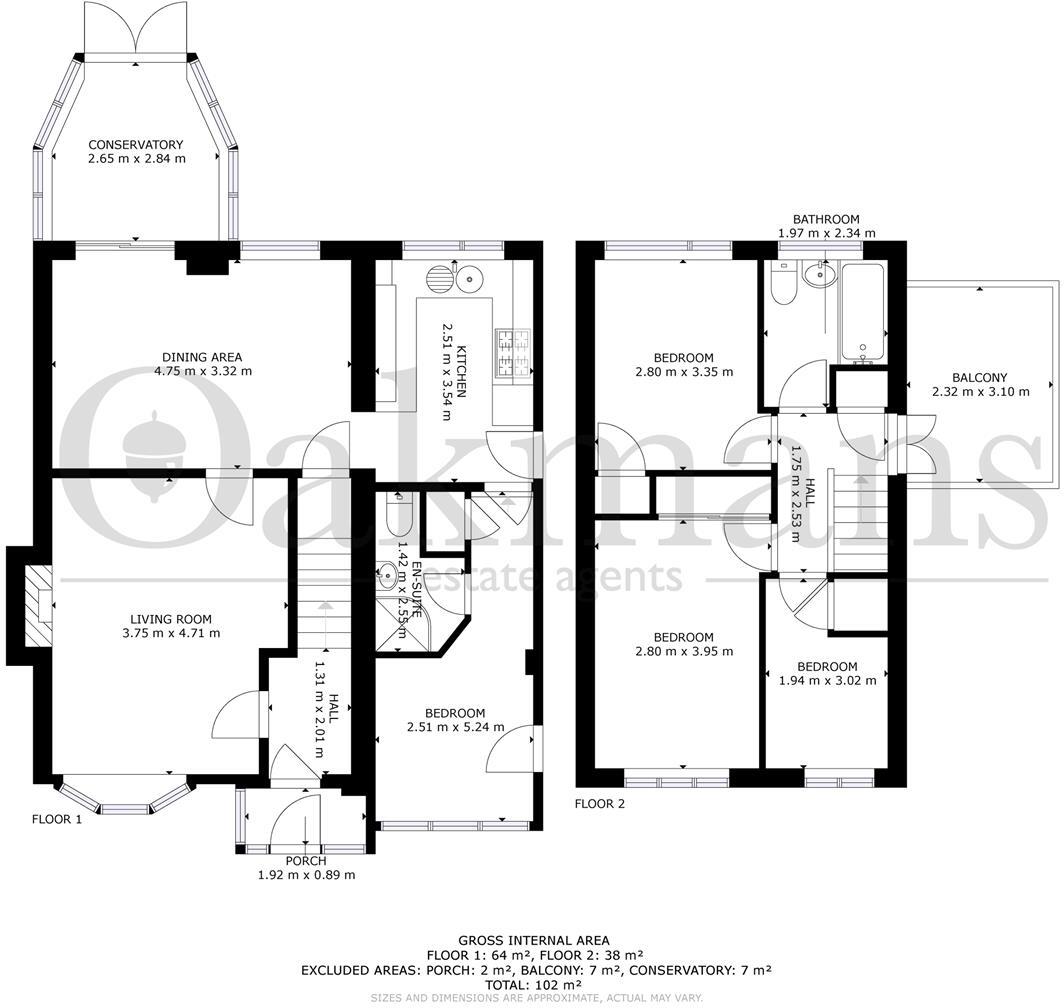
**DETACHED CORNER PLOT ** FANTASTIC LOCATION ** HUGE SCOPE FOR EXTENSION (STPP) ** BALCONY WITH BEAUTIFUL GARDEN VIEWS ** GROUND FLOOR BEDROOM WITH OWN ENTRANCE ** EN SUITE TO GROUND FLOOR ROOM ** THREE BEDROOMS TO FIRST FLOOR ** FAMILY BATHROOM ** LARGE GARDEN ** DRIVEWAY FOR MULTIPLE VEHICLES**...

Bedrooms
4
Bathrooms
2

The heatmap indicates the level of crime in the area. The color of the heatmap indicates the crime severity and recency.

Metrics Year-on-Year

Average area value
326,418.00 £
Decreased by 0.78 %
from 328,985.00 £
Average area rental value
1,459.00 £/mo
Increased by 29.46 %
from 1,127.00 £/mo
Est rental Yield
5.36 %
Increased by 30.41 %
from 4.11 %
Crime Rate
1.00 %
Unchanged by 0.00 %
from 1.00 %

Agent Activity

  • Oakmans Estate Agents created the listing.

Nearby Schools

NameTypeOfstedDistance
Peterbrook Primary SchoolCommunity SchoolRequires improvement0.26 KM
Mill Lodge Primary SchoolCommunity SchoolGood0.94 KM
Mill Lodge Children'S Centre (Shirley West)Children's Centre1.02 KM
Christ Church, Church Of England Secondary AcademyFree Schools1.11 KM
Yardley Wood Community Primary SchoolCommunity SchoolGood1.32 KM

Images

DJI_20241022132241_0 DJI_20241022132900_0 DJI_20241022132615_0 DOM08220.jpg DOM08218.jpg DOM08222.jpg DOM08200.jpg DOM08192.jpg DOM08202.jpg DOM08226.jpg DOM08204.jpg DOM08208.jpg DOM08212.jpg DOM08171-Edit.jpg DOM08184.jpg DOM08190.jpg DOM08180.jpg DOM08157.jpg DOM08159.jpg DOM08163.jpg DOM08169.jpg DOM08230.jpg DOM08232.jpg DOM08234-Edit.jpg DOM08241.jpg DOM08247.jpg DOM08251-Edit.jpg DOM08173-Edit.jpg DOM08265-Edit.jpg DOM08263-Edit.jpg DOM08255-Edit.jpg DOM08259-Edit.jpg DOM08249-Edit.jpg DOM08261-Edit.jpg DOM08253-Edit.jpg DOM08152-Edit.jpg DJI_20241022132615_0 DJI_20241022132725_0 DJI_20241022132941_0 DJI_20241022132951_0

Nearby Streets

NameAverage PriceAverage SqftDistance
Ox Hill Road £ 228,31700.00 KM
Kingfield Road £ 332,50000.00 KM
Peartree Close £ 000.00 KM
Greenslade Road £ 125,00000.00 KM
Moorside Road £ 267,50000.00 KM

Nearby Transport

NameNLCTLCDistance
Whitlocks End4539WTE1.69 KM
Shirley4526SRL1.72 KM
Yardley Wood4537YRD2.08 KM
Wythall4532WYT2.72 KM
Hall Green4521HLG4.03 KM

Nearby Listings

AddressPriceTypeScoreDistance
Hargrave Road, Shirley, Solihull, B90 £ 425,000BUYUnknown0.00 KM
Peterbrook Road,Shirley,Solihull,B90 1HY £ 275,000BUY5 / 100.04 KM
Hargrave Road, Shirley £ 345,000BUY6 / 100.10 KM
Hargrave Road, Shirley, Solihull, B90 £ 390,000BUY7 / 100.10 KM
Hargrave Road, Shirley £ 400,000BUY7 / 100.21 KM

Nearby Properties

AddressPriceDistance
32 Hargrave Road £ 175,0000.02 KM
20 Hargrave Road £ 240,0000.02 KM
34 Hargrave Road £ 235,5000.02 KM
18 Hargrave Road £ 290,0000.02 KM
108 Hargrave Road £ 98,5000.02 KM