Cooperative Terrace, Palmersville
By Andrew Craig Land & New Homes
£ 240,000
Reviews
3 out of 5 stars
Andrew Craig Land & New Homes says ..
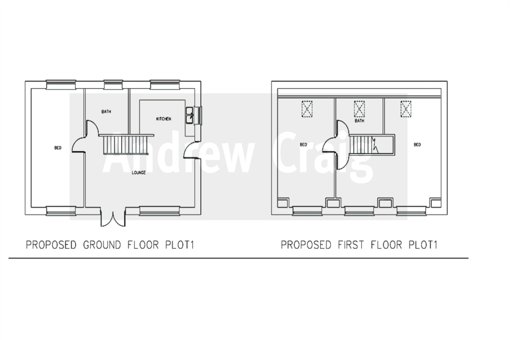
New Development of Two Semi Detached Homes, Situated in Palmersville. Anticipated Build Completion in Summer 2025. An exciting opportunity to purchase an attractive brick built brand new two storey and three bedroom detached home, with rear aspect over open grassland. This...
Property Oracle says ..
This new build property in Palmersville, Killingworth offers a modern three-bedroom, two-bathroom home. The artist’s impressions suggest a contemporary design with a clean finish. The location provides reasonable access to schools and transport links to Newcastle Upon Tyne, with several good primary schools within a short distance. While the exact plot size isn’t specified, the images indicate a relatively small garden. The asking price of £240,000 warrants further investigation given the absence of specific property details like square footage, but generally appears reasonable when considering other homes for sale in the nearby area. However, buyers should verify all details with the estate agent before making an offer. A key factor in fully assessing this property’s value will be its square footage, which is currently listed as unavailable and crucial for determining an accurate price per square foot and value comparison. The lack of detail on the interior finish and specifications also reduces the degree of accurate analysis possible.
Therefore, we give this property 6 / 10. *Disclaimer: This is our option and does constitute a recommendation or financial advice. Do your own research. *
- Price
- 7
- Condition
- 8
- Location
- 7
- Land
- 4
- Bedrooms
- 3
- Bathrooms
- 2
The heatmap indicates the level of crime in the area. The color of the heatmap indicates the crime severity and recency.
Metrics Year-on-Year
- Average area value
- 911,990.00 £Increased by 52.54 %
- Average area rental value
- 1,200.00 £/moDecreased by 18.81 %
- Est rental Yield
- 1.58 %Decreased by 46.80 %
- Crime Rate
- 17.00 %Unchanged by 0.00 %
Agent Activity
Andrew Craig Land & New Homes created the listing.
Nearby Schools
| Name | Type | Ofsted | Distance |
|---|---|---|---|
| Ivy Road Primary School | Foundation School | Good | 1.04 KM |
| Forest Hall Primary School | Foundation School | Good | 1.91 KM |
| Percy Hedley School | Non-maintained Special School | Outstanding | 2.19 KM |
| Wallsend Jubilee Primary School | Foundation School | Good | 2.21 KM |
| Redesdale Primary School | Foundation School | Good | 2.22 KM |
Images
Nearby Streets
| Name | Average Price | Average Sqft | Distance |
|---|---|---|---|
| Percy Street | £ 0 | 0 | 0.00 KM |
| Hazelwood | £ 0 | 0 | 0.00 KM |
| Ashcroft Drive | £ 462,500 | 0 | 0.00 KM |
| Delavel Way | £ 0 | 0 | 0.00 KM |
| Ivy Road | £ 150,000 | 0 | 0.00 KM |
Nearby Transport
| Name | NLC | TLC | Distance |
|---|---|---|---|
| Heworth | 7766 | HEW | 8.18 KM |
| Manors | 7603 | MAS | 8.56 KM |
| Cramlington | 7579 | CRM | 9.02 KM |
| Newcastle | 7728 | NCL | 9.93 KM |
Nearby Listings
| Address | Price | Type | Score | Distance |
|---|---|---|---|---|
| Cooperative Terrace, Palmersville | £ 240,000 | BUY | 6 / 10 | 0.00 KM |
| Palmersville, Palmersville, Newcastle upon Tyne, Tyne and Wear, NE12 9HL | £ 100,000 | BUY | 5 / 10 | 0.04 KM |
| Palmersville, Newcastle upon Tyne, NE12 9HL | £ 89,000 | BUY | 5 / 10 | 0.12 KM |
| Bamford Terrace, Palmersville, Newcastle upon Tyne, Tyne and Wear, NE12 9HA | £ 70,000 | BUY | 5 / 10 | 0.22 KM |
| Feetham Avenue,, Newcastle Upon Tyne, | £ 240,000 | BUY | 7 / 10 | 0.29 KM |
Nearby Properties
| Address | Price | Distance |
|---|---|---|
| 6 Cooperative Terrace | £ 70,000 | 0.01 KM |
| 4 Cooperative Terrace | £ 71,500 | 0.01 KM |
| 9 Cooperative Terrace | £ 120,000 | 0.01 KM |
| 8 Cooperative Terrace | £ 129,000 | 0.01 KM |
| 5 Cooperative Terrace | £ 63,000 | 0.01 KM |