ElliotLee says ..
Presenting this three-bedroom terraced house, perfect for families and first-time buyers.
Property Oracle says ..
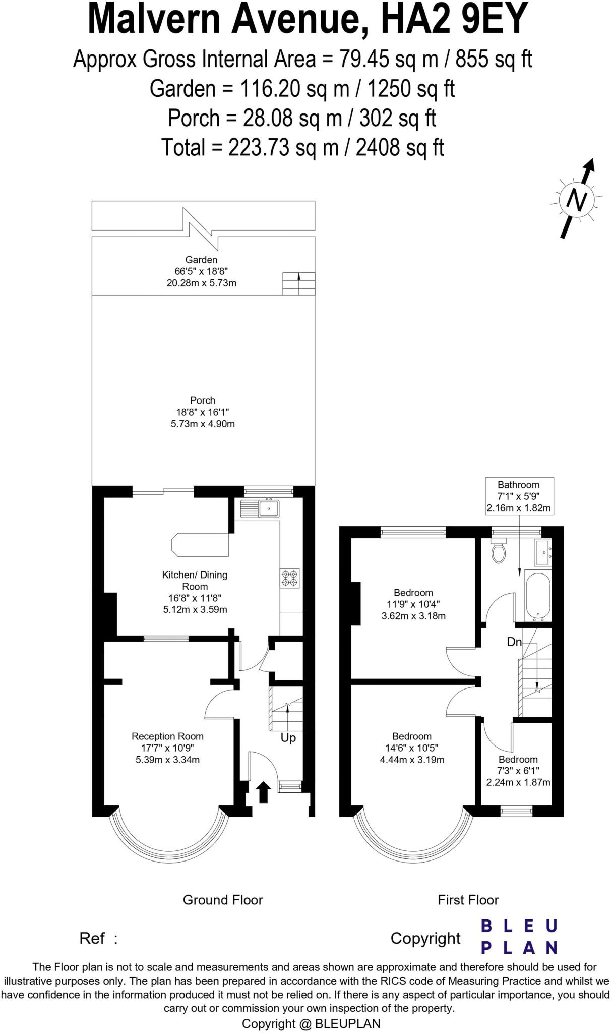
This three-bedroom, two-bathroom terraced house in Harrow is situated on Malvern Avenue, in the Roxbourne locality. The property benefits from a garden and is located relatively close to several schools, including Newton Farm Nursery, Infant and Junior School (Outstanding Ofsted rating) and Alexandra School (Outstanding Ofsted rating), both within a 0.5km radius. Transport links appear reasonable, with several train stations and underground stations within a 4km radius. The property itself is approximately 2,193 sqft, which is significantly larger than the average for the area (1,019 sqft). The kitchen appears dated, and the property could benefit from some modernisation. The garden is present but seems to require some maintenance. Considering the average house price in the area is £334,550 and the average price per sqft is £328, the list price of £575,000 appears relatively high, especially considering the need for modernisation. However, the larger than average size of the property and its location near well-regarded schools could justify a higher price point.
Therefore, we give this property 6 / 10. *Disclaimer: This is our option and does constitute a recommendation or financial advice. Do your own research. *
- Price
- 5
- Condition
- 6
- Location
- 8
- Land
- 7
- Bedrooms
- 3
- Bathrooms
- 2
- Sqft (est)
- 2,193.47
- Lot (est)
- 2,408.21
The heatmap indicates the level of crime in the area. The color of the heatmap indicates the crime severity and recency.
Metrics Year-on-Year
- Average area value
- 341,429.00 £Increased by 9.95 %
- Est sale value
- 686,556.11 £Decreased by 25.65 %
- Average area rental value
- 875.00 £/moDecreased by 18.53 %
- Est letting value
- 0.00 £/moDecreased by 100.00 %
- Est rental Yield
- 3.08 %Decreased by 25.78 %
- Crime Rate
- 2.00 %Unchanged by 0.00 %
Agent Activity
ElliotLee created the listing.
Nearby Schools
| Name | Type | Ofsted | Distance |
|---|---|---|---|
| Newton Farm Nursery, Infant And Junior School | Community School | Outstanding | 0.37 KM |
| Heathland School | Academy Converter | 0.41 KM | |
| Alexandra School | Academy Special Converter | Outstanding | 0.44 KM |
| Rooks Heath School | Academy Converter | Good | 0.47 KM |
| Harrow Independent College | Other Independent School | Good | 0.47 KM |
Images
Nearby Streets
| Name | Average Price | Average Sqft | Distance |
|---|---|---|---|
| Lynton Road | £ 0 | 0 | 0.00 KM |
| Newton Close | £ 282,500 | 0 | 0.00 KM |
| Kenilworth Avenue | £ 0 | 0 | 0.00 KM |
| Windsor Close | £ 0 | 0 | 0.00 KM |
| Silverdale Close | £ 0 | 0 | 0.00 KM |
Nearby Transport
| Name | NLC | TLC | Distance |
|---|---|---|---|
| Northolt Park | 1478 | NLT | 1.84 KM |
| South Ruislip | 3057 | SRU | 3.00 KM |
| Greenford | 3136 | GFD | 4.06 KM |
| Sudbury Hill Harrow | 1484 | SDH | 4.28 KM |
| Harrow-On-The-Hill | 598 | HOH | 4.29 KM |
Nearby Listings
| Address | Price | Type | Score | Distance |
|---|---|---|---|---|
| Malvern Avenue, Harrow, HA2 | £ 575,000 | BUY | 6 / 10 | 0.00 KM |
| 103b Malvern Avenue, HA2 9ER | £ 750,000 | BUY | 6 / 10 | 0.09 KM |
| 103 Malvern Avenue, HA2 9ER | £ 750,000 | BUY | 7 / 10 | 0.09 KM |
| Malvern Avenue, Harrow, HA2 | £ 675,000 | BUY | 6 / 10 | 0.10 KM |
| Ravenswood Crescent, Harrow | £ 525,000 | BUY | Unknown | 0.13 KM |
Nearby Properties
| Address | Price | Distance |
|---|---|---|
| 108 Malvern Avenue | £ 286,000 | 0.06 KM |
| 112 Malvern Avenue | £ 365,000 | 0.06 KM |
| 106 Malvern Avenue | £ 526,000 | 0.06 KM |
| 120 Malvern Avenue | £ 415,000 | 0.06 KM |
| 66 Ravenswood Crescent | £ 350,000 | 0.15 KM |