Ben Rose says ..
Ben Rose Estate Agents are pleased to present to market this beautifully presented two-bedroom terrace cottage, nestled in the highly sought-after village of Higher Wheelton. This charming home perfectly combines traditional character with modern comforts, making it an ideal purchase for first-ti...
Property Oracle says ..
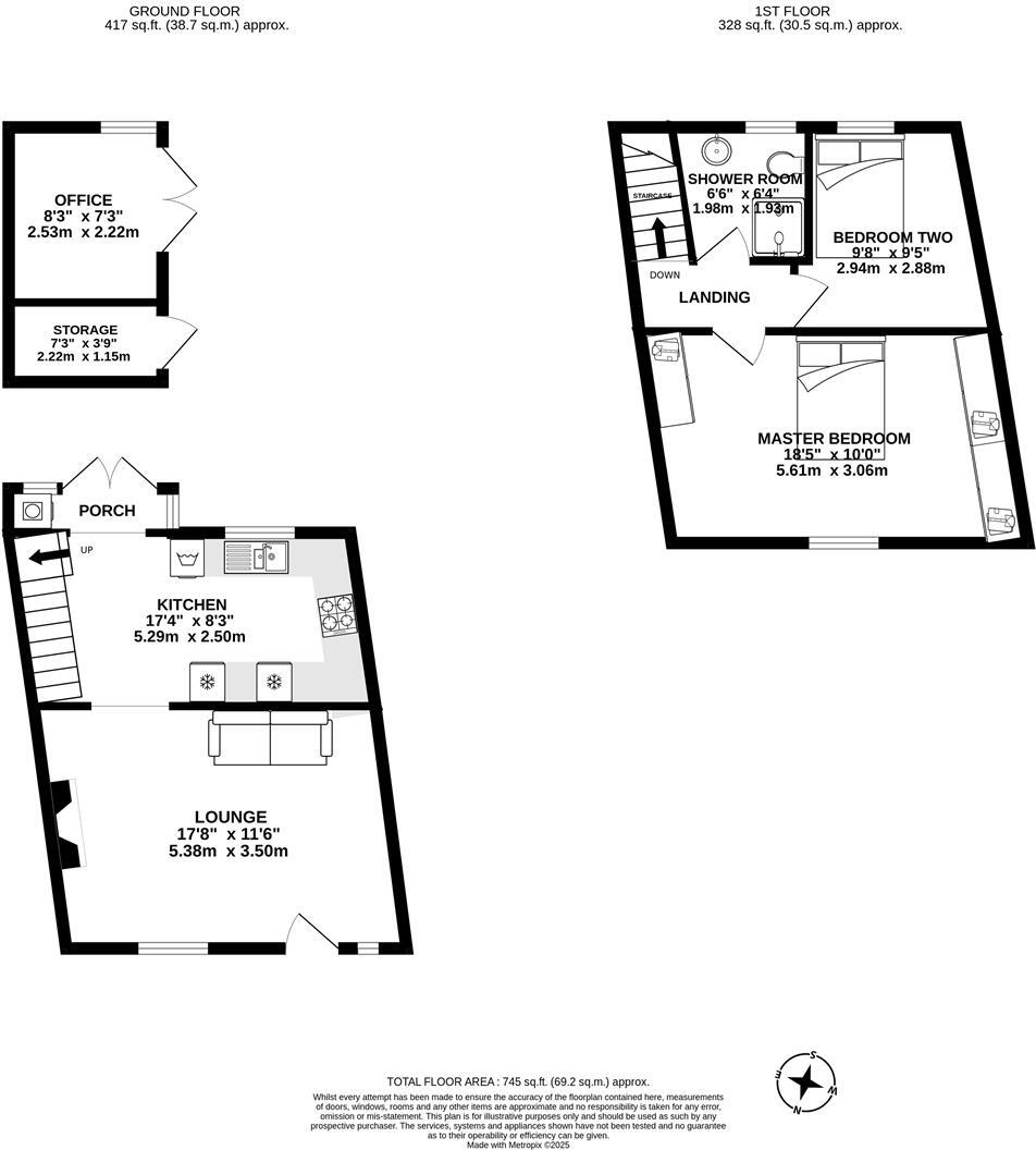
This is a charming terraced property located on Blackburn Road in Chorley. The house features two bedrooms and one bathroom, with a total square footage of approximately 750 sq ft. The property benefits from its proximity to well-regarded schools and local transportation links. The interior has been modernised, featuring a well-equipped kitchen and a stylish bathroom. The presence of a fireplace adds character to the living space. Externally, the property includes a garden with a patio and a shed, which is currently utilized as an office space. The listing price of £214,995 appears competitive, considering the property’s condition, location, and the prices of comparable properties in the area. Overall, this property would make a suitable home for a small family or a couple.
Therefore, we give this property 7 / 10. *Disclaimer: This is our option and does constitute a recommendation or financial advice. Do your own research. *
- Price
- 7
- Condition
- 8
- Location
- 7
- Land
- 7
- Bedrooms
- 2
- Bathrooms
- 1
- Sqft (est)
- 750.13
The heatmap indicates the level of crime in the area. The color of the heatmap indicates the crime severity and recency.
Metrics Year-on-Year
- Average area value
- 445,205.00 £Decreased by 3.69 %
- Est sale value
- 483,833.85 £Increased by 20.34 %
- Average area rental value
- 1,836.00 £/moIncreased by 4.79 %
- Est letting value
- 1,500.26 £/moUnchanged by 0.00 %
- Est rental Yield
- 4.95 %Increased by 8.79 %
- Crime Rate
- 1.00 %Unchanged by 0.00 %
Agent Activity
Ben Rose created the listing.
Nearby Schools
| Name | Type | Ofsted | Distance |
|---|---|---|---|
| Withnell Fold Primary School | Community School | Good | 0.49 KM |
| Brinscall St John'S Cofe And Methodist Primary School | Voluntary Aided School | Outstanding | 1.79 KM |
| Millfields Children'S Centre | Children's Centre | 2.01 KM | |
| Meadow View Learning Centre | Other Independent Special School | Good | 2.08 KM |
| Brindle St James' Church Of England Voluntary Aided Primary School | Voluntary Aided School | Good | 2.58 KM |
Images
Nearby Streets
| Name | Average Price | Average Sqft | Distance |
|---|---|---|---|
| Brown House Lane | £ 879,995 | 0 | 0.00 KM |
| The Drive | £ 0 | 0 | 0.00 KM |
| Albert Street | £ 0 | 0 | 0.00 KM |
Nearby Transport
| Name | NLC | TLC | Distance |
|---|---|---|---|
| Pleasington | 2752 | PLS | 6.17 KM |
| Chorley | 2745 | CRL | 6.56 KM |
| Buckshaw Parkway | 7501 | BSV | 8.40 KM |
| Bamber Bridge | 2561 | BMB | 8.55 KM |
| Cherry Tree | 2573 | CYT | 8.72 KM |
Nearby Listings
| Address | Price | Type | Score | Distance |
|---|---|---|---|---|
| Blackburn Road, Chorley | £ 214,995 | BUY | 7 / 10 | 0.00 KM |
| Blackburn Road, Higher Wheelton, Chorley | £ 299,995 | BUY | 7 / 10 | 0.19 KM |
| Jenny Lane, Higher Wheelton, Chorley | £ 429,995 | BUY | 7 / 10 | 0.25 KM |
| Blackburn Road, Higher Wheelton, Chorley | £ 299,995 | BUY | 7 / 10 | 0.33 KM |
| Bett Lane, Wheelton, Chorley | £ 699,995 | BUY | Unknown | 0.34 KM |
Nearby Properties
| Address | Price | Distance |
|---|---|---|
| The Crest | £ 220,000 | 0.17 KM |
| 462 Blackburn Road | £ 149,995 | 0.17 KM |
| 466 Blackburn Road | £ 160,000 | 0.17 KM |
| 492 Blackburn Road | £ 136,500 | 0.17 KM |
| 417 Blackburn Road | £ 350,000 | 0.30 KM |