Martin Maslin says ..
Situated on ever popular Daubney Street this excellent mid-terrace house provides beautifully presented accommodation with gas central heating and uPVC framed double glazing. The property was re-roofed in 2024 and has the benefit of a guaranteed damp proof course to some of the walls where r (cont.)
Property Oracle says ..
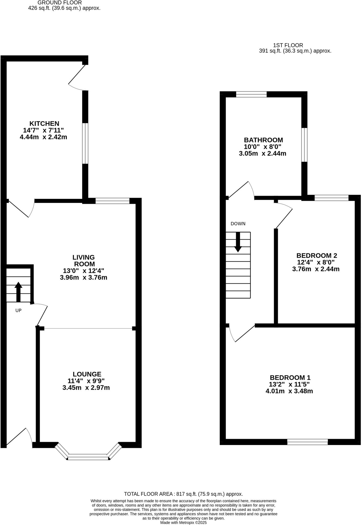
The property is a 2 bedroom terraced house located on Daubney Street, Cleethorpes, North East Lincolnshire. The property benefits from being close to local amenities and transport links. There are several good schools within a short distance, making it an attractive option for families.
The property appears to be in good condition, with a recently modernised kitchen and bathroom. The interior is presented well and is neutrally decorated. There is evidence of some modernisation throughout the property. The exterior of the property is also well maintained. The property includes a garden with a shed.
Given the average price per sqft in the area is £98, and considering the property’s condition, location, and included garden, the list price of £96,000 appears to be reasonable. While some nearby properties have sold for less, others have sold for more, suggesting the list price is within the typical range for similar properties in the area.
Therefore, we give this property 7 / 10. *Disclaimer: This is our option and does constitute a recommendation or financial advice. Do your own research. *
- Price
- 7
- Condition
- 8
- Location
- 7
- Land
- 7
- Bedrooms
- 2
- Bathrooms
- 1
The heatmap indicates the level of crime in the area. The color of the heatmap indicates the crime severity and recency.
Metrics Year-on-Year
- Average area value
- 81,988.00 £Decreased by 38.90 %
- Average area rental value
- 621.00 £/moDecreased by 2.36 %
- Est rental Yield
- 9.09 %Increased by 59.75 %
- Crime Rate
- 8.00 %Unchanged by 0.00 %
Agent Activity
Martin Maslin created the listing.
Nearby Schools
| Name | Type | Ofsted | Distance |
|---|---|---|---|
| Phoenix Park Academy | Academy Alternative Provision Sponsor Led | Good | 0.40 KM |
| William Barcroft Junior School | Academy Converter | Good | 0.59 KM |
| Queen Mary Avenue Infant School | Community School | Good | 0.62 KM |
| Old Clee Primary Academy | Academy Converter | Good | 0.94 KM |
| Old Clee Outreach | Children's Centre Linked Site | 0.94 KM |
Images
Nearby Streets
| Name | Average Price | Average Sqft | Distance |
|---|---|---|---|
| Montague Street | £ 0 | 0 | 0.00 KM |
| Humberstone Road | £ 0 | 0 | 0.00 KM |
| Frank Walsham Court | £ 0 | 0 | 0.00 KM |
| Calvi Court | £ 0 | 0 | 0.00 KM |
| Humberston Road | £ 0 | 0 | 0.00 KM |
Nearby Transport
| Name | NLC | TLC | Distance |
|---|---|---|---|
| New Clee | 6289 | NCE | 0.96 KM |
| Grimsby Docks | 6276 | GMD | 2.30 KM |
| Cleethorpes | 6274 | CLE | 3.04 KM |
| Grimsby Town | 6280 | GMB | 3.43 KM |
| Great Coates | 6275 | GCT | 8.25 KM |
Nearby Listings
| Address | Price | Type | Score | Distance |
|---|---|---|---|---|
| DAUBNEY STREET, CLEETHORPES | £ 96,000 | BUY | 7 / 10 | 0.00 KM |
| Daubney Street, Cleethorpes, DN35 | £ 90,000 | BUY | 6 / 10 | 0.07 KM |
| Freeston Street, Cleethorpes, Lincolnshire, DN35 | £ 90,000 | BUY | 6 / 10 | 0.09 KM |
| Daubney Street, Cleethorpes | £ 105,000 | BUY | 6 / 10 | 0.09 KM |
| Daubney Street, Cleethorpes, Lincolnshire, DN35 | £ 80,000 | BUY | 5 / 10 | 0.10 KM |
Nearby Properties
| Address | Price | Distance |
|---|---|---|
| 52 Freeston Street | £ 62,500 | 0.05 KM |
| 57 Freeston Street | £ 52,000 | 0.05 KM |
| 50 Freeston Street | £ 59,950 | 0.05 KM |
| 48 Freeston Street | £ 56,500 | 0.05 KM |
| 55 Freeston Street | £ 20,000 | 0.05 KM |