Dawn Close, Buckley, Flintshire, CH7
WI

Dawn Close, Buckley, Flintshire, CH7

By William Gleave

£ 335,000

Reviews

3 out of 5 stars

William Gleave says ..

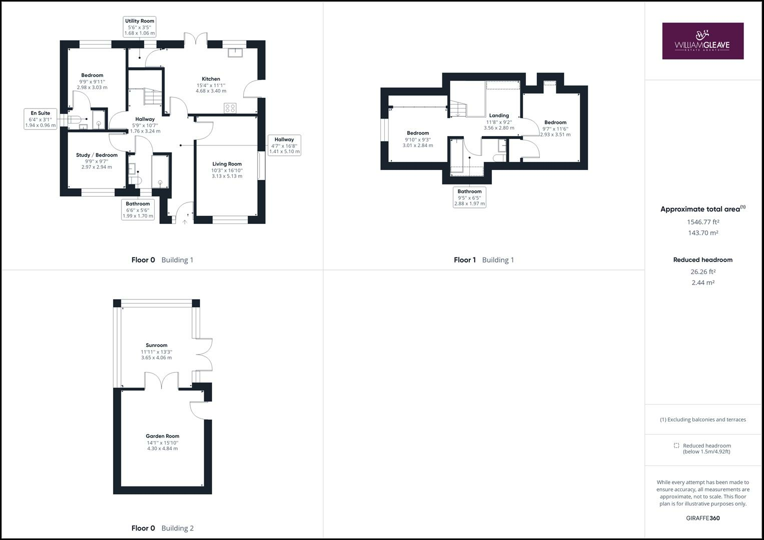
CUL-DE-SAC LOCATION | SPACIOUS DETACHED DORMER BUNGALOW | LANDSCAPED REAR GARDEN | A well presented three/four bedroom detached dormer bungalow, situated on the quiet cul-de-sac of Dawn Close. The property is ideally located being just a short distance from Buckley town centre offering a range of...

Property Oracle says ..

This four-bedroom, two-bathroom detached dormer bungalow in Buckley, Flintshire, is presented as a well-maintained and updated family home. Situated on a quiet cul-de-sac, Dawn Close, its location provides convenient access to local amenities, including shops and a good selection of schools, and benefits from relatively easy access to the A55 trunk road. The property features a substantial landscaped garden with a patio and conservatory, enhancing the appeal significantly. The interior photos suggest a clean and modern design; the property appears to be in very good condition, though precise square footage data is not available to determine a firm price per square foot. While comparable properties in the area show prices ranging from £130,000 to £300,000, this particular bungalow’s larger size, superior condition, and ample outdoor space appear to justify its higher listing price. Overall, this property offers a potentially appealing combination of location, condition, and amenities for a family seeking a comfortable home in Buckley.

Therefore, we give this property 7 / 10. *Disclaimer: This is our option and does constitute a recommendation or financial advice. Do your own research. *

Price
7
Condition
8
Location
7
Land
6
Bedrooms
4
Bathrooms
2
Sqft (est)
1,546.77

The heatmap indicates the level of crime in the area. The color of the heatmap indicates the crime severity and recency.

Metrics Year-on-Year

Average area value
195,000.00 £
Increased by 1.10 %
from 192,875.00 £
Est sale value
494,966.40 £
Increased by 65.80 %
from 298,526.61 £
Average area rental value
950.00 £/mo
Increased by 5.56 %
from 900.00 £/mo
Est letting value
1,546.77 £/mo
from 0.00 £/mo
Est rental Yield
5.85 %
Increased by 4.46 %
from 5.60 %
Crime Rate
16.00 %
Unchanged by 0.00 %
from 16.00 %

Agent Activity

  • William Gleave created the listing.

Nearby Schools

NameTypeOfstedDistance
Westwood Community Primary SchoolWelsh Establishment0.52 KM
Elfed High SchoolWelsh Establishment1.00 KM
Buckley Southdown C.P.Welsh Establishment1.02 KM
Mountain Lane C.P. SchoolWelsh Establishment1.35 KM
Argoed High SchoolWelsh Establishment2.55 KM

Images

CAM01993G0-PR0133-ST CAM01993G0-PR0133-ST CAM01993G0-PR0133-ST CAM01993G0-PR0133-ST CAM01993G0-PR0133-ST CAM01993G0-PR0133-ST CAM01993G0-PR0133-ST CAM01993G0-PR0133-ST CAM01993G0-PR0133-ST CAM01993G0-PR0133-ST CAM01993G0-PR0133-ST CAM01993G0-PR0133-ST CAM01993G0-PR0133-ST CAM01993G0-PR0133-ST CAM01993G0-PR0133-ST CAM01993G0-PR0133-ST CAM01993G0-PR0133-ST CAM01993G0-PR0133-ST CAM01993G0-PR0133-ST CAM01993G0-PR0133-ST CAM01993G0-PR0133-ST

Nearby Streets

NameAverage PriceAverage SqftDistance
Farm Close £ 160,00000.00 KM
Brunswick Road £ 000.00 KM
Cwrt Wilkinson £ 000.00 KM
Hope View £ 000.00 KM
Brick Barn Close £ 270,00000.00 KM

Nearby Transport

NameNLCTLCDistance
Buckley2422BCK3.02 KM
Penyffordd2433PNF3.83 KM
Hawarden2428HWD6.18 KM
Hope (Flintshire)2432HPE7.20 KM
Shotton2546SHT7.41 KM

Nearby Listings

AddressPriceTypeScoreDistance
Dawn Close, Buckley, Flintshire, CH7 £ 335,000BUY7 / 100.00 KM
Dawn Close, Buckley, Flintshire, CH7 £ 290,000BUYUnknown0.05 KM
Nant Mawr Road, Buckley £ 119,950BUY5 / 100.12 KM
Moel View Road, Buckley £ 250,000BUYUnknown0.13 KM
Nant Mawr Road, Buckley £ 125,000BUY6 / 100.13 KM

Nearby Properties

AddressPriceDistance
5 Dawn Close £ 166,0000.01 KM
1 Dawn Close £ 155,0000.01 KM
3 Dawn Close £ 160,0000.01 KM
14 Dawn Close £ 155,0000.01 KM
11 Dawn Close £ 265,0000.01 KM