Ashtons Estate Agents says ..
Nestled to the west of York, this spacious three-bedroom semi-detached property presents an exciting opportunity for the next owners to reimagine and update the home to suit their personal needs and style. The Paddock is a peaceful residential cul-de-sac, ideally situated just a short stroll from...
Property Oracle says ..
A semi-detached property in Acomb, York, with three bedrooms and one bathroom. The location is convenient, with nearby schools and transport. The property requires modernisation but features a large garden. The price is competitive, reflecting the need for renovation.
Therefore, we give this property 6 / 10. *Disclaimer: This is our option and does constitute a recommendation or financial advice. Do your own research. *
- Price
- 7
- Condition
- 5
- Location
- 7
- Land
- 8
- Bedrooms
- 3
- Bathrooms
- 1
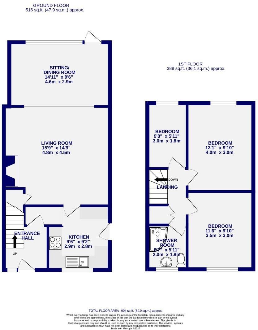
- Sqft (est)
- 904.00
The heatmap indicates the level of crime in the area. The color of the heatmap indicates the crime severity and recency.
Metrics Year-on-Year
- Average area value
- 591,875.00 £Increased by 5.13 %
- Est sale value
- 431,208.00 £Decreased by 6.47 %
- Average area rental value
- 1,194.00 £/moDecreased by 3.63 %
- Est letting value
- 0.00 £/moDecreased by 100.00 %
- Est rental Yield
- 2.42 %Decreased by 8.33 %
- Crime Rate
- 6.00 %Unchanged by 0.00 %
Agent Activity
Ashtons Estate Agents created the listing.
Nearby Schools
| Name | Type | Ofsted | Distance |
|---|---|---|---|
| Carr Infant School | Community School | Good | 0.56 KM |
| Carr Junior School | Academy Converter | 0.61 KM | |
| Carr Children'S Centre | Children's Centre | 0.61 KM | |
| Manor Church Of England Academy | Academy Converter | 1.26 KM | |
| Poppleton Road Primary School | Community School | Good | 1.50 KM |
Images
Nearby Streets
| Name | Average Price | Average Sqft | Distance |
|---|---|---|---|
| Ouse Acres | £ 0 | 0 | 0.00 KM |
| Woodlea Grove | £ 0 | 0 | 0.00 KM |
| Glebe Avenue | £ 0 | 0 | 0.00 KM |
| Medley Road | £ 0 | 0 | 0.00 KM |
| Carnoustie Close | £ 0 | 0 | 0.00 KM |
Nearby Transport
| Name | NLC | TLC | Distance |
|---|---|---|---|
| Poppleton | 8254 | POP | 2.46 KM |
| York | 8263 | YRK | 3.99 KM |
Nearby Listings
| Address | Price | Type | Score | Distance |
|---|---|---|---|---|
| The Paddock, York | £ 300,000 | BUY | 6 / 10 | 0.00 KM |
| The Paddock, York | £ 365,000 | BUY | 7 / 10 | 0.06 KM |
| The Paddock, York, YO26 | £ 375,000 | BUY | 7 / 10 | 0.10 KM |
| The Paddock, York YO26 6AW | £ 350,000 | BUY | 6 / 10 | 0.10 KM |
| Langholme Drive, York, YO26 | £ 285,000 | BUY | 5 / 10 | 0.11 KM |
Nearby Properties
| Address | Price | Distance |
|---|---|---|
| 77 Langholme Drive | £ 235,000 | 0.10 KM |
| 39 Langholme Drive | £ 187,500 | 0.10 KM |
| 47 Langholme Drive | £ 149,950 | 0.10 KM |
| 33 Langholme Drive | £ 256,000 | 0.10 KM |
| 15 Langholme Drive | £ 205,000 | 0.10 KM |