Hunters says ..
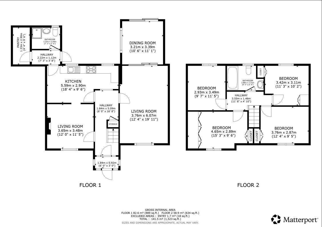
Located on Jubilee Crescent, Gravesend, this charming four bedroom, semi-detached house, presents an excellent opportunity for families seeking their next home. There are three reception rooms such as a dining room, lounge and sitting room, a kitchen with small area for dining, downstai...
Property Oracle says ..
This is a semi-detached house in Gravesend, Kent, featuring four bedrooms and two bathrooms. It offers a spacious 1,523 sq ft of living space and includes a garden with a shed. While the property is in reasonable condition, some areas, particularly the kitchen and bathrooms, would benefit from modernisation. The house is situated in a convenient location, with schools and transportation links nearby. The asking price of £425,000 is higher than the average for the area, but the property’s size offers good value per square foot. Overall, this property presents a good opportunity for buyers looking for a family home with potential for improvement.
Therefore, we give this property 6 / 10. *Disclaimer: This is our option and does constitute a recommendation or financial advice. Do your own research. *
- Price
- 7
- Condition
- 6
- Location
- 7
- Land
- 7
- Bedrooms
- 4
- Bathrooms
- 2
- Sqft (est)
- 1,523.09
The heatmap indicates the level of crime in the area. The color of the heatmap indicates the crime severity and recency.
Metrics Year-on-Year
- Average area value
- 362,625.00 £Increased by 7.63 %
- Est sale value
- 714,329.21 £Decreased by 18.58 %
- Average area rental value
- 1,733.00 £/moIncreased by 5.03 %
- Est letting value
- 3,046.18 £/moUnchanged by 0.00 %
- Est rental Yield
- 5.73 %Decreased by 2.55 %
- Crime Rate
- 9.00 %Unchanged by 0.00 %
Agent Activity
Hunters created the listing.
Nearby Schools
| Name | Type | Ofsted | Distance |
|---|---|---|---|
| North West Kent Alternative Provision Service | Academy Alternative Provision Sponsor Led | 0.34 KM | |
| Westcourt Primary School | Academy Converter | Good | 0.35 KM |
| Riverside Children'S Centre (Gravesend) | Children's Centre | 0.64 KM | |
| St John'S Catholic Comprehensive | Voluntary Aided School | Good | 0.71 KM |
| Link19 College | Special Post 16 Institution | 0.78 KM |
Images
Nearby Streets
| Name | Average Price | Average Sqft | Distance |
|---|---|---|---|
| Silver Road | £ 0 | 0 | 0.00 KM |
| St. Chad's Drive | £ 299,500 | 0 | 0.00 KM |
| Saint Dunstan's Drive | £ 375,000 | 0 | 0.00 KM |
| The Parade | £ 0 | 0 | 0.00 KM |
| Hillside Avenue | £ 350,000 | 0 | 0.00 KM |
Nearby Transport
| Name | NLC | TLC | Distance |
|---|---|---|---|
| Gravesend | 5172 | GRV | 2.84 KM |
| Sole Street | 5126 | SOR | 5.34 KM |
| Tilbury Town | 7462 | TIL | 5.35 KM |
| Meopham | 5116 | MEP | 6.02 KM |
| East Tilbury | 7471 | ETL | 6.66 KM |
Nearby Listings
| Address | Price | Type | Score | Distance |
|---|---|---|---|---|
| Jubilee Crescent, Gravesend, DA12 | £ 425,000 | BUY | 6 / 10 | 0.00 KM |
| Jubilee Crescent, Gravesend, Kent, DA12 | £ 300,000 | BUY | 7 / 10 | 0.06 KM |
| Lorton Close, Gravesend, DA12 4EX | £ 300,000 | BUY | 7 / 10 | 0.17 KM |
| Lorton Close, Gravesend, DA12 | £ 325,000 | BUY | 7 / 10 | 0.23 KM |
| Hampton Crescent, Gravesend, Kent, DA12 | £ 400,000 | BUY | 7 / 10 | 0.25 KM |
Nearby Properties
| Address | Price | Distance |
|---|---|---|
| 168 Hampton Crescent | £ 440,000 | 0.12 KM |
| 122 Hampton Crescent | £ 265,000 | 0.12 KM |
| 154 Hampton Crescent | £ 175,000 | 0.12 KM |
| 126 Hampton Crescent | £ 136,995 | 0.12 KM |
| 144 Hampton Crescent | £ 190,000 | 0.12 KM |