Ellerslie Drive, Malvern, Worcestershire, WR14
By Audley Estates
£ 495,000
Reviews
3 out of 5 stars
Audley Estates says ..
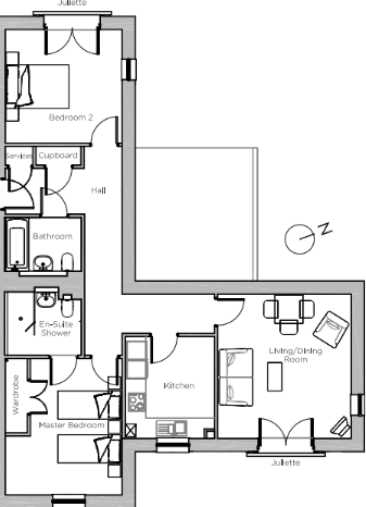
A fabulous two bedroom apartment with east-facing viewsThe apartment has a separate kitchen and living room with views from all windows and French doors with Juliet balcony. This apartment is very well located, adjoining the main house and the village facilities.
Property Oracle says ..
This property is a 2-bedroom, 2-bathroom retirement property located in Malvern, Worcestershire. The property is modern and well-maintained, as seen in the provided images. It benefits from a desirable location close to amenities and transport links. While the plot size is small, the property offers a good level of accommodation for its size. The list price is slightly above the average price for the area, but considering the modern condition and desirable location, it may represent good value for money. More information on the plot size would allow for a more definitive conclusion on land value.
Therefore, we give this property 6 / 10. *Disclaimer: This is our option and does constitute a recommendation or financial advice. Do your own research. *
- Price
- 7
- Condition
- 9
- Location
- 8
- Land
- 3
- Bedrooms
- 2
- Bathrooms
- 2
- Sqft (est)
- 610.00
The heatmap indicates the level of crime in the area. The color of the heatmap indicates the crime severity and recency.
Metrics Year-on-Year
- Average area value
- 456,240.00 £Increased by 13.67 %
- Est sale value
- 225,090.00 £Decreased by 7.29 %
- Average area rental value
- 1,149.00 £/moDecreased by 10.09 %
- Est letting value
- 0.00 £/moDecreased by 100.00 %
- Est rental Yield
- 3.02 %Decreased by 20.94 %
- Crime Rate
- 4.00 %Unchanged by 0.00 %
Agent Activity
Audley Estates created the listing.
Nearby Schools
| Name | Type | Ofsted | Distance |
|---|---|---|---|
| Malvern College | Other Independent School | 0.42 KM | |
| Malvern Wyche Cofe Primary School | Voluntary Controlled School | Good | 1.20 KM |
| Malvern Parish Cofe Primary School | Academy Converter | Good | 1.39 KM |
| Malvern St James | Other Independent School | 1.56 KM | |
| St James' Cofe Primary School | Voluntary Aided School | Good | 2.01 KM |
Images
Nearby Streets
| Name | Average Price | Average Sqft | Distance |
|---|---|---|---|
| Wells Road | £ 416,857 | 0 | 0.00 KM |
| 99 Steps | £ 400,000 | 0 | 0.00 KM |
| Priory Road | £ 379,983 | 0 | 0.00 KM |
| Swan Pool Walk | £ 0 | 0 | 0.00 KM |
| Lawnside | £ 380,000 | 0 | 0.00 KM |
Nearby Transport
| Name | NLC | TLC | Distance |
|---|---|---|---|
| Great Malvern | 4892 | GMV | 1.40 KM |
| Malvern Link | 4884 | MVL | 2.63 KM |
| Colwall | 4876 | CWL | 4.03 KM |
Nearby Listings
| Address | Price | Type | Score | Distance |
|---|---|---|---|---|
| Ellerslie Drive, Malvern, Worcestershire, WR14 | £ 550,000 | BUY | 6 / 10 | 0.00 KM |
| Ellerslie Drive, Malvern, Worcestershire, WR14 | £ 495,000 | BUY | 6 / 10 | 0.00 KM |
| Ellerslie Drive, Malvern, Worcestershire, WR14 | £ 475,000 | BUY | 6 / 10 | 0.03 KM |
| Lewis Court, Ellerslie Drive, Malvern, WR14 | £ 350,000 | BUY | 7 / 10 | 0.05 KM |
| Ellerslie Drive, Malvern, Worcestershire, WR14 | £ 350,000 | BUY | 8 / 10 | 0.06 KM |
Nearby Properties
| Address | Price | Distance |
|---|---|---|
| 41c Wells Road | £ 275,000 | 0.22 KM |
| 41a Wells Road | £ 330,000 | 0.23 KM |
| 47a Abbey Road | £ 625,000 | 0.30 KM |
| 47 Abbey Road | £ 640,000 | 0.30 KM |
| 18 Abbey Road | £ 200,000 | 0.32 KM |