Hamilton Avenue, Harborne, Birmingham, B17
Hadleigh logo

Hamilton Avenue, Harborne, Birmingham, B17

By Hadleigh

£ 1,550,000

Reviews

3 out of 5 stars

Hadleigh says ..

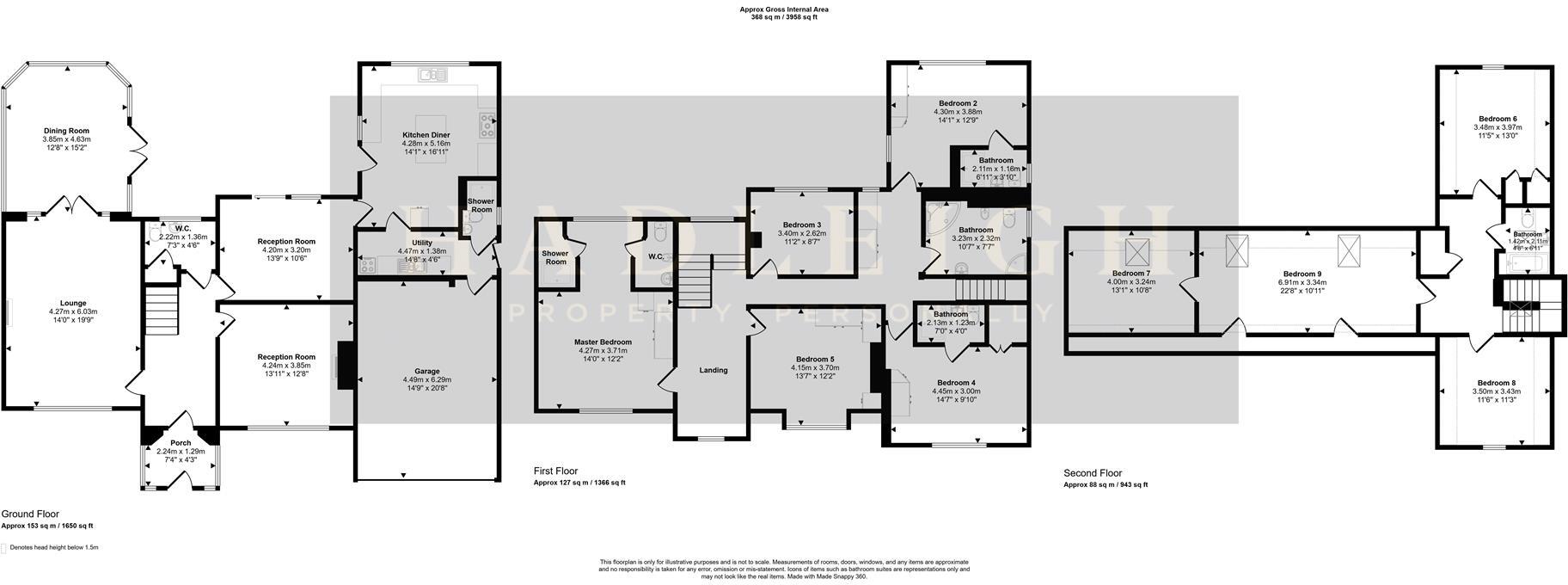
Hadleigh Estate Agents are delighted to offer this substantial detached home located on the ever popular Hamilton Avenue. Being set over three floors the property has been developed and refurbished by the current owners. Boasting an impressive nine spacious bedrooms and large private garden.

Property Oracle says ..

Therefore, we give this property 7 / 10. *Disclaimer: This is our option and does constitute a recommendation or financial advice. Do your own research. *

Price
7
Condition
6
Location
8
Land
8
Bedrooms
9
Bathrooms
6

The heatmap indicates the level of crime in the area. The color of the heatmap indicates the crime severity and recency.

Metrics Year-on-Year

Average area value
343,500.00 £
Decreased by 10.23 %
from 382,656.00 £
Average area rental value
1,207.00 £/mo
Decreased by 5.18 %
from 1,273.00 £/mo
Est rental Yield
4.22 %
Increased by 5.76 %
from 3.99 %
Crime Rate
0.00 %
from 0.00 %

Agent Activity

  • Hadleigh created the listing.

Nearby Schools

NameTypeOfstedDistance
Lordswood Girls' School And Sixth Form CentreAcademy Converter0.68 KM
Queen Alexandra CollegeSpecial Post 16 InstitutionGood0.69 KM
Our Lady Of Fatima Catholic Primary SchoolAcademy Converter0.82 KM
Lordswood Boys' SchoolAcademy Converter0.82 KM
Baskerville SchoolFoundation Special SchoolGood0.91 KM

Images

Hadleigh Estate Agents-52.jpg Hadleigh Estate Agents-58.jpg Hadleigh Estate Agents-1.jpg Hadleigh Estate Agents-53.jpg Lounge Hadleigh Estate Agents-4.jpg Hadleigh Estate Agents-5.jpg Dining Room Entrance Hallway Guest WC Hadleigh Estate Agents-10.jpg Reception Room 2 Hadleigh Estate Agents-12.jpg Kitchen Diner Hadleigh Estate Agents-15.jpg Hadleigh Estate Agents-16.jpg Shower Room Hadleigh Estate Agents-19.jpg Bedroom 5 Master Bedroom Hadleigh Estate Agents-28.jpg Hadleigh Estate Agents-38.jpg Bedroom 8 Hadleigh Estate Agents-40.jpg Bedroom 4 Hadleigh Estate Agents-42.jpg Bedroom 8 Bedroom 9 Bathroom Hadleigh Estate Agents-47.jpg Hadleigh Estate Agents-48.jpg Hadleigh Estate Agents-49.jpg Hadleigh Estate Agents-14.jpg Utility Room Hadleigh Estate Agents-22.jpg Reception Room 1 Hadleigh Estate Agents-24.jpg Shower Room/ WC Shower Room/ WC Bedroom 3 Hadleigh Estate Agents-34.jpg Family Bathroom Hadleigh Estate Agents-37.jpg Garden Hadleigh Estate Agents-51.jpg Hadleigh Estate Agents-57.jpg Hadleigh Estate Agents-59.jpg Hadleigh Estate Agents-62.jpg

Nearby Streets

NameAverage PriceAverage SqftDistance
Hamilton Avenue £ 1,475,00000.00 KM
Grosvenor Road £ 469,61800.00 KM
Oak Close £ 445,00000.00 KM
Wood Lane £ 433,75000.00 KM
Carless Avenue £ 435,00000.00 KM

Nearby Transport

NameNLCTLCDistance
Smethwick Rolfe Street1150SMR3.43 KM
University (Birmingham)4504UNI3.88 KM
Smethwick Galton Bridge1114SGB4.23 KM
The Hawthorns4523THW4.46 KM
Selly Oak1105SLY4.48 KM

Nearby Listings

AddressPriceTypeScoreDistance
Hamilton Avenue, Harborne, Birmingham, B17 £ 1,550,000BUY7 / 100.00 KM
Hamilton Avenue, Birmingham, West Midlands, B17 £ 1,550,000BUY6 / 100.00 KM
Hamilton Avenue, Harborne, Birmingham, B17 £ 1,475,000BUY6 / 100.10 KM
Hartford Close, Birmingham, B17 £ 300,000BUY5 / 100.19 KM
Lordswood Road, Birmingham £ 1,695,000BUY8 / 100.22 KM

Nearby Properties

AddressPriceDistance
69 Hamilton Avenue £ 1,350,0000.01 KM
75 Hamilton Avenue £ 700,0000.01 KM
57 Hamilton Avenue £ 640,0000.01 KM
78 Hamilton Avenue £ 985,0000.09 KM
66 Hamilton Avenue £ 795,0000.09 KM