Lindsay Street, Hetton Le Hole, Houghton Le Spring, DH5
By Hegartys Estate Agents
£ 170,000
Reviews
3 out of 5 stars
Hegartys Estate Agents says ..
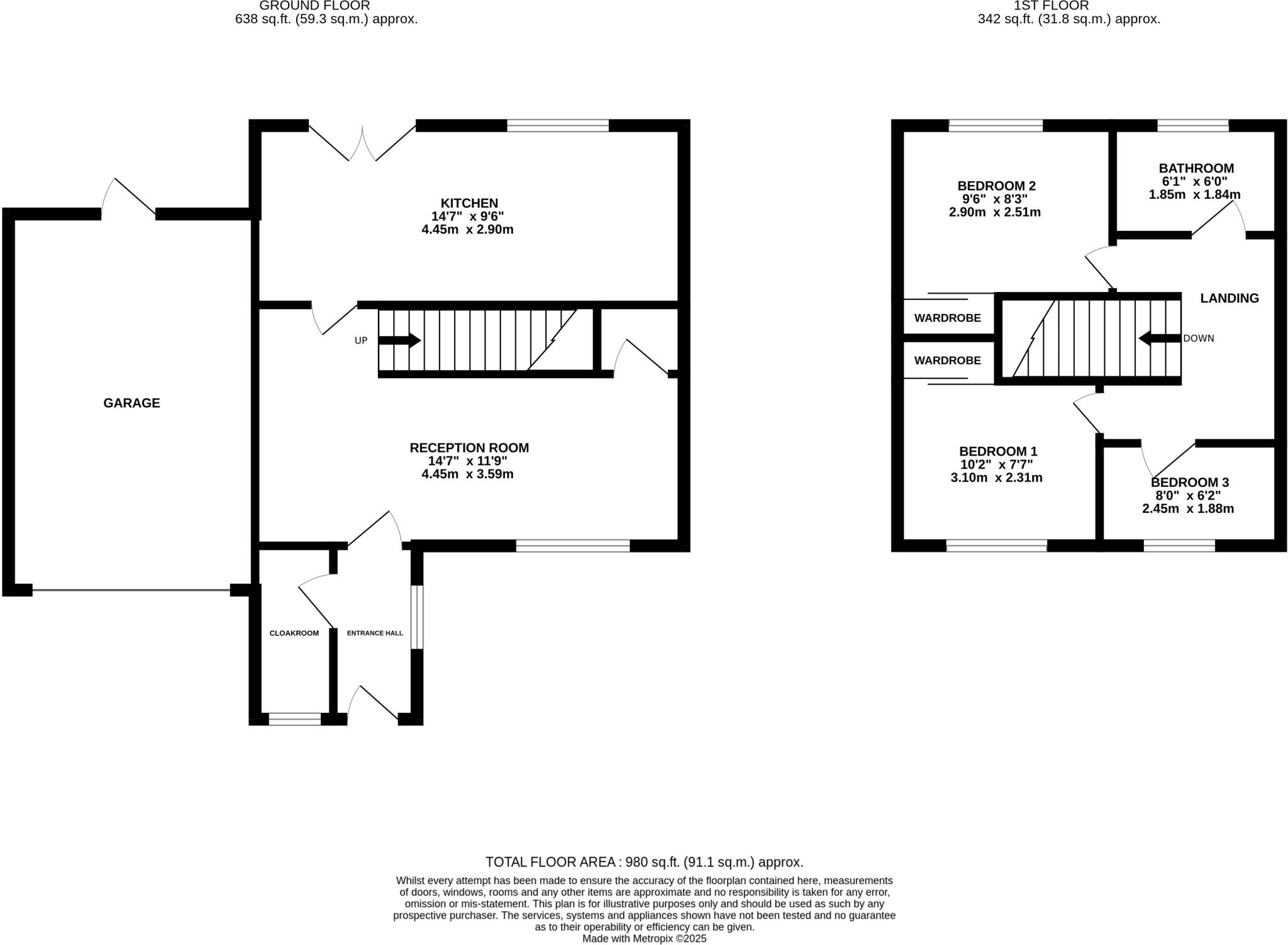
This charming link-detached home boasts a bright and modern interior, perfect for those seeking a contemporary living space. Featuring 3 bedrooms, this property offers ample space for a growing family or those looking for extra room for guests or a home office. The house also in...
Property Oracle says ..
This three-bedroom, one-bathroom property located on Lindsay Street in Hetton-le-Hole presents as a well-maintained family home. The interior is modern and shows evidence of recent decoration and updates, with a contemporary feel throughout. The kitchen and bathroom are clean and functional, and the bedrooms offer sufficient space. The property benefits from a garage and a garden, although the garden’s size is not specified, it appears to be relatively small to average. The presence of a modern shed adds extra storage or workspace. The location is within a residential area with access to several primary schools rated ‘Good’ by Ofsted, which is a positive for families. The lack of detailed information regarding public transportation access is a minor drawback. The list price of £170,000 appears to be competitive within the context of the provided data on nearby properties, though a precise price per square foot comparison is not possible due to missing data in the comparable listings. Overall, this property offers a comfortable and well-presented living space suitable for a family, although buyers should independently verify the garden size and transport links before purchase.
Therefore, we give this property 6 / 10. *Disclaimer: This is our option and does constitute a recommendation or financial advice. Do your own research. *
- Price
- 7
- Condition
- 8
- Location
- 7
- Land
- 4
- Bedrooms
- 3
- Bathrooms
- 1
- Sqft (est)
- 980.59
The heatmap indicates the level of crime in the area. The color of the heatmap indicates the crime severity and recency.
Metrics Year-on-Year
- Average area value
- 174,857.00 £Increased by 15.35 %
- Est sale value
- 241,225.14 £Increased by 67.35 %
- Average area rental value
- 906.00 £/moIncreased by 17.82 %
- Est letting value
- 980.59 £/mo
- Est rental Yield
- 6.22 %Increased by 2.13 %
- Crime Rate
- 5.00 %Unchanged by 0.00 %
Agent Activity
Hegartys Estate Agents marked this listing as sold.
Hegartys Estate Agents created the listing.
Nearby Schools
| Name | Type | Ofsted | Distance |
|---|---|---|---|
| Eppleton Academy Primary School | Academy Converter | Good | 0.45 KM |
| Gillas Lane Primary Academy | Academy Converter | Good | 1.40 KM |
| Hetton Lyons Primary School | Academy Converter | 1.59 KM | |
| Sunderland Children'S Centre Hetton | Children's Centre Linked Site | 1.64 KM | |
| Hetton Lyons Nursery School | Local Authority Nursery School | Good | 1.67 KM |
Images
Nearby Streets
| Name | Average Price | Average Sqft | Distance |
|---|---|---|---|
| Collingwood Street | £ 170,000 | 0 | 0.00 KM |
| Lady Street | £ 0 | 0 | 0.00 KM |
| Evergreen Road | £ 194,950 | 0 | 0.00 KM |
| Princess Gardens | £ 0 | 0 | 0.00 KM |
| Perkins Close | £ 0 | 0 | 0.00 KM |
Nearby Listings
| Address | Price | Type | Score | Distance |
|---|---|---|---|---|
| Lindsay Street, Hetton Le Hole, Houghton Le Spring, DH5 | £ 170,000 | BUY | 6 / 10 | 0.00 KM |
| Lindsay Street, Houghton le Spring, DH5 | £ 129,500 | BUY | 7 / 10 | 0.04 KM |
| Lindsay Street, Hetton-le-Hole, Houghton Le Spring, Tyne and Wear, DH5 9AT | £ 135,000 | BUY | Unknown | 0.07 KM |
| Henry Street, Hetton-Le-Hole, Houghton Le Spring | £ 165,000 | BUY | 6 / 10 | 0.11 KM |
| Henry Street, Hetton Le Hole, Sunderland, DH5 | £ 110,000 | BUY | Unknown | 0.13 KM |
Nearby Properties
| Address | Price | Distance |
|---|---|---|
| 7 Lindsay Street | £ 115,000 | 0.04 KM |
| 4 Henry Street | £ 118,745 | 0.06 KM |
| 6 Henry Street | £ 114,995 | 0.06 KM |
| 3 Henry Street | £ 123,495 | 0.08 KM |
| 30 Lindsay Street | £ 70,000 | 0.08 KM |