53/10 Balfour Street, Leith Edinburgh, EH6 5DP
Warners Solicitors logo

53/10 Balfour Street, Leith Edinburgh, EH6 5DP

By Warners Solicitors

£ 175,000

Reviews

3 out of 5 stars

Warners Solicitors says ..

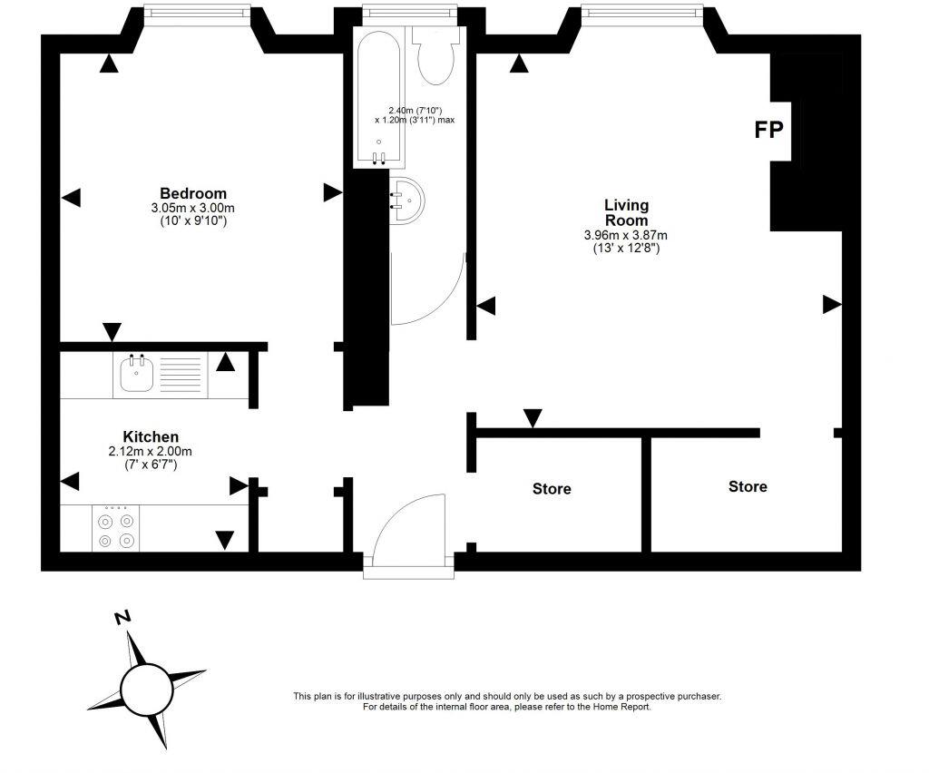
Set on a quiet cul-de-sac in the heart of sought-after Leith, seconds from excellent amenities, cafes, bars and restaurants is this spacious top floor apartment. Nestled in a handsome traditional tenement the property boasts a well-kept communal garden, opulent period features and gas central hea...

Property Oracle says ..

This is a well-presented one-bedroom flat in a popular location. The property is in good condition and benefits from a shared garden. The price is competitive for the area.

Therefore, we give this property 7 / 10. *Disclaimer: This is our option and does constitute a recommendation or financial advice. Do your own research. *

Price
7
Condition
8
Location
7
Land
7
Bedrooms
1
Bathrooms
1
Sqft (est)
309.09

The heatmap indicates the level of crime in the area. The color of the heatmap indicates the crime severity and recency.

Metrics Year-on-Year

Average area value
243,409.00 £
Decreased by 18.96 %
from 300,349.00 £
Est sale value
125,181.45 £
Increased by 2.27 %
from 122,399.64 £
Average area rental value
1,724.00 £/mo
Increased by 17.52 %
from 1,467.00 £/mo
Est letting value
618.18 £/mo
Increased by 100.00 %
from 309.09 £/mo
Est rental Yield
8.50 %
Increased by 45.05 %
from 5.86 %
Crime Rate
0.00 %
from 0.00 %

Agent Activity

  • Warners Solicitors created the listing.

Images

Primary Property Image Property Image 2 Property Image 3 Property Image 4 Property Image 5 Property Image 6 Property Image 7 Property Image 8 Property Image 9 Property Image 10 Property Image 11 Property Image 12 Property Image 13 Property Image 14 Property Image 15

Nearby Streets

NameAverage PriceAverage SqftDistance
Pilrig Cottages £ 305,00000.00 KM
Orchardfield Lane £ 145,00000.00 KM
Quintinshill Place £ 000.00 KM
Shaw's Terrace £ 275,00000.00 KM
Bonnington Road £ 000.00 KM

Nearby Transport

NameNLCTLCDistance
Edinburgh9328EDB1.98 KM
Haymarket9419HYM5.00 KM
Slateford9236SLA8.46 KM
Brunstane8807BSU9.06 KM

Nearby Listings

AddressPriceTypeScoreDistance
53/10 Balfour Street, Leith Edinburgh, EH6 5DP £ 175,000BUY7 / 100.00 KM
49 1f2, Balfour Street, Leith, Edinburgh, EH6 5DP £ 220,000BUY6 / 100.00 KM
Balfour Place, Edinburgh, Midlothian, EH6 £ 85,000BUYUnknown0.04 KM
Balfour Place, Edinburgh, Midlothian, EH6 £ 210,000BUYUnknown0.10 KM
Balfour Street, Edinburgh, Midlothian, EH6 £ 195,000BUY4 / 100.10 KM