TO
Colley End Road, Paignton
By Torbay Property Management
£ 255,000
Reviews
3 out of 5 stars
Torbay Property Management says ..
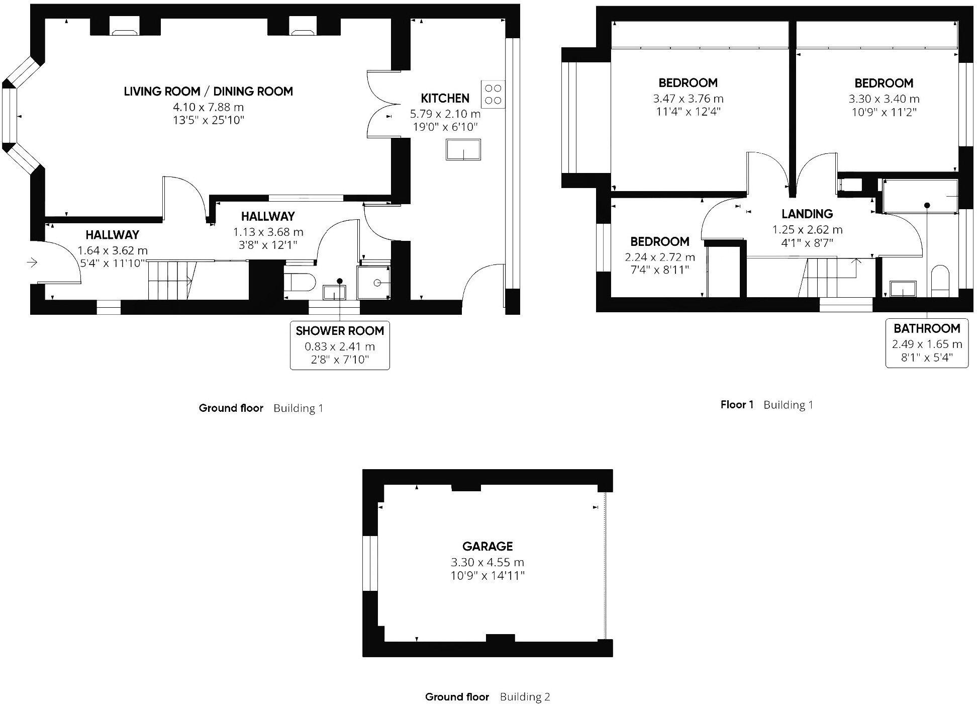
Modern and deceptively spacious three-bedroom semi-detached house, available chain-free and located in a highly convenient area of Paignton.
Property Oracle says ..
Therefore, we give this property 7 / 10. *Disclaimer: This is our option and does constitute a recommendation or financial advice. Do your own research. *
- Price
- 9
- Condition
- 8
- Location
- 7
- Land
- 7
- Bedrooms
- 3
- Bathrooms
- 2
- Sqft (est)
- 1,176.71
The heatmap indicates the level of crime in the area. The color of the heatmap indicates the crime severity and recency.
Metrics Year-on-Year
- Average area value
- 274,173.00 £Decreased by 3.48 %
- Est sale value
- 275,350.14 £Decreased by 14.91 %
- Average area rental value
- 1,050.00 £/moIncreased by 2.44 %
- Est letting value
- 0.00 £/mo
- Est rental Yield
- 4.60 %Increased by 6.24 %
- Crime Rate
- 3.00 %Unchanged by 0.00 %
from 284,071.00 £
from 323,595.25 £
from 1,025.00 £/mo
from 0.00 £/mo
from 4.33 %
from 3.00 %
Agent Activity
Torbay Property Management created the listing.
Nearby Schools
| Name | Type | Ofsted | Distance |
|---|---|---|---|
| Sacred Heart Catholic School | Academy Converter | Good | 0.80 KM |
| Oldway Primary School | Academy Converter | 0.89 KM | |
| Hayes School | Academy Converter | Good | 0.91 KM |
| St Michael'S Church Of England Academy | Free Schools | 0.94 KM | |
| Curledge Street Academy | Academy Converter | Good | 0.97 KM |
Images
Nearby Streets
| Name | Average Price | Average Sqft | Distance |
|---|---|---|---|
| St. Mary's Court | £ 0 | 0 | 0.00 KM |
| Quarry Gardens | £ 350,000 | 0 | 0.00 KM |
| Winner Hill Road | £ 0 | 0 | 0.00 KM |
| Clifton Gardens | £ 0 | 0 | 0.00 KM |
| Hillside Road | £ 350,000 | 0 | 0.00 KM |
Nearby Transport
| Name | NLC | TLC | Distance |
|---|---|---|---|
| Paignton | 3427 | PGN | 1.28 KM |
| Torquay | 3434 | TQY | 4.46 KM |
| Torre | 3432 | TRR | 5.13 KM |
Nearby Listings
| Address | Price | Type | Score | Distance |
|---|---|---|---|---|
| Colley End Road, Paignton | £ 255,000 | BUY | 7 / 10 | 0.00 KM |
| Colley End Road, Paignton, Devon | £ 200,000 | BUY | 6 / 10 | 0.00 KM |
| Colley End Road, PAIGNTON, Devon, TQ3 | £ 190,000 | BUY | 6 / 10 | 0.00 KM |
| Colley End Road, Paignton | £ 230,000 | BUY | 7 / 10 | 0.01 KM |
| Colley End Road, Paignton | £ 250,000 | BUY | 7 / 10 | 0.01 KM |
Nearby Properties
| Address | Price | Distance |
|---|---|---|
| 38 Colley End Road | £ 137,000 | 0.00 KM |
| 84 Colley End Road | £ 260,000 | 0.00 KM |
| 42 Colley End Road | £ 35,500 | 0.00 KM |
| 34 Colley End Road | £ 155,000 | 0.00 KM |
| 50 Colley End Road | £ 140,000 | 0.00 KM |