Langford Russell says ..
Offered to the market chain free, this spacious one-bedroom flat is located within the sought-after Ashton Court development in the heart of Beckenham. Representing an excellent opportunity for first-time buyers, investors, or those looking to add value, the property could benefit from updating t...
Property Oracle says ..
This one-bedroom apartment in Beckenham’s Fontaime Court offers a balance of location and value. While the apartment could benefit from some modernisation, it is situated in a convenient location with access to transportation, schools, and local amenities. The communal gardens provide shared outdoor space, and the price appears competitive compared to other properties in the area. The property is listed with Langford Russell.
Therefore, we give this property 6 / 10. *Disclaimer: This is our option and does constitute a recommendation or financial advice. Do your own research. *
- Price
- 7
- Condition
- 6
- Location
- 7
- Land
- 5
- Bedrooms
- 1
- Bathrooms
- 1
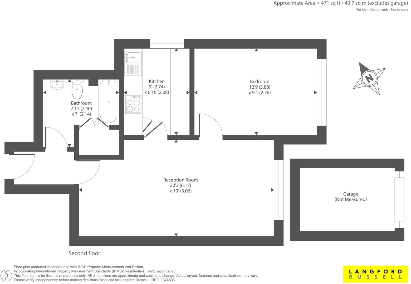
- Sqft (est)
- 471.00
The heatmap indicates the level of crime in the area. The color of the heatmap indicates the crime severity and recency.
Metrics Year-on-Year
- Average area value
- 666,950.00 £Increased by 20.68 %
- Est sale value
- 333,939.00 £Increased by 27.98 %
- Average area rental value
- 1,565.00 £/moDecreased by 5.89 %
- Est letting value
- 471.00 £/moUnchanged by 0.00 %
- Est rental Yield
- 2.82 %Decreased by 21.88 %
- Crime Rate
- 6.00 %Unchanged by 0.00 %
Agent Activity
Langford Russell created the listing.
Nearby Schools
| Name | Type | Ofsted | Distance |
|---|---|---|---|
| Kings London | Other Independent School | Good | 0.43 KM |
| Balgowan Primary School | Academy Converter | Good | 0.92 KM |
| Worsley Bridge Primary School | Academy Sponsor Led | Good | 0.96 KM |
| Harris Primary Academy Beckenham Green | Academy Converter | 1.09 KM | |
| Harris Girls Academy Bromley | Academy Converter | Outstanding | 1.11 KM |
Images
Nearby Streets
| Name | Average Price | Average Sqft | Distance |
|---|---|---|---|
| Fontaime Court | £ 0 | 0 | 0.00 KM |
| Waterside | £ 270,000 | 0 | 0.00 KM |
| Monivea Road | £ 0 | 0 | 0.00 KM |
| Queen's Court | £ 275,000 | 0 | 0.00 KM |
| Adelaide Court | £ 250,000 | 0 | 0.00 KM |
Nearby Transport
| Name | NLC | TLC | Distance |
|---|---|---|---|
| New Beckenham | 5058 | NBC | 0.75 KM |
| Beckenham Junction | 5046 | BKJ | 0.79 KM |
| Clock House | 5048 | CLK | 0.86 KM |
| Kent House | 5080 | KTH | 1.36 KM |
| Lower Sydenham | 5053 | LSY | 1.61 KM |
Nearby Listings
| Address | Price | Type | Score | Distance |
|---|---|---|---|---|
| Hayne Road, Beckenham | £ 280,000 | BUY | 6 / 10 | 0.00 KM |
| Hayne Road, Beckenham, BR3 | £ 500,000 | BUY | 5 / 10 | 0.02 KM |
| Hayne Road, Beckenham, BR3 | £ 350,000 | BUY | Unknown | 0.03 KM |
| Hayne Road, Beckenham, BR3 | £ 275,000 | BUY | 6 / 10 | 0.05 KM |
| Hayne Road, Beckenham | £ 385,000 | BUY | 5 / 10 | 0.07 KM |
Nearby Properties
| Address | Price | Distance |
|---|---|---|
| 16a Hayne Road | £ 321,000 | 0.06 KM |
| 20 Embassy Gardens | £ 190,000 | 0.07 KM |
| 22 Embassy Gardens | £ 169,500 | 0.07 KM |
| 1 Embassy Gardens | £ 274,500 | 0.07 KM |
| 5 Embassy Gardens | £ 327,000 | 0.07 KM |