Weavers Lane, Sudbury, Suffolk, CO10
Fenn Wright logo

Weavers Lane, Sudbury, Suffolk, CO10

By Fenn Wright

£ 650,000

Reviews

3 out of 5 stars

Fenn Wright says ..

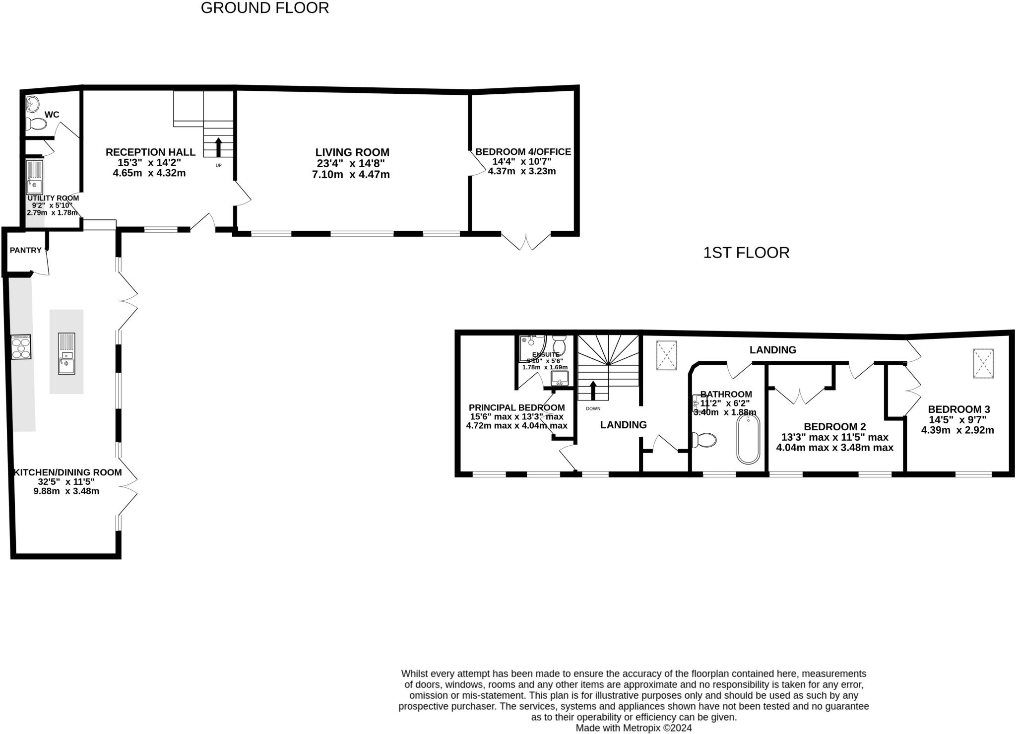
As part of our Signature collection is this sympathetically restored former dairy situated in a quiet lane within Sudbury town centre and offered with no onward chain. The property offers flexible accommodation with bedrooms on the ground and first floor as well as spacious open pl...

Property Oracle says ..

This property is a sympathetically restored former dairy located in a quiet lane within Sudbury town centre. It offers flexible accommodation with bedrooms on both the ground and first floor, as well as spacious open plan living areas. The property benefits from being offered with no onward chain. The location is convenient, with nearby schools and a train station. However, the provided plot size is 0.00 sqft, suggesting a lack of garden space. Based on the images, the property appears to be in good condition, though some areas, such as the upstairs bedrooms, appear unfinished or in need of flooring. The list price of £650,000 is significantly higher than the average price for the area (£280,179). While the property is larger than average (2,195.73 sqft vs 893 sqft), the lack of land and the unfinished state of some areas may impact its overall value. A more detailed valuation would be needed to assess the price per sqft and compare it to similar properties in the area.

Therefore, we give this property 6 / 10. *Disclaimer: This is our option and does constitute a recommendation or financial advice. Do your own research. *

Price
5
Condition
8
Location
9
Land
2
Bedrooms
4
Bathrooms
2
Sqft (est)
2,195.73

The heatmap indicates the level of crime in the area. The color of the heatmap indicates the crime severity and recency.

Metrics Year-on-Year

Average area value
437,000.00 £
Increased by 27.97 %
from 341,487.00 £
Est sale value
568,694.07 £
Decreased by 14.24 %
from 663,110.46 £
Average area rental value
938.00 £/mo
Decreased by 11.84 %
from 1,064.00 £/mo
Est letting value
0.00 £/mo
from 0.00 £/mo
Est rental Yield
2.58 %
Decreased by 31.02 %
from 3.74 %
Crime Rate
21.00 %
Unchanged by 0.00 %
from 21.00 %

Agent Activity

  • Fenn Wright created the listing.

Nearby Schools

NameTypeOfstedDistance
St Joseph'S Roman Catholic Primary SchoolVoluntary Aided SchoolGood0.38 KM
St Gregory Church Of England Voluntary Controlled Primary SchoolVoluntary Controlled SchoolGood0.57 KM
Tudor Church Of England Primary School, SudburyAcademy Sponsor LedGood0.84 KM
Phoenix Children'S CentreChildren's Centre0.92 KM
Woodlands Children'S CentreChildren's Centre0.92 KM

Images

Picture No. 02 Picture No. 22 Picture No. 10 Picture No. 13 Picture No. 16 Picture No. 15 Picture No. 18 Picture No. 17 Picture No. 19 Picture No. 04 Picture No. 08 Picture No. 14 Picture No. 20 Picture No. 09 Picture No. 05 Picture No. 06 Picture No. 07 Picture No. 03 Picture No. 11 Picture No. 12 Picture No. 01

Nearby Streets

NameAverage PriceAverage SqftDistance
North Street Parade £ 375,00000.00 KM
Northcroft £ 000.00 KM
Croft Court £ 000.00 KM
Meadow Lane £ 325,00000.00 KM
Stour Street £ 700,00000.00 KM

Nearby Transport

NameNLCTLCDistance
Sudbury (Suffolk)7098SUY0.82 KM
Bures7085BUE8.79 KM

Nearby Listings

AddressPriceTypeScoreDistance
Weavers Lane, Sudbury, Suffolk, CO10 £ 650,000BUY6 / 100.00 KM
Weavers Lane, Sudbury, Suffolk £ 450,000BUY7 / 100.02 KM
Burkitts Lane, Sudbury £ 220,000BUY5 / 100.04 KM
Burkitts Lane, Sudbury £ 425,000BUY7 / 100.05 KM
Burkitts Lane, Sudbury £ 425,000BUYUnknown0.05 KM

Nearby Properties

AddressPriceDistance
11 Weavers Lane £ 510,0000.02 KM
8 Burkitts Lane £ 145,0000.03 KM
21 Burkitts Lane £ 215,0000.03 KM
9a Burkitts Lane £ 90,0000.03 KM
8 Weavers Court £ 149,0000.10 KM