122 Courtney Road, Kingswood, Bristol
HO

122 Courtney Road, Kingswood, Bristol

By House + Co Property

£ 525,000

Reviews

3 out of 5 stars

House + Co Property says ..

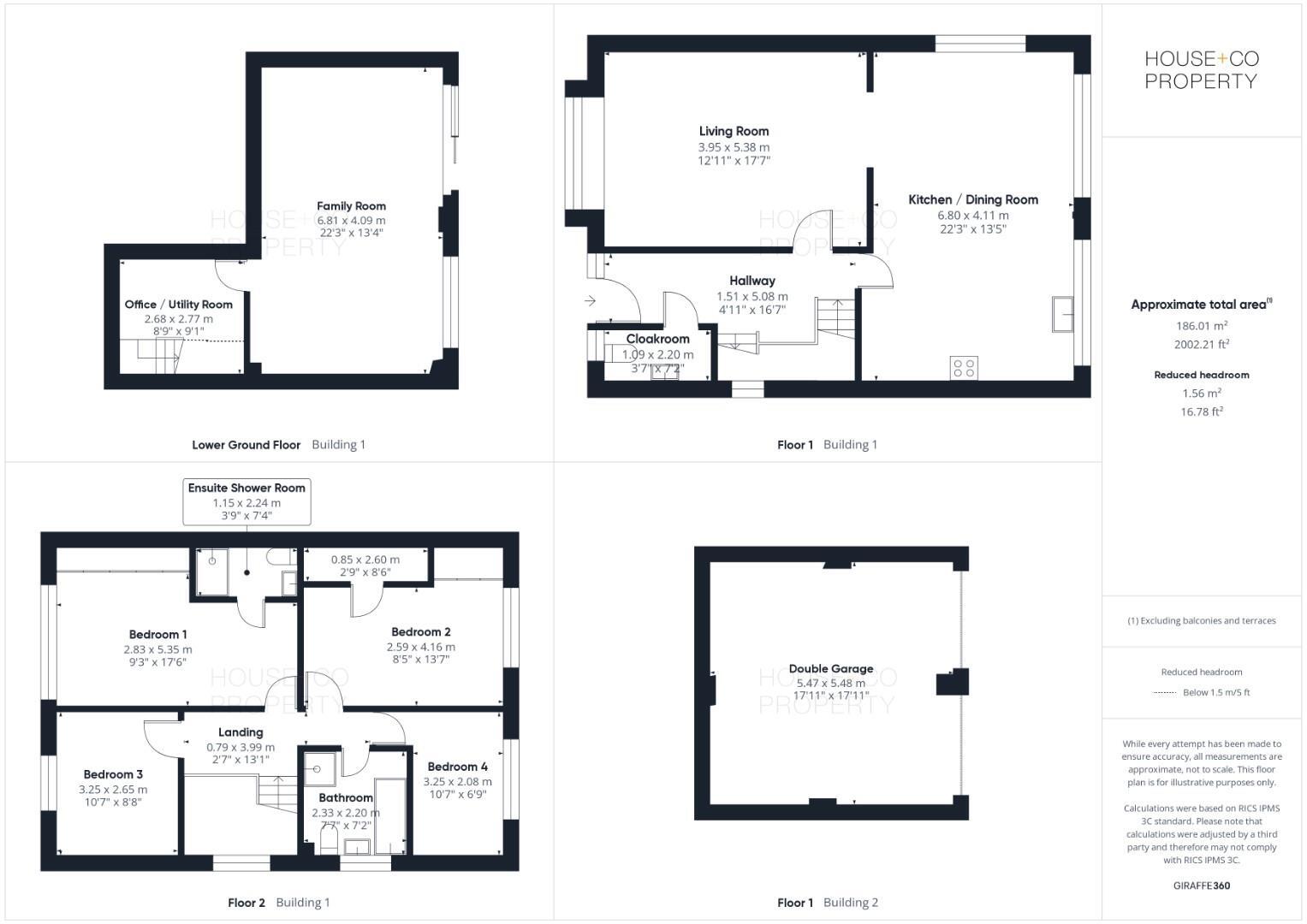
This well proportioned 4 bedroom detached home is arranged over 3 floors with a double garage and parking to the rear, With its southerly facing rear garden views and open aspect to the rear this is a great family home offering something a little different for the area. As you enter the...

Property Oracle says ..

This property is a four-bedroom, two-bathroom detached house located in Kingswood, Bristol. It benefits from a modern, extended kitchen and a good-sized garden with a shed and decking. The property is within easy reach of local schools and transport links. While some of the bathrooms appear dated, the property overall is in good condition and has undergone recent renovations in the kitchen and living areas. The list price is higher than the average for the area, but the size and recent improvements might justify this.

Therefore, we give this property 7 / 10. *Disclaimer: This is our option and does constitute a recommendation or financial advice. Do your own research. *

Price
7
Condition
8
Location
8
Land
7
Bedrooms
4
Bathrooms
2
Sqft (est)
2,002.21

The heatmap indicates the level of crime in the area. The color of the heatmap indicates the crime severity and recency.

Metrics Year-on-Year

Average area value
286,661.00 ยฃ
Decreased by 17.29 %
from 346,601.00 ยฃ
Est sale value
732,808.86 ยฃ
Increased by 6.71 %
from 686,758.03 ยฃ
Average area rental value
1,263.00 ยฃ/mo
Decreased by 11.86 %
from 1,433.00 ยฃ/mo
Est letting value
2,002.21 ยฃ/mo
Unchanged by 0.00 %
from 2,002.21 ยฃ/mo
Est rental Yield
5.29 %
Increased by 6.65 %
from 4.96 %
Crime Rate
5.00 %
Unchanged by 0.00 %
from 5.00 %

Agent Activity

  • House + Co Property created the listing.

Nearby Schools

NameTypeOfstedDistance
Courtney Primary SchoolCommunity SchoolGood0.09 KM
The Park Primary SchoolCommunity SchoolGood0.61 KM
Kingswood Children'S CentreChildren's Centre0.61 KM
Our Lady Of Lourdes Catholic Primary SchoolVoluntary Aided SchoolGood0.94 KM
New Horizons Learning CentreCommunity Special SchoolGood1.02 KM

Images

CAM01530G0-PR0235-STILL062.jpg CAM01530G0-PR0235-STILL009.jpg CAM01530G0-PR0235-STILL013.jpg CAM01530G0-PR0235-STILL016.jpg CAM01530G0-PR0235-STILL023.jpg CAM01530G0-PR0235-STILL022.jpg CAM01530G0-PR0235-STILL024.jpg CAM01530G0-PR0235-STILL027.jpg CAM01530G0-PR0235-STILL039.jpg CAM01530G0-PR0235-STILL037.jpg CAM01530G0-PR0235-STILL040.jpg CAM01530G0-PR0235-STILL032.jpg CAM01530G0-PR0235-STILL034.jpg CAM01530G0-PR0235-STILL035.jpg CAM01530G0-PR0235-STILL047.jpg CAM01576G0-PR0234-STILL004.jpg CAM01530G0-PR0235-STILL010.jpg CAM01530G0-PR0235-STILL004.jpg CAM01530G0-PR0235-STILL005.jpg CAM01530G0-PR0235-STILL008 (1).jpg CAM01530G0-PR0235-STILL017.jpg CAM01530G0-PR0235-STILL011.jpg CAM01530G0-PR0235-STILL014.jpg CAM01530G0-PR0235-STILL019.jpg CAM01530G0-PR0235-STILL018.jpg CAM01530G0-PR0235-STILL020.jpg CAM01530G0-PR0235-STILL006.jpg CAM01530G0-PR0235-STILL041.jpg CAM01530G0-PR0235-STILL025.jpg CAM01530G0-PR0235-STILL026.jpg CAM01530G0-PR0235-STILL029.jpg CAM01530G0-PR0235-STILL030.jpg CAM01576G0-PR0234-STILL007.jpg CAM01530G0-PR0235-STILL054.jpg CAM01530G0-PR0235-STILL052.jpg CAM01530G0-PR0235-STILL053.jpg CAM01530G0-PR0235-STILL046.jpg CAM01530G0-PR0235-STILL049.jpg CAM01530G0-PR0235-STILL057.jpg CAM01530G0-PR0235-STILL056.jpg CAM01530G0-PR0235-STILL060.jpg CAM01530G0-PR0235-STILL048.jpg CAM01530G0-PR0235-STILL036.jpg CAM01530G0-PR0235-STILL001.jpg CAM01576G0-PR0234-STILL002.jpg CAM01576G0-PR0234-STILL001.jpg CAM01576G0-PR0234-STILL009.jpg CAM01576G0-PR0234-STILL005.jpg

Nearby Streets

NameAverage PriceAverage SqftDistance
Bellevue Road £ 266,42900.00 KM
Bredon Close £ 000.00 KM
Woodstock Road £ 338,00000.00 KM
The Orchards £ 273,99000.00 KM
Park View £ 275,00000.00 KM

Nearby Transport

NameNLCTLCDistance
Keynsham3237KYN4.25 KM
Lawrence Hill3225LWH7.43 KM
Stapleton Road3250SRD7.73 KM
Bristol Parkway3230BPW8.11 KM
Filton Abbey Wood3235FIT9.02 KM

Nearby Listings

AddressPriceTypeScoreDistance
122 Courtney Road, Kingswood, Bristol £ 525,000BUY7 / 100.00 KM
Courtney Road, Kingswood, Bristol, BS15 9RW £ 500,000BUY7 / 100.04 KM
Wedmore Close, Bristol, BS15 £ 165,000BUY5 / 100.09 KM
Wedmore Close, Bristol, Gloucestershire, BS15 £ 280,000BUY7 / 100.11 KM
Ladd Close, Kingswood, Bristol, BS15 9LG £ 147,500BUYUnknown0.18 KM

Nearby Properties

AddressPriceDistance
100 Courtney Road £ 109,0000.06 KM
106 Courtney Road £ 215,0000.06 KM
110 Courtney Road £ 333,0000.08 KM
108 Courtney Road £ 164,0000.08 KM
116 Courtney Road £ 315,0000.08 KM