Stamford Road, Birkdale, Southport
By Flexi-Agent
£ 160,000
Reviews
3 out of 5 stars
Flexi-Agent says ..
Flexi Agent are proud to present this two bedroom, extended semi-detached property to the open market. This establishment would ideally suit a first time buyer, families and or investors alike. Situated in the sought after district of Birkdale, and is within walking distance of the village, among...
Property Oracle says ..
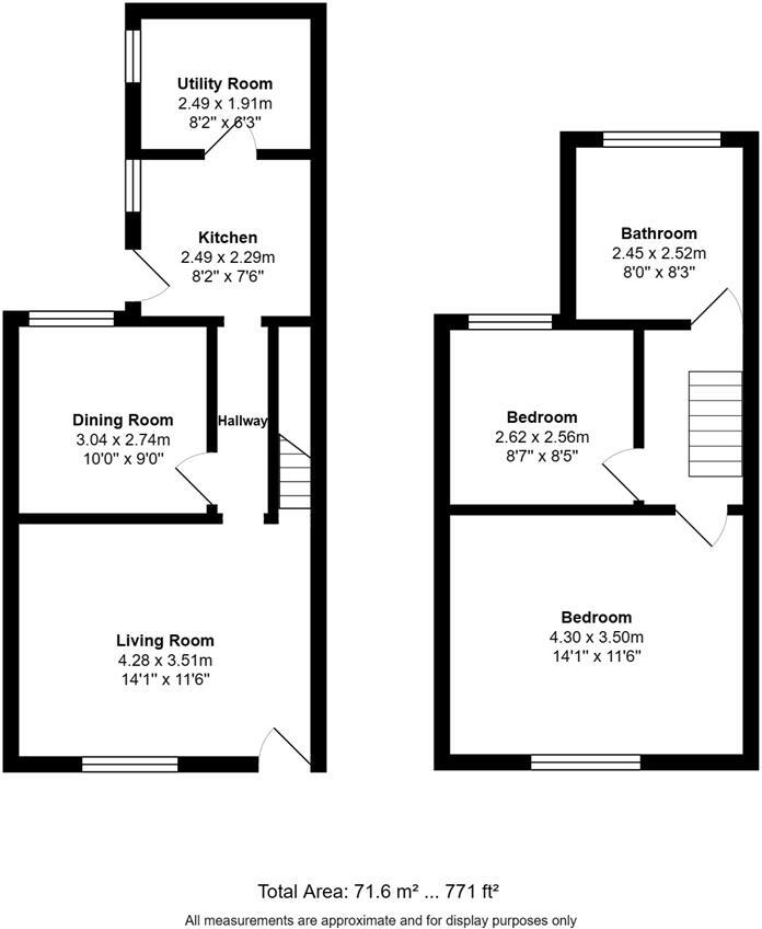
This property is a two-bedroom semi-detached house located on Stamford Road in Birkdale, Southport. The location benefits from being close to local schools, including Birkdale Primary School (rated Good by Ofsted) and Christ The King Catholic High School (Requires Improvement). Transport links are also convenient, with Birkdale train station within a short distance. The property itself appears to be in good condition, with a recently modernised kitchen and bathroom. There is a garden to the rear. While the list price is below the average price for the area, it is important to note that the average price per sqft is significantly higher than that of this property. This may reflect the smaller size of the property and its plot compared to the average. The property seems reasonably priced for its size and location, considering the recent renovations and the proximity to amenities.
Therefore, we give this property 7 / 10. *Disclaimer: This is our option and does constitute a recommendation or financial advice. Do your own research. *
- Price
- 7
- Condition
- 8
- Location
- 9
- Land
- 6
- Bedrooms
- 2
- Bathrooms
- 1
- Sqft (est)
- 203.30
- Lot (est)
- 771.00
The heatmap indicates the level of crime in the area. The color of the heatmap indicates the crime severity and recency.
Metrics Year-on-Year
- Average area value
- 320,000.00 £Decreased by 1.71 %
- Est sale value
- 50,418.40 £Decreased by 7.12 %
- Average area rental value
- 8,975.00 £/moIncreased by 717.40 %
- Est letting value
- 1,219.80 £/mo
- Est rental Yield
- 33.66 %Increased by 731.11 %
- Crime Rate
- 4.00 %Unchanged by 0.00 %
Agent Activity
Flexi-Agent created the listing.
Nearby Schools
| Name | Type | Ofsted | Distance |
|---|---|---|---|
| Birkdale Primary School | Community School | Good | 0.32 KM |
| Christ The King Catholic High School And Sixth Form Centre | Voluntary Aided School | Requires improvement | 0.49 KM |
| St Teresa'S Catholic Infant And Nursery School | Voluntary Aided School | Good | 0.57 KM |
| Our Lady Of Lourdes Catholic Primary School | Voluntary Aided School | Good | 1.04 KM |
| Linaker Primary School | Community School | Requires improvement | 1.05 KM |
Images
Nearby Streets
| Name | Average Price | Average Sqft | Distance |
|---|---|---|---|
| Birch Street | £ 142,500 | 0 | 0.00 KM |
| Elm Road | £ 0 | 0 | 0.00 KM |
| College Close | £ 0 | 0 | 0.00 KM |
| The Walk | £ 195,000 | 0 | 0.00 KM |
| The Walk | £ 0 | 0 | 0.00 KM |
Nearby Transport
| Name | NLC | TLC | Distance |
|---|---|---|---|
| Birkdale | 2352 | BDL | 1.10 KM |
| Southport | 2262 | SOP | 2.02 KM |
| Hillside | 2231 | HIL | 2.19 KM |
| Meols Cop | 2357 | MEC | 3.87 KM |
| Ainsdale | 2350 | ANS | 5.02 KM |
Nearby Listings
| Address | Price | Type | Score | Distance |
|---|---|---|---|---|
| Stamford Road, Birkdale, Southport | £ 160,000 | BUY | Unknown | 0.00 KM |
| Stamford Road, Birkdale, Southport, Merseyside, PR8 4ER | £ 170,000 | BUY | Unknown | 0.02 KM |
| Kew Road, Southport, Merseyside, PR8 4HN | £ 280,000 | BUY | 7 / 10 | 0.06 KM |
| Kew Road,Southport,PR8 4HN | £ 165,000 | BUY | 6 / 10 | 0.10 KM |
| Kew Road, Birkdale, Southport, PR8 | £ 135,000 | BUY | 6 / 10 | 0.11 KM |
Nearby Properties
| Address | Price | Distance |
|---|---|---|
| 7 Stamford Road | £ 114,500 | 0.04 KM |
| 24 Stamford Road | £ 120,000 | 0.04 KM |
| 26 Stamford Road | £ 108,000 | 0.04 KM |
| 30a Stamford Road | £ 85,000 | 0.04 KM |
| 4 Stamford Road | £ 90,000 | 0.04 KM |