Kallars says ..
Delightful one-bedroom flat featuring a private garden, light-filled interiors, and excellent transport links. Ideally located near Brockwell Park, the Lido, and Herne Hill Station for convenient city living.
Property Oracle says ..
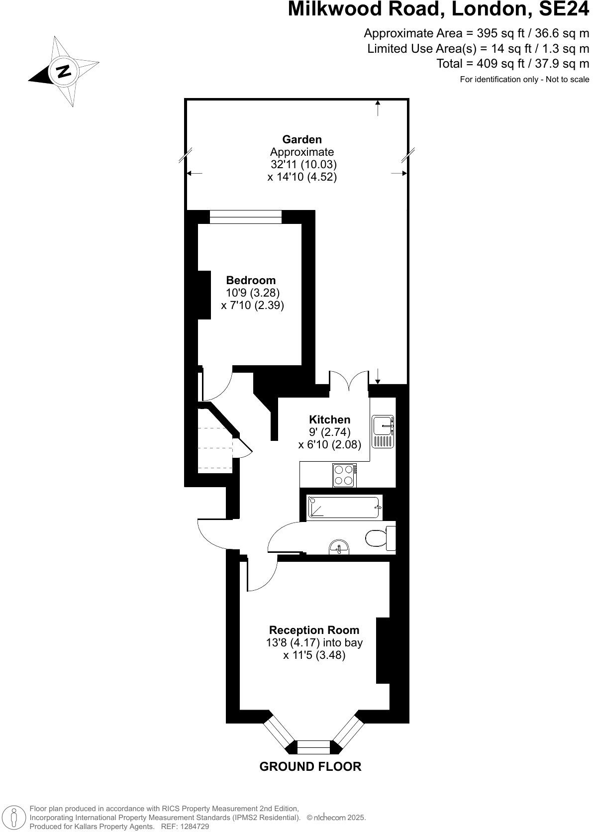
This one bedroom apartment is located on Milkwood Road in the desirable Herne Hill area of London. The property benefits from a private rear garden, a recently renovated kitchen and bathroom, and is close to excellent transport links and highly-rated schools. While the apartment itself is smaller than the average for the area (409 sqft vs 818 sqft), the list price of £375,000 is significantly lower than the average price of £625,177 for properties in the area. Nearby comparable properties range from £294,000 to over £1,000,000, indicating some price variation in the area. The property seems to be in good condition, with a modern kitchen and bathroom. The garden, although small, is a valuable addition. Given the location, condition, and the lower-than-average price, this property presents good value for money, particularly for a first-time buyer or investor.
Therefore, we give this property 7 / 10. *Disclaimer: This is our option and does constitute a recommendation or financial advice. Do your own research. *
- Price
- 8
- Condition
- 8
- Location
- 9
- Land
- 6
- Bedrooms
- 1
- Bathrooms
- 1
- Sqft (est)
- 409.00
The heatmap indicates the level of crime in the area. The color of the heatmap indicates the crime severity and recency.
Metrics Year-on-Year
- Average area value
- 795,417.00 £Increased by 12.21 %
- Est sale value
- 204,091.00 £Decreased by 44.49 %
- Average area rental value
- 2,268.00 £/moDecreased by 0.48 %
- Est letting value
- 409.00 £/moDecreased by 50.00 %
- Est rental Yield
- 3.42 %Decreased by 11.40 %
- Crime Rate
- 1.00 %Unchanged by 0.00 %
Agent Activity
Kallars created the listing.
Nearby Schools
| Name | Type | Ofsted | Distance |
|---|---|---|---|
| Jessop Primary School | Community School | Outstanding | 0.09 KM |
| Jessop Primary School & Children'S Centre | Children's Centre | 0.09 KM | |
| Ark Evelyn Grace Academy | Academy Sponsor Led | Good | 0.28 KM |
| The Michael Tippett School | Community Special School | Good | 0.33 KM |
| Herne Hill School | Other Independent School | 0.62 KM |
Images
Nearby Streets
| Name | Average Price | Average Sqft | Distance |
|---|---|---|---|
| Railton Road | £ 0 | 0 | 0.00 KM |
| Tram Close | £ 0 | 0 | 0.00 KM |
| Half Moon Lane | £ 0 | 0 | 0.00 KM |
| Orphans Yard | £ 649,975 | 0 | 0.00 KM |
| Wickwood Street | £ 0 | 0 | 0.00 KM |
Nearby Transport
| Name | NLC | TLC | Distance |
|---|---|---|---|
| Herne Hill | 5066 | HNH | 0.67 KM |
| Loughborough Junction | 5082 | LGJ | 0.78 KM |
| Brixton | 5081 | BRX | 1.42 KM |
| North Dulwich | 5429 | NDL | 1.65 KM |
| Denmark Hill | 5421 | DMK | 1.72 KM |
Nearby Listings
| Address | Price | Type | Score | Distance |
|---|---|---|---|---|
| Milkwood Road, London, SE24 | £ 375,000 | BUY | 7 / 10 | 0.00 KM |
| Milkwood Road, London, SE24 | £ 500,000 | BUY | 7 / 10 | 0.01 KM |
| Milkwood Road, London, SE24 | £ 500,000 | BUY | 6 / 10 | 0.02 KM |
| Lowden Road, London, SE24 | £ 1,200,000 | BUY | 7 / 10 | 0.04 KM |
| Lowden Road, London, SE24 | £ 700,000 | BUY | 6 / 10 | 0.09 KM |
Nearby Properties
| Address | Price | Distance |
|---|---|---|
| 175 Milkwood Road | £ 875,000 | 0.02 KM |
| 181 Milkwood Road | £ 890,000 | 0.02 KM |
| 133 Milkwood Road | £ 985,000 | 0.02 KM |
| 131 Milkwood Road | £ 294,000 | 0.02 KM |
| 157 Milkwood Road | £ 760,000 | 0.02 KM |