Pearsons says ..
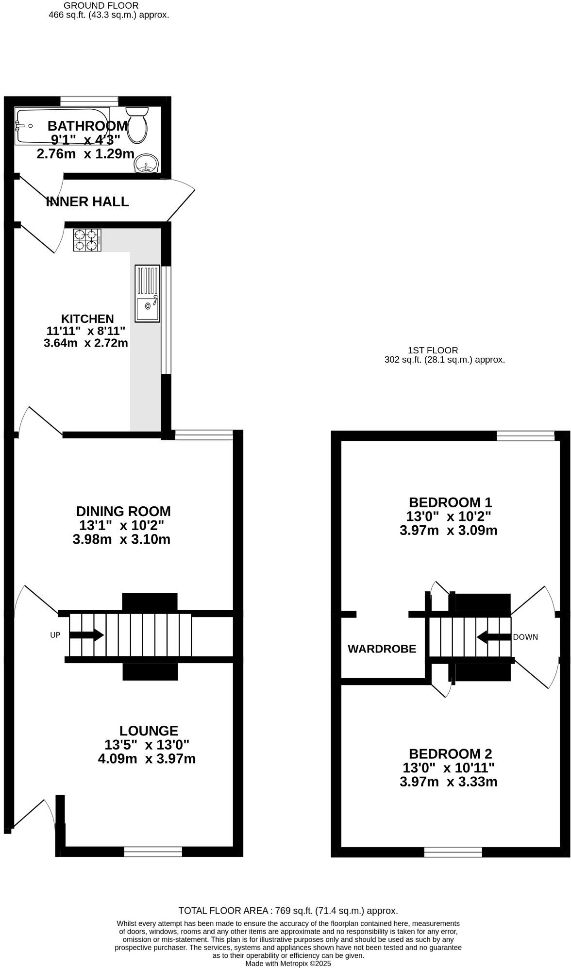
Offered with no forward chain, this traditional two-bedroom terraced home is located in a popular residential area and is well presented throughout. The accommodation comprises; lounge, dining room, kitchen, and bathroom on the ground floor. Upstairs, there are two generously sized double bedroom...
Property Oracle says ..
The property is a 2 bedroom terraced house located on Reginald Road in Southsea, Portsmouth. It has a list price of £240,000, and a plot size of 768.54 sqft. The property is 856.81 sqft.
The property appears to be in reasonable condition. The interior is clean and well-maintained, although the decor is somewhat dated and could benefit from modernisation. There is no evidence of significant repairs needed. The garden is a good size for a terraced property and is paved, requiring minimal maintenance.
The location is good, with several primary schools within a short distance. The nearest railway station is Fratton, approximately 2km away. While there is no information about the immediate vicinity in terms of shops or other amenities, the area appears residential and relatively quiet.
Considering the average price per sqft in the area is £350, and this property is listed at approximately £280 per sqft, the list price seems relatively reasonable, especially considering the condition and the presence of a garden. However, several nearby comparable properties on Reginald Road sold for significantly less, suggesting that the list price may be slightly optimistic. More information on the specific features and condition of those properties would be needed to make a more definitive conclusion.
Therefore, we give this property 6 / 10. *Disclaimer: This is our option and does constitute a recommendation or financial advice. Do your own research. *
- Price
- 6
- Condition
- 7
- Location
- 7
- Land
- 7
- Bedrooms
- 2
- Bathrooms
- 1
- Sqft (est)
- 856.81
- Lot (est)
- 768.54
The heatmap indicates the level of crime in the area. The color of the heatmap indicates the crime severity and recency.
Metrics Year-on-Year
- Average area value
- 328,606.00 £Increased by 5.04 %
- Est sale value
- 294,742.64 £Decreased by 14.85 %
- Average area rental value
- 1,137.00 £/moDecreased by 6.34 %
- Est letting value
- 856.81 £/moUnchanged by 0.00 %
- Est rental Yield
- 4.15 %Decreased by 10.94 %
- Crime Rate
- 7.00 %Unchanged by 0.00 %
Agent Activity
Pearsons created the listing.
Nearby Schools
| Name | Type | Ofsted | Distance |
|---|---|---|---|
| Milton Park Primary School | Academy Converter | 0.47 KM | |
| Cumberland Children'S Centre | Children's Centre Linked Site | 0.47 KM | |
| Cumberland Infant School | Community School | Good | 0.55 KM |
| Milton, Baffin'S And Cumberland Children'S Centre | Children's Centre | 0.56 KM | |
| Wimborne Primary School | Community School | 0.62 KM |
Images
Nearby Streets
| Name | Average Price | Average Sqft | Distance |
|---|---|---|---|
| Bransbury Road | £ 0 | 0 | 0.00 KM |
| Morley Road | £ 0 | 0 | 0.00 KM |
| Clovelly Road | £ 0 | 0 | 0.00 KM |
| Church View | £ 0 | 0 | 0.00 KM |
| Crofton Road | £ 375,000 | 0 | 0.00 KM |
Nearby Transport
| Name | NLC | TLC | Distance |
|---|---|---|---|
| Fratton | 5509 | FTN | 2.02 KM |
| Portsmouth And Southsea | 5537 | PMS | 3.85 KM |
| Hilsea | 5539 | HLS | 4.47 KM |
| Portsmouth Harbour | 5540 | PMH | 5.63 KM |
| Cosham | 5896 | CSA | 6.08 KM |
Nearby Listings
| Address | Price | Type | Score | Distance |
|---|---|---|---|---|
| Reginald Road, Southsea | £ 240,000 | BUY | 6 / 10 | 0.00 KM |
| Landguard Road, Southsea | £ 260,000 | BUY | Unknown | 0.03 KM |
| Reginald Road, Portsmouth, Hampshire, PO4 | £ 270,000 | BUY | 7 / 10 | 0.04 KM |
| Landguard Road, SOUTHSEA, Hampshire, PO4 | £ 260,000 | BUY | 7 / 10 | 0.04 KM |
| Reginald Road, Southsea, PO4 | £ 290,000 | BUY | 7 / 10 | 0.05 KM |
Nearby Properties
| Address | Price | Distance |
|---|---|---|
| 46 Reginald Road | £ 150,000 | 0.01 KM |
| 58 Reginald Road | £ 147,500 | 0.01 KM |
| 54 Reginald Road | £ 161,000 | 0.01 KM |
| 36 Reginald Road | £ 155,000 | 0.01 KM |
| 14 Reginald Road | £ 215,500 | 0.01 KM |