Edward Road , Winterton-On-Sea
By Bycroft Estate Agents
£ 550,000
Reviews
3 out of 5 stars
Bycroft Estate Agents says ..
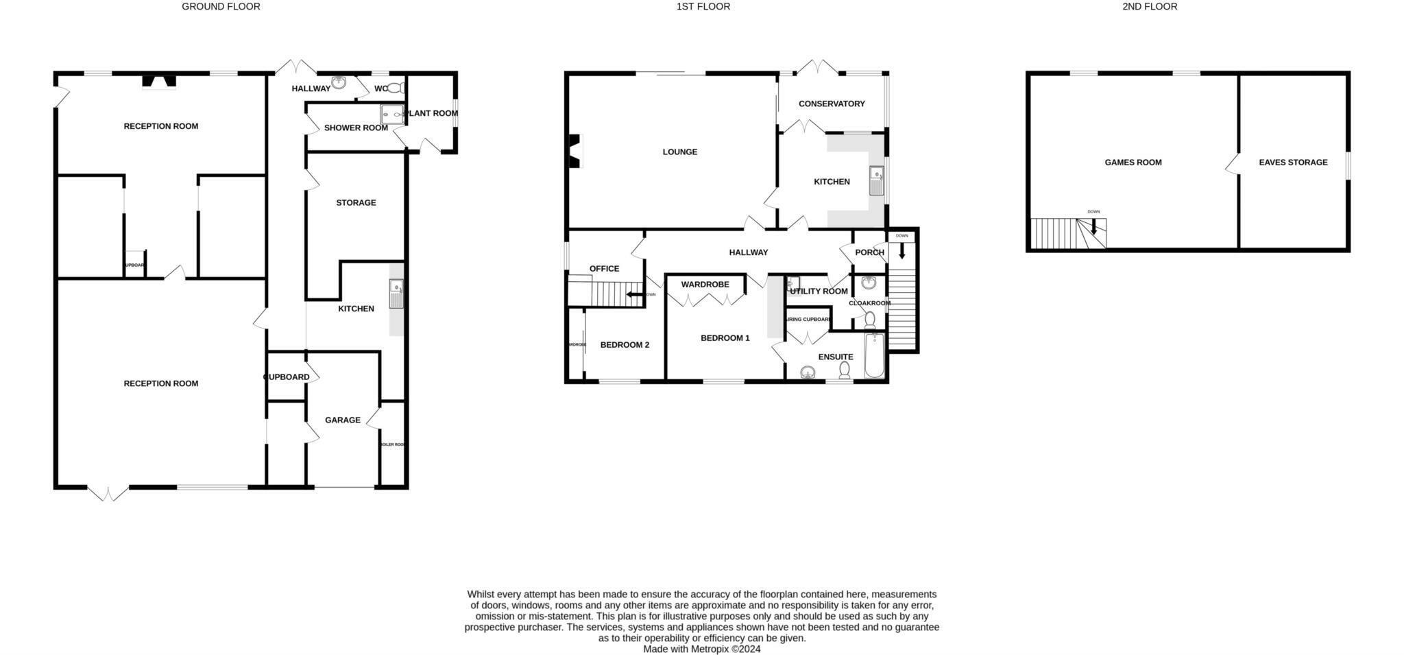
**UNIQUE COASTAL AND COUNTRYWIDE VIEWS** Bycroft Estate Agents are delighted to present this individual three storey property situated in a delightful coastal position within the sought after village of Winterton on Sea. Offering flexible accommodation over three floors consisting of a two bedro...
Property Oracle says ..
This detached property in Winterton-on-Sea presents a unique opportunity. While the house requires modernisation, it benefits from a desirable coastal location and a generous plot with a garden and pool. The interior features three bedrooms and one bathroom. The property is situated within proximity to local schools and amenities. The price reflects the location and land size, but the condition of the property should be taken into consideration.
Therefore, we give this property 6 / 10. *Disclaimer: This is our option and does constitute a recommendation or financial advice. Do your own research. *
- Price
- 6
- Condition
- 6
- Location
- 7
- Land
- 8
- Bedrooms
- 3
- Bathrooms
- 1
- Sqft (est)
- 2,336.00
The heatmap indicates the level of crime in the area. The color of the heatmap indicates the crime severity and recency.
Metrics Year-on-Year
- Average area value
- 649,352.00 £Decreased by 3.16 %
- Est sale value
- 978,784.00 £Decreased by 13.43 %
- Average area rental value
- 1,515.00 £/moDecreased by 43.89 %
- Est letting value
- 0.00 £/moDecreased by 100.00 %
- Est rental Yield
- 2.80 %Decreased by 42.03 %
- Crime Rate
- 0.00 %
Agent Activity
Bycroft Estate Agents created the listing.
Nearby Schools
| Name | Type | Ofsted | Distance |
|---|---|---|---|
| Winterton Primary School And Nursery | Academy Sponsor Led | 1.29 KM | |
| Hemsby Primary School | Community School | Good | 1.46 KM |
| Ormesby Village Junior School | Community School | Good | 3.42 KM |
| Ormesby Village Infant School | Community School | Good | 3.71 KM |
| John Grant School, Caister-On-Sea | Foundation Special School | Outstanding | 5.99 KM |
Images
Nearby Streets
| Name | Average Price | Average Sqft | Distance |
|---|---|---|---|
| Hall Close | £ 260,000 | 0 | 0.00 KM |
| The Paddock | £ 0 | 0 | 0.00 KM |
| The Glebe | £ 375,000 | 0 | 0.00 KM |
| The Avenue | £ 280,000 | 0 | 0.00 KM |
| George Loades Court | £ 34,950 | 0 | 0.00 KM |
Nearby Listings
| Address | Price | Type | Score | Distance |
|---|---|---|---|---|
| Winterton Valley, Winterton-on-sea | £ 43,500 | BUY | 6 / 10 | 0.00 KM |
| Edward Road , Winterton-On-Sea | £ 550,000 | BUY | 6 / 10 | 0.00 KM |
| Winterton Valley, Edward Road, Winterton-On-Sea, Great Yarmouth | £ 59,500 | BUY | 6 / 10 | 0.11 KM |
| High Barn Farm, Winterton-on-Sea, Great Yarmouth, Norfolk, NR29 | £ 600,000 | BUY | Unknown | 0.15 KM |
| Edward Road, Winterton-on-Sea | £ 62,950 | BUY | 7 / 10 | 0.22 KM |
Nearby Properties
| Address | Price | Distance |
|---|---|---|
| Fallowfield | £ 390,000 | 0.00 KM |
| 2 High Barn Farm | £ 255,000 | 0.16 KM |
| Spindrift | £ 470,000 | 0.43 KM |
| Shekinah | £ 425,000 | 0.43 KM |
| Black Thorn Lodge | £ 259,950 | 0.43 KM |