ST
Beatrice Road, London, SE1
By Stirling Ackroyd
£ 625,000
Reviews
3 out of 5 stars
Stirling Ackroyd says ..
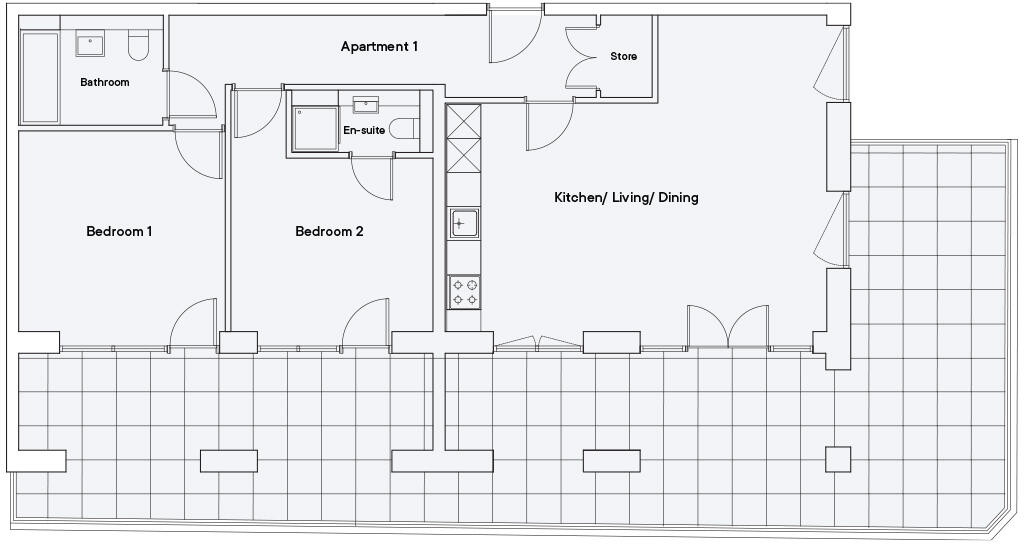
A fantastic two double bedroom two-bathroom garden apartment in this new development close to Southwark Park and a short walk from Bermondsey Jubilee Line station tucked away in a quiet residential area conveniently placed for all the amenities on Southwark Park Road. The property is ...
Property Oracle says ..
Therefore, we give this property 6 / 10. *Disclaimer: This is our option and does constitute a recommendation or financial advice. Do your own research. *
- Price
- 6
- Condition
- 9
- Location
- 7
- Land
- 3
- Bedrooms
- 2
- Bathrooms
- 2
- Sqft (est)
- 715.00
The heatmap indicates the level of crime in the area. The color of the heatmap indicates the crime severity and recency.
Metrics Year-on-Year
- Average area value
- 460,000.00 £Decreased by 10.12 %
- Est sale value
- 542,685.00 £Increased by 4.12 %
- Average area rental value
- 2,317.00 £/moIncreased by 6.73 %
- Est letting value
- 2,145.00 £/moUnchanged by 0.00 %
- Est rental Yield
- 6.04 %Increased by 18.66 %
- Crime Rate
- 7.00 %Unchanged by 0.00 %
from 511,784.00 £
from 521,235.00 £
from 2,171.00 £/mo
from 2,145.00 £/mo
from 5.09 %
from 7.00 %
Agent Activity
Stirling Ackroyd created the listing.
Nearby Schools
| Name | Type | Ofsted | Distance |
|---|---|---|---|
| South Bermondsey Children And Parents Centre | Children's Centre | 0.27 KM | |
| City Of London Academy (Southwark) | Academy Sponsor Led | Good | 0.28 KM |
| Spa School, Bermondsey | Academy Special Converter | 0.34 KM | |
| Galleywall Primary School | Free Schools | Outstanding | 0.59 KM |
| Compass School Southwark | Free Schools | Good | 0.61 KM |
Images
Nearby Streets
| Name | Average Price | Average Sqft | Distance |
|---|---|---|---|
| Beatrice Road | £ 800,000 | 0 | 0.00 KM |
| Anchor Street | £ 0 | 0 | 0.00 KM |
| Catlin Street | £ 288,333 | 0 | 0.00 KM |
| Stork's Road | £ 0 | 0 | 0.00 KM |
| Webster Road | £ 0 | 0 | 0.00 KM |
Nearby Transport
| Name | NLC | TLC | Distance |
|---|---|---|---|
| South Bermondsey | 5425 | SBM | 1.15 KM |
| Rotherhithe | 1039 | ROE | 1.75 KM |
| Wapping | 1085 | WPE | 1.75 KM |
| Canada Water | 1659 | ZCW | 1.81 KM |
| New Cross | 5150 | NWX | 1.81 KM |
Nearby Listings
| Address | Price | Type | Score | Distance |
|---|---|---|---|---|
| Beatrice Road, London, SE1 | £ 625,000 | BUY | 6 / 10 | 0.00 KM |
| Beatrice Road, London, SE1 | £ 750,000 | BUY | 6 / 10 | 0.00 KM |
| Beatrice Road, London, SE1 | £ 600,000 | BUY | 6 / 10 | 0.00 KM |
| Beatrice Road, London, SE1 | £ 750,000 | BUY | 6 / 10 | 0.00 KM |
| Beatrice Road, London, SE1 | £ 645,000 | BUY | 7 / 10 | 0.00 KM |
Nearby Properties
| Address | Price | Distance |
|---|---|---|
| 189 St James's Road | £ 178,000 | 0.07 KM |
| 173 St James's Road | £ 307,000 | 0.07 KM |
| 179 St James's Road | £ 755,000 | 0.07 KM |
| 40 Camilla Road | £ 359,000 | 0.12 KM |
| 6 Camilla Road | £ 218,500 | 0.12 KM |