Modern Move says ..
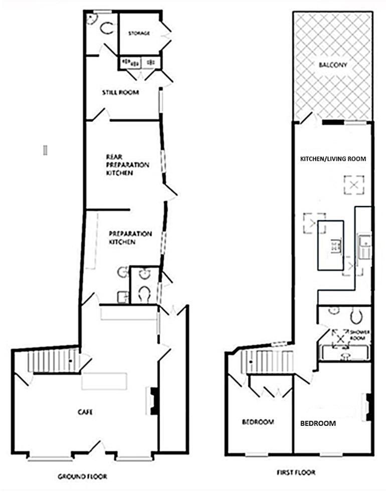
Exciting commercial opportunity - Cafe/Shop premises - 2 Bedroom apartment above - Good sized landscaped garden - Modern open plan living space - New boiler in 2024 - New roof circa 2022 - Beautifully presented - Fully equipped commercial kitchen - Can be purchased as a going concern - EPC D
Property Oracle says ..
Therefore, we give this property 7 / 10. *Disclaimer: This is our option and does constitute a recommendation or financial advice. Do your own research. *
- Price
- 7
- Condition
- 8
- Location
- 7
- Land
- 7
- Bedrooms
- 2
- Bathrooms
- 1
- Sqft (est)
- 1,314.00
The heatmap indicates the level of crime in the area. The color of the heatmap indicates the crime severity and recency.
Metrics Year-on-Year
- Average area value
- 347,013.00 £Decreased by 8.81 %
- Est sale value
- 370,548.00 £Increased by 12.35 %
- Average area rental value
- 940.00 £/moIncreased by 0.53 %
- Est letting value
- 0.00 £/mo
- Est rental Yield
- 3.25 %Increased by 10.17 %
- Crime Rate
- 81.00 %Unchanged by 0.00 %
from 380,545.00 £
from 329,814.00 £
from 935.00 £/mo
from 0.00 £/mo
from 2.95 %
from 81.00 %
Agent Activity
Modern Move created the listing.
Nearby Schools
| Name | Type | Ofsted | Distance |
|---|---|---|---|
| Abc Ashburton And Buckfastleigh Children'S Centre | Children's Centre | 0.07 KM | |
| Buckfastleigh Primary School | Academy Converter | Requires improvement | 0.27 KM |
| St Mary'S Catholic Primary School, Buckfast | Academy Converter | Good | 1.19 KM |
| Ashburton Primary School | Academy Converter | Good | 4.68 KM |
| Sands School | Other Independent School | 4.73 KM |
Images
Nearby Streets
| Name | Average Price | Average Sqft | Distance |
|---|---|---|---|
| Stormsdown Cottages | £ 0 | 0 | 0.00 KM |
| New Road | £ 0 | 0 | 0.00 KM |
| Stroud Road | £ 0 | 0 | 0.00 KM |
| Pioneer Terrace | £ 350,000 | 0 | 0.00 KM |
| Oaklands Close | £ 0 | 0 | 0.00 KM |
Nearby Listings
| Address | Price | Type | Score | Distance |
|---|---|---|---|---|
| Fore Street, Buckfastleigh | £ 390,000 | BUY | 7 / 10 | 0.00 KM |
| Fore Street, Buckfastleigh | £ 195,000 | BUY | 6 / 10 | 0.02 KM |
| Fore Street, Buckfastleigh TQ11 0AA | £ 395,000 | BUY | 5 / 10 | 0.04 KM |
| Plymouth Road, Buckfastleigh | £ 229,950 | BUY | 6 / 10 | 0.04 KM |
| Plymouth Road, Buckfastleigh | £ 232,500 | BUY | 5 / 10 | 0.05 KM |
Nearby Properties
| Address | Price | Distance |
|---|---|---|
| 52 Fore Street | £ 190,000 | 0.03 KM |
| 31 Fore Street | £ 311,000 | 0.05 KM |
| 35 Fore Street | £ 210,000 | 0.05 KM |
| 49 Fore Street | £ 121,500 | 0.05 KM |
| 50a Fore Street | £ 145,000 | 0.05 KM |