Chaucer Close, London, N11
By T Ash International Realty
£ 650,000
Reviews
3 out of 5 stars
T Ash International Realty says ..
REF: SEAYS - Discover this exquisite four-bedroom terraced house on Chaucer Close
Property Oracle says ..
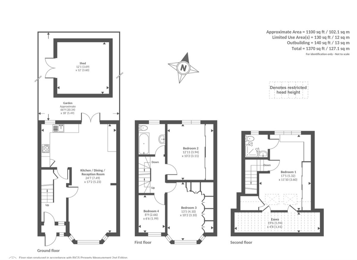
This property is a 4-bedroom, 2-bathroom terraced house located in Southgate Green, Enfield, London. The location benefits from being close to several schools, including Focus 1St Academy and Garfield Primary School, both rated as “Good” by Ofsted, and also has good transport links with several train stations within a reasonable distance. The property itself appears to be in good condition, with modern fixtures and fittings throughout. Images show a recently renovated kitchen and bathrooms, and well-maintained bedrooms. There is also a garden, adding to the property’s appeal. The list price is £650,000, while the average price for similar properties in the area is £716,959. Considering the property’s condition, location, and the inclusion of a garden, the list price appears to be reasonable, potentially even slightly below the average for similar properties in the area. However, without precise square footage data for comparable properties, a definitive statement on value cannot be made. The property is likely to attract families due to the nearby schools and transport links.
Therefore, we give this property 7 / 10. *Disclaimer: This is our option and does constitute a recommendation or financial advice. Do your own research. *
- Price
- 7
- Condition
- 9
- Location
- 8
- Land
- 7
- Bedrooms
- 4
- Bathrooms
- 2
- Sqft (est)
- 2,351.09
- Lot (est)
- 1,370.00
The heatmap indicates the level of crime in the area. The color of the heatmap indicates the crime severity and recency.
Metrics Year-on-Year
- Average area value
- 793,750.00 £Decreased by 0.58 %
- Est sale value
- 597,176.86 £Decreased by 55.44 %
- Average area rental value
- 1,954.00 £/moIncreased by 5.97 %
- Est letting value
- 0.00 £/moDecreased by 100.00 %
- Est rental Yield
- 2.95 %Increased by 6.50 %
- Crime Rate
- 6.00 %Unchanged by 0.00 %
Agent Activity
T Ash International Realty created the listing.
Nearby Schools
| Name | Type | Ofsted | Distance |
|---|---|---|---|
| Focus 1St Academy | Other Independent School | Good | 0.42 KM |
| Bowes Children'S Centre | Children's Centre Linked Site | 0.55 KM | |
| Bowes Primary School | Academy Converter | 0.55 KM | |
| Broomfield School | Foundation School | Good | 0.60 KM |
| Garfield Primary School | Community School | Good | 0.63 KM |
Images
Nearby Streets
| Name | Average Price | Average Sqft | Distance |
|---|---|---|---|
| Chaucer Close | £ 678,333 | 0 | 0.00 KM |
| Evesham Road | £ 784,998 | 0 | 0.00 KM |
| Blake Road | £ 1,150,000 | 0 | 0.00 KM |
| Morton Crescent | £ 0 | 0 | 0.00 KM |
| Pottery Gate | £ 474,000 | 0 | 0.00 KM |
Nearby Transport
| Name | NLC | TLC | Distance |
|---|---|---|---|
| Bowes Park | 6027 | BOP | 1.37 KM |
| New Southgate | 6019 | NSG | 1.38 KM |
| Alexandra Palace | 6025 | AAP | 2.16 KM |
| Palmers Green | 6021 | PAL | 2.27 KM |
| Hornsey | 6015 | HRN | 3.72 KM |
Nearby Listings
| Address | Price | Type | Score | Distance |
|---|---|---|---|---|
| Chaucer Close, London, N11 | £ 650,000 | BUY | 7 / 10 | 0.00 KM |
| Chaucer Close, London, N11 | £ 570,000 | BUY | Unknown | 0.04 KM |
| Milton Grove, London, N11 | £ 590,000 | BUY | 5 / 10 | 0.07 KM |
| Telford Road, London, N11 | £ 135,000 | BUY | Unknown | 0.10 KM |
| Bexhill Road, London, N11 | £ 600,000 | BUY | Unknown | 0.11 KM |
Nearby Properties
| Address | Price | Distance |
|---|---|---|
| 4 Chaucer Close | £ 155,000 | 0.04 KM |
| 20 Chaucer Close | £ 495,000 | 0.04 KM |
| 6 Chaucer Close | £ 235,000 | 0.04 KM |
| 22 Chaucer Close | £ 245,000 | 0.04 KM |
| 14 Chaucer Close | £ 285,000 | 0.04 KM |