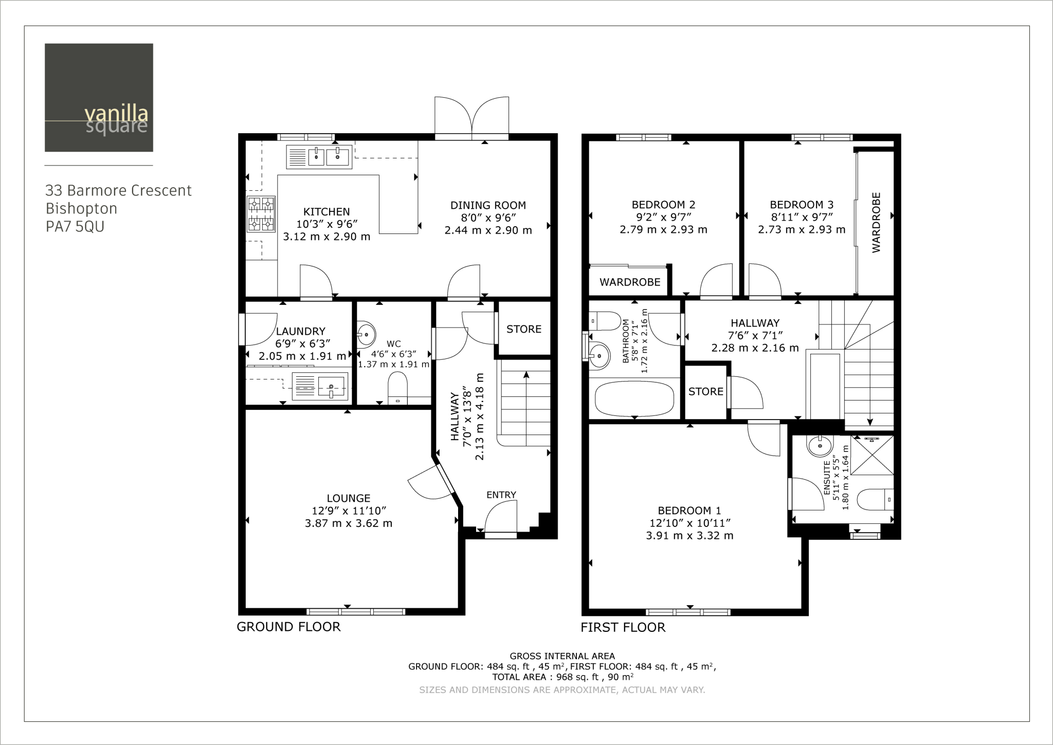
Barmore Crescent, Bishopton
VA

Barmore Crescent, Bishopton

By Vanilla Square

£ 229,000

Reviews

3 out of 5 stars

Vanilla Square says ..

A beautifully presented 3-bedroom semi-detached family home.

Property Oracle says ..

This is a modern semi-detached property located in Bishopton. It features 3 bedrooms and 2 bathrooms, with a total square footage of 929.03 sqft. The property includes a garden with a shed and patio area. The interior appears to be well-maintained and in good condition. The location offers access to transportation, with a train station nearby. The asking price of £229,000 seems reasonable compared to the average property price in the area.

Therefore, we give this property 7 / 10. *Disclaimer: This is our option and does constitute a recommendation or financial advice. Do your own research. *

Price
8
Condition
8
Location
7
Land
7
Bedrooms
3
Bathrooms
2
Sqft (est)
929.03

The heatmap indicates the level of crime in the area. The color of the heatmap indicates the crime severity and recency.

Metrics Year-on-Year

Average area value
365,379.00 £
Increased by 10.98 %
from 329,216.00 £
Est sale value
401,340.96 £
Increased by 55.40 %
from 258,270.34 £
Average area rental value
950.00 £/mo
Decreased by 42.42 %
from 1,650.00 £/mo
Est letting value
929.03 £/mo
Unchanged by 0.00 %
from 929.03 £/mo
Est rental Yield
3.12 %
Decreased by 48.09 %
from 6.01 %
Crime Rate
0.00 %
from 0.00 %

Agent Activity

  • Vanilla Square created the listing.

Images

27-web-or-mls-33 ... 25-web-or-mls-33 ... 11-web-or-mls-33 ... 30-web-or-mls-33 ... 53-web-or-mls-33 ... 13-web-or-mls-33 ... 18-web-or-mls-33 ... 21-web-or-mls-33 ... 20-web-or-mls-33 ... 10-web-or-mls-33 ... 43-web-or-mls-33 ... 64-web-or-mls-33 ... 31-web-or-mls-33 ... 32-web-or-mls-33 ... 40-web-or-mls-33 ... 47-web-or-mls-33 ... 63-web-or-mls-33 ... 58-web-or-mls-33 ... 5-web-or-mls-33 B... 55-web-or-mls-33 ... 33-web-or-mls-33 ... 38-web-or-mls-33 ... 39-web-or-mls-33 ...

Nearby Streets

NameAverage PriceAverage SqftDistance
Northbrae View £ 240,00000.00 KM
Crosshill Avenue £ 270,00000.00 KM
Whitemoss Way £ 000.00 KM
Thurso Crescent £ 000.00 KM
Barmore Drive £ 277,49800.00 KM

Nearby Transport

NameNLCTLCDistance
Bishopton (Renfrewshire)9620BPT1.47 KM
Bowling9968BWG3.67 KM
Dumbarton East9868DBE6.14 KM
Kilpatrick9960KPT7.02 KM
Dumbarton Central9866DBC7.53 KM

Nearby Listings

AddressPriceTypeScoreDistance
Barmore Crescent, Bishopton £ 229,000BUY7 / 100.00 KM
Northbrae Drive, Bishopton £ 235,000BUY7 / 100.13 KM
Crosshill Road, Bishopton, PA7 £ 415,000BUY7 / 100.14 KM
Northbrae Drive, Bishopton, PA7 £ 330,000BUY7 / 100.14 KM
Barmore Drive, Bishopton £ 290,000BUY7 / 100.14 KM