Kennedy & Foster says ..
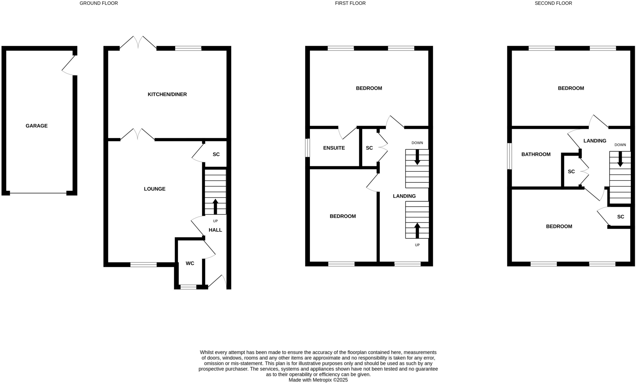
A well presented semi detached town house in the sought after village of Henlow. Offering well proportioned accommodation over three floors, the property benefits from a cloakroom, refitted 15ft kitchen/dining room, four double bedrooms, en suite, garage and driveway. Contact Kennedy & Foster...
Property Oracle says ..
Therefore, we give this property 7 / 10. *Disclaimer: This is our option and does constitute a recommendation or financial advice. Do your own research. *
- Price
- 7
- Condition
- 8
- Location
- 7
- Land
- 6
- Bedrooms
- 4
- Bathrooms
- 2
The heatmap indicates the level of crime in the area. The color of the heatmap indicates the crime severity and recency.
Metrics Year-on-Year
- Average area value
- 428,654.00 £Increased by 2.39 %
- Average area rental value
- 1,464.00 £/moIncreased by 8.77 %
- Est rental Yield
- 4.10 %Increased by 6.22 %
- Crime Rate
- 7.00 %Unchanged by 0.00 %
from 418,657.00 £
from 1,346.00 £/mo
from 3.86 %
from 7.00 %
Agent Activity
Kennedy & Foster created the listing.
Nearby Schools
| Name | Type | Ofsted | Distance |
|---|---|---|---|
| Raynsford Church Of England Academy | Academy Converter | Good | 0.69 KM |
| Henlow Church Of England Academy | Academy Converter | Good | 0.87 KM |
| Clifton All Saints Academy | Academy Converter | 1.51 KM | |
| Derwent Lower School | Foundation School | Good | 3.01 KM |
| Langford Village Academy | Academy Sponsor Led | Good | 3.23 KM |
Images
Nearby Streets
| Name | Average Price | Average Sqft | Distance |
|---|---|---|---|
| Henlow Road | £ 230,000 | 0 | 0.00 KM |
| Clifton Road | £ 0 | 0 | 0.00 KM |
| Westfield Road | £ 0 | 0 | 0.00 KM |
| B659 | £ 0 | 0 | 0.00 KM |
| Millenium Meadow Bridge | £ 0 | 0 | 0.00 KM |
Nearby Transport
| Name | NLC | TLC | Distance |
|---|---|---|---|
| Arlesey | 6171 | ARL | 2.71 KM |
| Biggleswade | 6170 | BIW | 6.12 KM |
| Letchworth Garden City | 6089 | LET | 9.09 KM |
| Hitchin | 6086 | HIT | 9.69 KM |
| Sandy | 6172 | SDY | 9.82 KM |
Nearby Listings
| Address | Price | Type | Score | Distance |
|---|---|---|---|---|
| Harrier Mill, Henlow | £ 475,000 | BUY | 7 / 10 | 0.00 KM |
| Harrier Mill, Henlow | £ 400,000 | BUY | 7 / 10 | 0.02 KM |
| Harrier Mill, Henlow, SG16 | £ 730,000 | BUY | 7 / 10 | 0.02 KM |
| Harrier Mill, Henlow, SG16 | £ 400,000 | BUY | 8 / 10 | 0.02 KM |
| Harrier Mill, Henlow, SG16 | £ 399,995 | BUY | 6 / 10 | 0.02 KM |
Nearby Properties
| Address | Price | Distance |
|---|---|---|
| 10 Harrier Mill | £ 295,000 | 0.00 KM |
| 35 Harrier Mill | £ 350,000 | 0.00 KM |
| 18 Harrier Mill | £ 214,000 | 0.00 KM |
| 15 Harrier Mill | £ 310,000 | 0.00 KM |
| 3 Harrier Mill | £ 470,000 | 0.00 KM |