Christchurch Place, Eastbourne, East Sussex, BN23
By Angela Marden Estate Agents
£ 300,000
Reviews
3 out of 5 stars
Angela Marden Estate Agents says ..
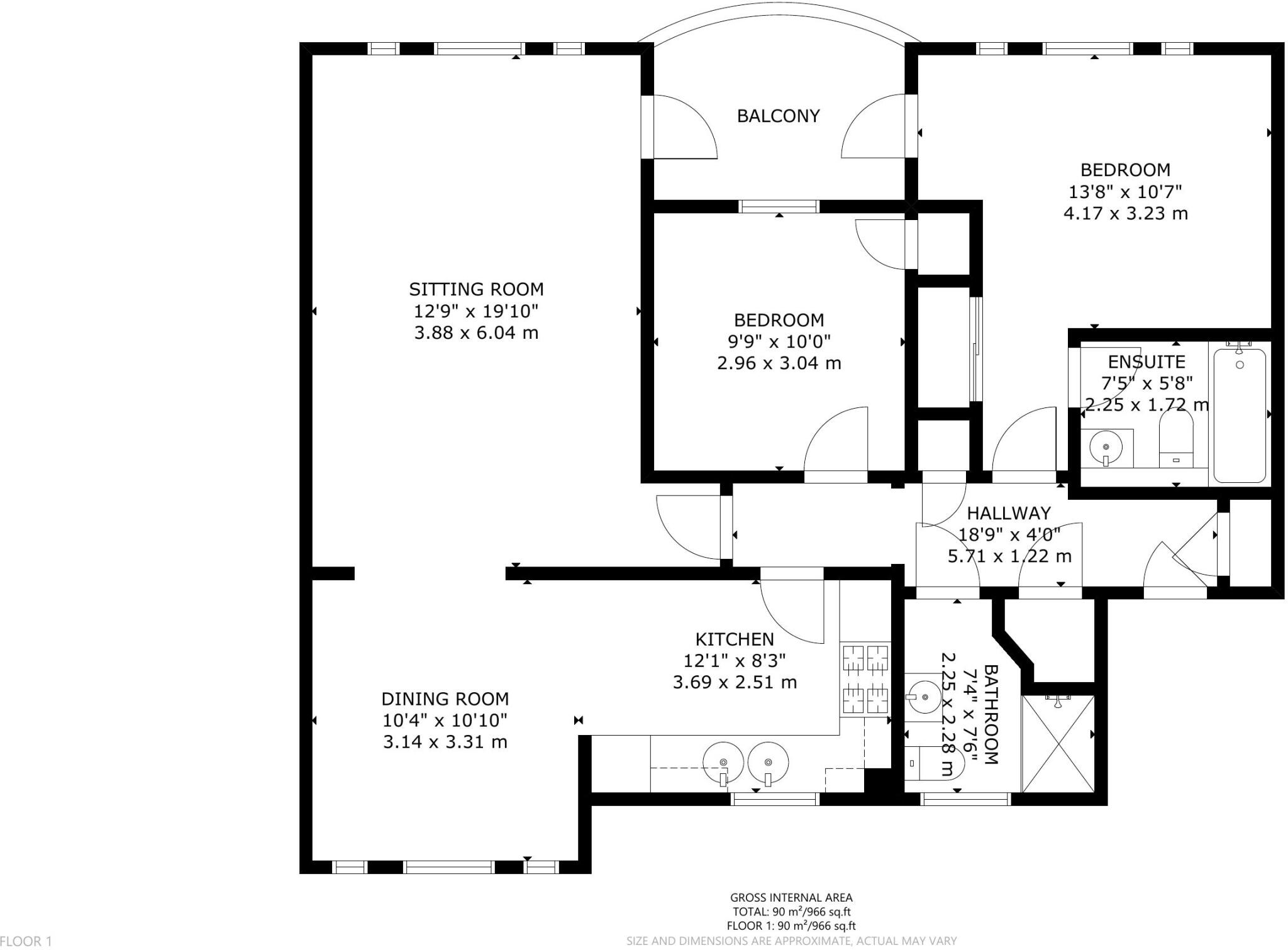
This fantastic, first floor, two double bedroom, Harbour-side apartment offers good size rooms, an en suite to the master bedroom, a separate dining area as well as a garage, to name just some of its brilliant benefits! The bright and airy accommodation comprises of communal entrance h...
Property Oracle says ..
This property is a 2 bedroom, 2 bathroom apartment located in Sovereign Harbour, Eastbourne. The apartment is modern and well presented, and benefits from communal gardens and a secure gated entrance. The location is excellent, with easy access to the town centre and local amenities. Transport links are also good, with several train stations within a reasonable distance. The price seems reasonable compared to similar properties in the area. However, the lack of plot size is a factor to consider.
Therefore, we give this property 7 / 10. *Disclaimer: This is our option and does constitute a recommendation or financial advice. Do your own research. *
- Price
- 8
- Condition
- 9
- Location
- 9
- Land
- 3
- Bedrooms
- 2
- Bathrooms
- 2
- Sqft (est)
- 966.00
The heatmap indicates the level of crime in the area. The color of the heatmap indicates the crime severity and recency.
Metrics Year-on-Year
- Average area value
- 354,423.00 £Increased by 4.54 %
- Est sale value
- 481,068.00 £Increased by 55.14 %
- Average area rental value
- 1,358.00 £/moDecreased by 3.21 %
- Est letting value
- 966.00 £/moUnchanged by 0.00 %
- Est rental Yield
- 4.60 %Decreased by 7.44 %
- Crime Rate
- 2.00 %Unchanged by 0.00 %
Agent Activity
Angela Marden Estate Agents marked this listing as sold.
Angela Marden Estate Agents created the listing.
Nearby Schools
| Name | Type | Ofsted | Distance |
|---|---|---|---|
| The Haven Voluntary Aided Cofe/Methodist Primary School | Voluntary Aided School | Good | 1.50 KM |
| St Catherine'S College | Academy Converter | Good | 1.51 KM |
| Langney Primary Academy | Academy Converter | 1.80 KM | |
| Pevensey And Westham Cofe Primary School | Voluntary Controlled School | Good | 2.22 KM |
| Tollgate Community Junior School | Community School | Good | 2.64 KM |
Images
Nearby Streets
| Name | Average Price | Average Sqft | Distance |
|---|---|---|---|
| Silver Strand | £ 0 | 0 | 0.00 KM |
| Saint Lawrence Place | £ 350,000 | 0 | 0.00 KM |
| Saint Lawrence Way | £ 0 | 0 | 0.00 KM |
| Saint Lawrence Mews | £ 0 | 0 | 0.00 KM |
| The Waterfront | £ 0 | 0 | 0.00 KM |
Nearby Transport
| Name | NLC | TLC | Distance |
|---|---|---|---|
| Pevensey And Westham | 5461 | PEV | 2.16 KM |
| Pevensey Bay | 5462 | PEB | 2.61 KM |
| Hampden Park (Sussex) | 5450 | HMD | 5.69 KM |
| Eastbourne | 5448 | EBN | 6.30 KM |
| Normans Bay | 5460 | NSB | 7.23 KM |
Nearby Listings
| Address | Price | Type | Score | Distance |
|---|---|---|---|---|
| Christchurch Place, Eastbourne | £ 390,000 | BUY | 7 / 10 | 0.00 KM |
| Christchurch Place, Eastbourne | £ 350,000 | BUY | 7 / 10 | 0.00 KM |
| Christchurch Place, Eastbourne | £ 200,000 | BUY | 5 / 10 | 0.00 KM |
| Christchurch Place, Eastbourne | £ 315,000 | BUY | 7 / 10 | 0.00 KM |
| Christchurch Place, Eastbourne, East Sussex, BN23 | £ 300,000 | BUY | 7 / 10 | 0.00 KM |
Nearby Properties
| Address | Price | Distance |
|---|---|---|
| 39 Christchurch Place | £ 270,000 | 0.01 KM |
| 38 Christchurch Place | £ 265,000 | 0.01 KM |
| 43 Christchurch Place | £ 377,500 | 0.01 KM |
| 7 Christchurch Place | £ 235,000 | 0.01 KM |
| 34 Christchurch Place | £ 315,000 | 0.01 KM |