Arnold & Phillips says ..
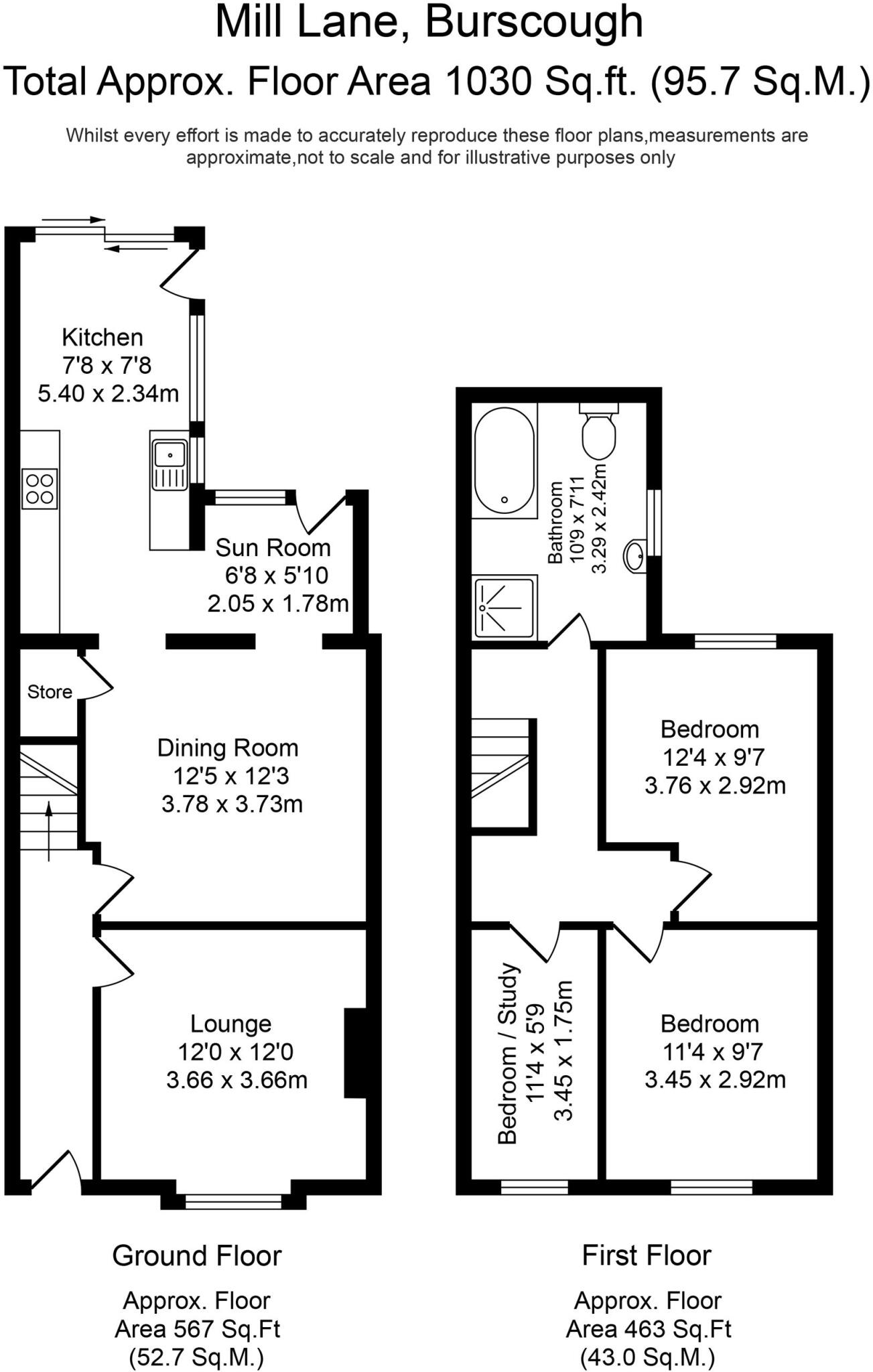
Arnold and Phillips are pleased to offer for sale this beautifully extended three-bedroom mid-terraced cottage, quietly tucked away along the ever-popular Mill Lane, right in the heart of Burscough.Combining traditional charm with thoughtful modern upgrades, this well-balanced home provides a com...
Property Oracle says ..
Therefore, we give this property 7 / 10. *Disclaimer: This is our option and does constitute a recommendation or financial advice. Do your own research. *
- Price
- 8
- Condition
- 8
- Location
- 8
- Land
- 7
- Bedrooms
- 3
- Bathrooms
- 1
- Sqft (est)
- 1,030.00
The heatmap indicates the level of crime in the area. The color of the heatmap indicates the crime severity and recency.
Metrics Year-on-Year
- Average area value
- 382,533.00 £Increased by 3.77 %
- Est sale value
- 379,040.00 £Increased by 5.44 %
- Average area rental value
- 1,090.00 £/moDecreased by 17.67 %
- Est letting value
- 1,030.00 £/moUnchanged by 0.00 %
- Est rental Yield
- 3.42 %Decreased by 20.65 %
- Crime Rate
- 52.00 %Unchanged by 0.00 %
from 368,645.00 £
from 359,470.00 £
from 1,324.00 £/mo
from 1,030.00 £/mo
from 4.31 %
from 52.00 %
Agent Activity
Arnold & Phillips created the listing.
Nearby Schools
| Name | Type | Ofsted | Distance |
|---|---|---|---|
| Burscough Village Primary School | Community School | Good | 0.34 KM |
| Burscough Bridge St John'S Church Of England Primary School | Voluntary Controlled School | Good | 0.36 KM |
| Burscough Bridge Methodist School | Voluntary Controlled School | Good | 0.36 KM |
| The Grove Youth, Community & Children'S Centre | Children's Centre | 0.41 KM | |
| Burscough Priory Academy | Academy Sponsor Led | 0.48 KM |
Images
Nearby Streets
| Name | Average Price | Average Sqft | Distance |
|---|---|---|---|
| Mill Stone Court | £ 0 | 0 | 0.00 KM |
| Clayton Gardens | £ 379,950 | 0 | 0.00 KM |
| Thistle Court | £ 225,000 | 0 | 0.00 KM |
| Alexander Close | £ 0 | 0 | 0.00 KM |
| Laburnum Grove | £ 0 | 0 | 0.00 KM |
Nearby Transport
| Name | NLC | TLC | Distance |
|---|---|---|---|
| Burscough Bridge | 2279 | BCB | 0.41 KM |
| Burscough Junction | 2280 | BCJ | 0.46 KM |
| New Lane | 2358 | NLN | 3.12 KM |
| Hoscar | 2399 | HSC | 4.11 KM |
| Rufford | 2315 | RUF | 5.21 KM |
Nearby Listings
| Address | Price | Type | Score | Distance |
|---|---|---|---|---|
| Mill Lane, Burscough, L40 | £ 250,000 | BUY | 7 / 10 | 0.00 KM |
| Langdale Drive, Burscough, Ormskirk, L40 5SE | £ 250,000 | BUY | 6 / 10 | 0.09 KM |
| Lord Street, Burscough, L40 | £ 140,000 | BUY | 6 / 10 | 0.10 KM |
| Langdale Drive, Burscough, L40 | £ 370,000 | BUY | 8 / 10 | 0.10 KM |
| Langdale Drive, Burscough, L40 | £ 275,000 | BUY | 6 / 10 | 0.13 KM |
Nearby Properties
| Address | Price | Distance |
|---|---|---|
| 7 Langdale Drive | £ 187,500 | 0.10 KM |
| 11 Langdale Drive | £ 192,000 | 0.10 KM |
| 15 Langdale Drive | £ 167,500 | 0.10 KM |
| 21 Langdale Drive | £ 245,000 | 0.10 KM |
| 11a Langdale Drive | £ 88,000 | 0.10 KM |