Wootten Bassett Road, Swindon, SN1
By Chancellors
£ 235,000
Reviews
3 out of 5 stars
Chancellors says ..
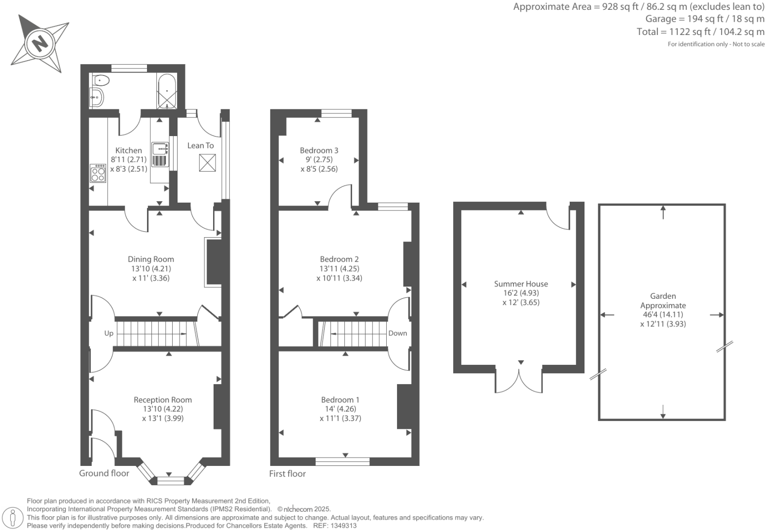
Ideally located, this well-presented three bedroom terraced house offers a perfect blend of character, comfort, and convenience—ideal for families, first-time buyers, or investors alike.
Property Oracle says ..
This is a three-bedroom terraced house located on Wootten Bassett Road, in the Eastcott locality of Swindon. The property offers a mix of modernized and traditional features. The kitchen and bathroom have been updated, while other areas could benefit from some refurbishment. The house includes a garden with both artificial grass and a decked area, providing a functional outdoor space. Its location offers reasonable access to local amenities, schools, and transportation links. The asking price of £235,000 seems fair considering the property’s features and the local market conditions.
Therefore, we give this property 6 / 10. *Disclaimer: This is our option and does constitute a recommendation or financial advice. Do your own research. *
- Price
- 7
- Condition
- 6
- Location
- 7
- Land
- 7
- Bedrooms
- 3
- Bathrooms
- 1
The heatmap indicates the level of crime in the area. The color of the heatmap indicates the crime severity and recency.
Metrics Year-on-Year
- Average area value
- 238,636.00 £Increased by 2.11 %
- Average area rental value
- 982.00 £/moDecreased by 1.70 %
- Est rental Yield
- 4.94 %Decreased by 3.70 %
- Crime Rate
- 9.00 %Unchanged by 0.00 %
Agent Activity
Chancellors created the listing.
Nearby Schools
| Name | Type | Ofsted | Distance |
|---|---|---|---|
| Robert Le Kyng Primary School | Community School | Good | 0.46 KM |
| Utc Swindon | University Technical College | Requires improvement | 1.03 KM |
| The Commonweal School | Academy Converter | Good | 1.35 KM |
| The Deanery Ce Academy | Free Schools | 1.44 KM | |
| East Wichel Primary School & Nursery | Community School | Good | 1.47 KM |
Images
Nearby Streets
| Name | Average Price | Average Sqft | Distance |
|---|---|---|---|
| Turner Street | £ 0 | 0 | 0.00 KM |
| Canal Cottages | £ 0 | 0 | 0.00 KM |
| Marlborough Street | £ 0 | 0 | 0.00 KM |
| Joseph Street | £ 0 | 0 | 0.00 KM |
| Bacon Close | £ 0 | 0 | 0.00 KM |
Nearby Transport
| Name | NLC | TLC | Distance |
|---|---|---|---|
| Swindon (Wilts) | 3333 | SWI | 1.96 KM |
Nearby Listings
| Address | Price | Type | Score | Distance |
|---|---|---|---|---|
| Wootten Bassett Road, Swindon, SN1 | £ 235,000 | BUY | 6 / 10 | 0.00 KM |
| Dunsford Close, Old Town, Swindon, Wiltshire, SN1 | £ 240,000 | BUY | 6 / 10 | 0.04 KM |
| Westcott Place, Town Centre | £ 200,000 | BUY | 5 / 10 | 0.08 KM |
| 218 Kingshill Road, Swindon, Wiltshire, SN1 | £ 140,000 | BUY | 4 / 10 | 0.13 KM |
| Wootton Bassett Road, Swindon, SN1 | £ 240,000 | BUY | 7 / 10 | 0.14 KM |
Nearby Properties
| Address | Price | Distance |
|---|---|---|
| 98 Westcott Place | £ 172,500 | 0.11 KM |
| 103 Westcott Place | £ 147,000 | 0.11 KM |
| 106 Westcott Place | £ 165,000 | 0.11 KM |
| 105 Westcott Place | £ 135,000 | 0.11 KM |
| 102 Westcott Place | £ 160,000 | 0.11 KM |