haart says ..
Modern 2-Bedroom Maisonette on Humber Road, Dartford – Ideal for First-Time Buyers or Investors
Property Oracle says ..
Therefore, we give this property 6 / 10. *Disclaimer: This is our option and does constitute a recommendation or financial advice. Do your own research. *
- Price
- 8
- Condition
- 8
- Location
- 7
- Land
- 3
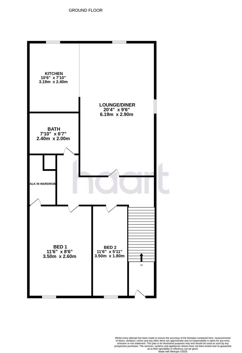
- Bedrooms
- 2
- Bathrooms
- 1
- Sqft (est)
- 493.06
The heatmap indicates the level of crime in the area. The color of the heatmap indicates the crime severity and recency.
Metrics Year-on-Year
- Average area value
- 680,617.00 £Decreased by 16.07 %
- Est sale value
- 220,890.88 £Decreased by 14.18 %
- Average area rental value
- 1,914.00 £/moIncreased by 14.68 %
- Est letting value
- 493.06 £/moUnchanged by 0.00 %
- Est rental Yield
- 3.37 %Increased by 36.44 %
- Crime Rate
- 8.00 %Unchanged by 0.00 %
from 810,933.00 £
from 257,377.32 £
from 1,669.00 £/mo
from 493.06 £/mo
from 2.47 %
from 8.00 %
Agent Activity
haart created the listing.
Nearby Schools
| Name | Type | Ofsted | Distance |
|---|---|---|---|
| Our Lady'S Catholic Primary School, Dartford | Voluntary Aided School | Good | 0.83 KM |
| Holy Trinity Church Of England Primary School, Dartford | Voluntary Aided School | Good | 0.85 KM |
| River Mill Primary School | Free Schools | 0.94 KM | |
| Westgate Primary School | Academy Sponsor Led | Good | 1.02 KM |
| Brent Children'S Centre | Children's Centre | 1.11 KM |
Images
Nearby Streets
| Name | Average Price | Average Sqft | Distance |
|---|---|---|---|
| Victoria Industrial Park | £ 400,000 | 0 | 0.00 KM |
| Riverside Wharf | £ 325,000 | 0 | 0.00 KM |
| Priory Road | £ 0 | 0 | 0.00 KM |
| Victoria Road | £ 0 | 0 | 0.00 KM |
| Burnham Road | £ 0 | 0 | 0.00 KM |
Nearby Transport
| Name | NLC | TLC | Distance |
|---|---|---|---|
| Dartford | 5101 | DFD | 0.77 KM |
| Slade Green | 5154 | SGR | 3.15 KM |
| Crayford | 5100 | CRY | 3.90 KM |
| Purfleet | 7453 | PFL | 4.11 KM |
| Erith | 5104 | ERH | 5.44 KM |
Nearby Listings
| Address | Price | Type | Score | Distance |
|---|---|---|---|---|
| Humber Road, Dartford | £ 250,000 | BUY | 6 / 10 | 0.00 KM |
| Kenwyn Road, Dartford, Kent, DA1 | £ 325,000 | BUY | 7 / 10 | 0.05 KM |
| Creek Mill Way, Waterford Place, Dartford, Kent, DA1 | £ 270,000 | BUY | 7 / 10 | 0.06 KM |
| Kenwyn Road, Dartford, Kent, DA1 | £ 270,000 | BUY | Unknown | 0.06 KM |
| Kenwyn Road, Dartford, DA1 2TH | £ 160,000 | BUY | 6 / 10 | 0.07 KM |
Nearby Properties
| Address | Price | Distance |
|---|---|---|
| 108 Creek Mill Way | £ 450,000 | 0.06 KM |
| 92 Creek Mill Way | £ 256,000 | 0.06 KM |
| 109 Creek Mill Way | £ 400,000 | 0.06 KM |
| 116 Creek Mill Way | £ 245,000 | 0.06 KM |
| 78 Creek Mill Way | £ 260,000 | 0.06 KM |