Yopa says ..
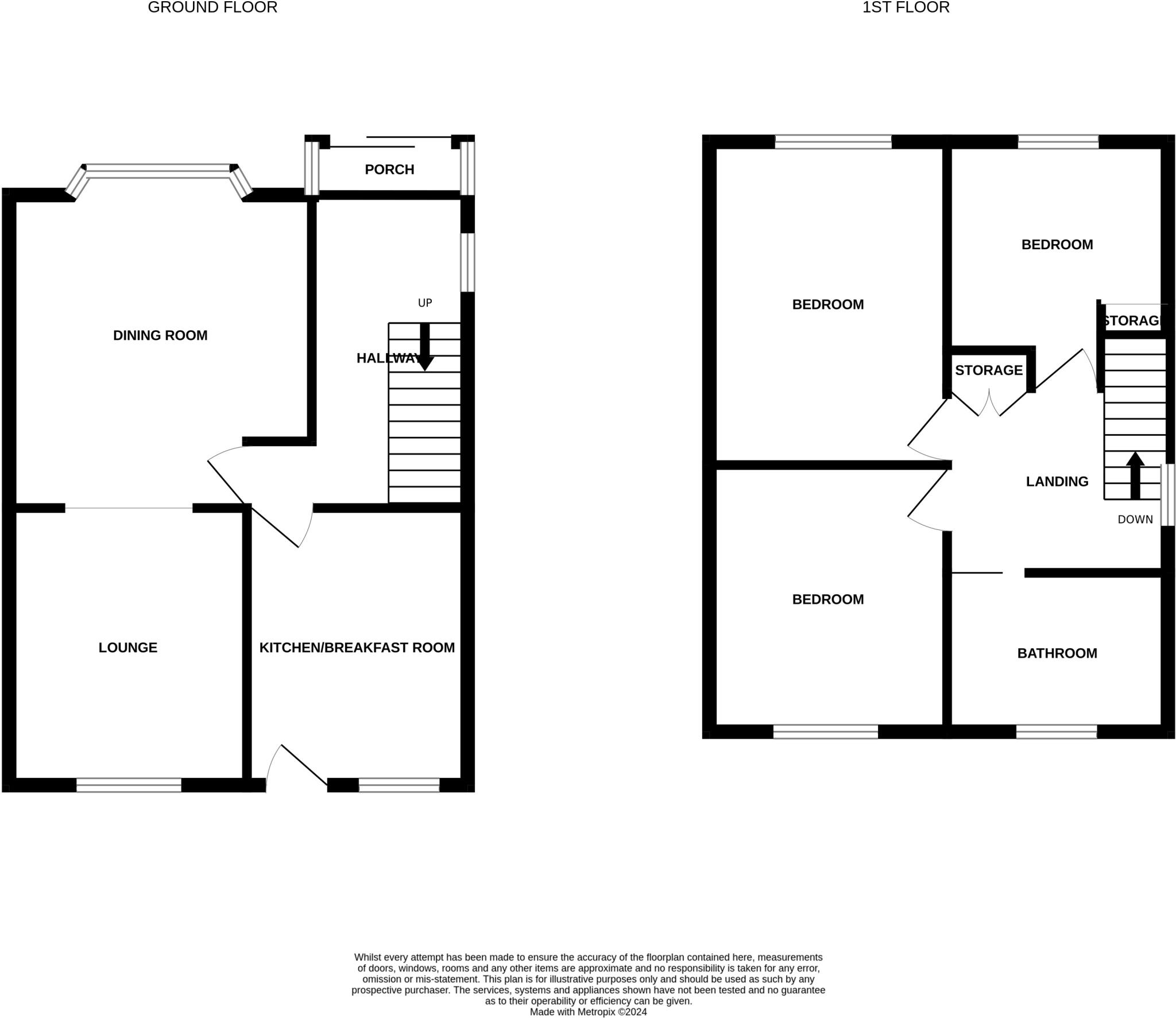
This three-bedroom end of terrace property in Norris Green, Liverpool L11, is a promising opportunity for families and investors alike. With its spacious layout, potential for modernisation, and prime location, it is an ideal choice for those looking to create their dream home.
Property Oracle says ..
This end-of-terrace property on Abdale Road, Liverpool, offers three bedrooms and one bathroom. While the property requires some updating, it presents a solid opportunity for buyers looking to add value through renovation. The location is convenient, with nearby schools and transportation links. The garden is a definite plus, and the price per square foot is attractive compared to the local average.
Therefore, we give this property 6 / 10. *Disclaimer: This is our option and does constitute a recommendation or financial advice. Do your own research. *
- Price
- 8
- Condition
- 5
- Location
- 6
- Land
- 7
- Bedrooms
- 3
- Bathrooms
- 1
- Sqft (est)
- 710.00
The heatmap indicates the level of crime in the area. The color of the heatmap indicates the crime severity and recency.
Metrics Year-on-Year
- Average area value
- 282,843.00 £Decreased by 1.29 %
- Est sale value
- 190,280.00 £Decreased by 3.60 %
- Average area rental value
- 1,092.00 £/moDecreased by 6.75 %
- Est letting value
- 710.00 £/moUnchanged by 0.00 %
- Est rental Yield
- 4.63 %Decreased by 5.51 %
- Crime Rate
- 4.00 %Unchanged by 0.00 %
Agent Activity
Yopa created the listing.
Nearby Schools
| Name | Type | Ofsted | Distance |
|---|---|---|---|
| Our Lady And St Philomena'S Catholic Primary School | Voluntary Aided School | Good | 0.47 KM |
| Ranworth Square Primary School | Community School | Good | 0.49 KM |
| St Teresa Of Lisieux Catholic Primary School | Voluntary Aided School | Good | 0.72 KM |
| Wellesbourne Community Primary School | Community School | Good | 0.86 KM |
| Ellergreen Nursery School And Childcare Centre | Local Authority Nursery School | Outstanding | 0.90 KM |
Images
Nearby Streets
| Name | Average Price | Average Sqft | Distance |
|---|---|---|---|
| Braybrooke Road | £ 0 | 0 | 0.00 KM |
| Lower Lane | £ 200,000 | 0 | 0.00 KM |
| Serinhall Drive | £ 0 | 0 | 0.00 KM |
| Coleshill Road | £ 150,000 | 0 | 0.00 KM |
| Faversham Road | £ 110,000 | 0 | 0.00 KM |
Nearby Transport
| Name | NLC | TLC | Distance |
|---|---|---|---|
| Fazakerley | 2126 | FAZ | 2.42 KM |
| Kirkby (Merseyside) | 2124 | KIR | 4.36 KM |
| Aintree | 2125 | AIN | 4.42 KM |
| Rice Lane | 2131 | RIL | 4.42 KM |
| Orrell Park | 2247 | OPK | 4.62 KM |
Nearby Listings
| Address | Price | Type | Score | Distance |
|---|---|---|---|---|
| Abdale Road, Liverpool, L11 | £ 125,000 | BUY | 6 / 10 | 0.00 KM |
| Abdale Road, Liverpool, L11 | £ 120,000 | BUY | 6 / 10 | 0.03 KM |
| Prestbury Road, Liverpool, Merseyside, L11 | £ 185,000 | BUY | 7 / 10 | 0.07 KM |
| Hasel Beach, Liverpool, Merseyside | £ 140,000 | BUY | 7 / 10 | 0.18 KM |
| Stockmoor Road, Liverpool, L11 | £ 165,000 | BUY | 7 / 10 | 0.23 KM |
Nearby Properties
| Address | Price | Distance |
|---|---|---|
| 37 Abdale Road | £ 45,000 | 0.01 KM |
| 29 Abdale Road | £ 68,000 | 0.01 KM |
| 36 Abdale Road | £ 130,000 | 0.01 KM |
| 22 Abdale Road | £ 162,400 | 0.01 KM |
| 26 Abdale Road | £ 95,000 | 0.01 KM |