Chandler Court, Holmwood Gardens, Wallington
CR

Chandler Court, Holmwood Gardens, Wallington

By Cromwells Estate Agents

£ 325,000

Reviews

2 out of 5 stars

Cromwells Estate Agents says ..

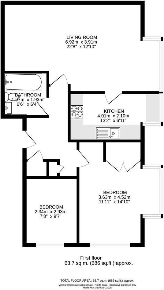
A chance to acquire a spacious and well presented two bedroom first floor apartment, situated in a prime central Wallington location. An ideal purchase for first time buyers and investors alike! This lovely property has a modern and bright interior and offers spacious room sizes with a 2...

Property Oracle says ..

Therefore, we give this property 5 / 10. *Disclaimer: This is our option and does constitute a recommendation or financial advice. Do your own research. *

Price
5
Condition
6
Location
7
Land
5
Bedrooms
2
Bathrooms
1
Sqft (est)
685.66

The heatmap indicates the level of crime in the area. The color of the heatmap indicates the crime severity and recency.

Metrics Year-on-Year

Average area value
390,889.00 £
Decreased by 11.83 %
from 443,359.00 £
Est sale value
144,674.26 £
Decreased by 58.30 %
from 346,943.96 £
Average area rental value
1,585.00 £/mo
Increased by 1.41 %
from 1,563.00 £/mo
Est letting value
0.00 £/mo
Decreased by 100.00 %
from 685.66 £/mo
Est rental Yield
4.87 %
Increased by 15.13 %
from 4.23 %
Crime Rate
10.00 %
Unchanged by 0.00 %
from 10.00 %

Agent Activity

  • Cromwells Estate Agents created the listing.

Nearby Schools

NameTypeOfstedDistance
Collingwood SchoolOther Independent School0.52 KM
All Saints Carshalton Church Of England Primary SchoolAcademy ConverterGood1.03 KM
Stanley Park Infants SchoolAcademy Converter1.17 KM
Stanley Park Junior SchoolFoundation SchoolGood1.17 KM
Stanley Park Children'S CentreChildren's Centre1.17 KM

Images

IMG_0004.jpg IMG_0051.jpg IMG_0054.jpg IMG_0040.jpg 482c497d-4d8a-4370-9ebe-18bd11484bbc.jpg IMG_0074.jpg 48351c42-e530-426c-bdc8-b5f64faf6a08.jpg IMG_0007.jpg 0443db10-90d9-455f-af30-a9986c8a2db5.jpg 98300278-d826-4251-916b-da411616c70d.jpg 66b668d8-0396-4406-80b2-58f7e9df0757.jpg cfda100f-0890-4861-809b-6c8dc17a4c92.jpg IMG_0017.jpg 7df2f20e-a457-4bfc-9efb-c71437ddc230.jpg IMG_0013.jpg 71d67077-964f-4ad6-85c9-2cf709f5d9f0.jpg IMG_0080.jpg IMG_0010.jpg

Nearby Streets

NameAverage PriceAverage SqftDistance
Runnymede Court £ 250,00000.00 KM
Chestnut Court £ 710,00000.00 KM
Stag Court £ 000.00 KM
Denmore Court £ 000.00 KM
Cavalier Close £ 270,00000.00 KM

Nearby Transport

NameNLCTLCDistance
Wallington5394WLT0.41 KM
Carshalton Beeches5406CSB1.82 KM
Carshalton5405CSH1.88 KM
Hackbridge5364HCB2.25 KM
Mitcham Junction5427MIJ3.96 KM

Nearby Listings

AddressPriceTypeScoreDistance
Chandler Court, Holmwood Gardens, Wallington £ 325,000BUY5 / 100.00 KM
Holmwood Gardens, Wallington, SM6 £ 250,000BUYUnknown0.04 KM
Holmwood Gardens, Wallington, SM6 £ 1,400,000BUYUnknown0.05 KM
Holmwood Gardens, Wallington, Surrey £ 170,000BUY5 / 100.07 KM
Holmwood Gardens, Wallington, SM6 £ 110,000BUYUnknown0.07 KM

Nearby Properties

AddressPriceDistance
16a Holmwood Gardens £ 675,0000.04 KM
14 Holmwood Gardens £ 860,0000.05 KM
4 Holmwood Gardens £ 1,136,0000.05 KM
54 Beddington Gardens £ 476,0000.18 KM
25 Beddington Gardens £ 360,0000.18 KM