Pearson Ferrier says ..
Pearson Ferrier are delighted to bring to the market this stunning and newly refurbished first-floor purpose-built flat, ideally suited to Buy-to-Let property investors with an expected rental potential of circa £800–£825 PCM. This immaculate one-bedroom purpose built flat has been refur...
Property Oracle says ..
This is a one-bedroom flat in Unsworth, Bury. The property appears to be in good, modern condition, with a recently updated kitchen and bathroom. It is located within a reasonable distance of local schools and amenities. The flat is listed at £100,000, which is significantly below the average property price for the area, making it a potentially attractive purchase for first-time buyers or investors. The lack of private outdoor space may be a drawback for some buyers. The property is modern and doesn’t appear to need any renovation.
Therefore, we give this property 6 / 10. *Disclaimer: This is our option and does constitute a recommendation or financial advice. Do your own research. *
- Price
- 9
- Condition
- 8
- Location
- 7
- Land
- 3
- Bedrooms
- 1
- Bathrooms
- 1
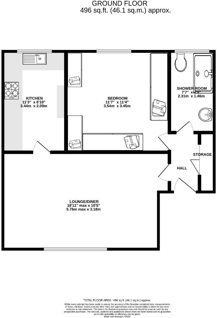
- Sqft (est)
- 476.68
The heatmap indicates the level of crime in the area. The color of the heatmap indicates the crime severity and recency.
Metrics Year-on-Year
- Average area value
- 423,750.00 £Increased by 20.30 %
- Est sale value
- 248,350.28 £Increased by 28.64 %
- Average area rental value
- 1,712.00 £/moIncreased by 1.36 %
- Est letting value
- 953.36 £/moIncreased by 100.00 %
- Est rental Yield
- 4.85 %Decreased by 15.65 %
- Crime Rate
- 0.00 %
Agent Activity
Pearson Ferrier created the listing.
Nearby Schools
| Name | Type | Ofsted | Distance |
|---|---|---|---|
| St Bernadette'S Roman Catholic Primary School, Whitefield | Voluntary Aided School | Good | 0.31 KM |
| Elms Bank | Academy Special Converter | 0.57 KM | |
| All Saints Church Of England Primary School, Stand | Voluntary Controlled School | Good | 0.85 KM |
| Sunny Bank Primary School | Academy Converter | Good | 0.88 KM |
| Unsworth Primary School | Academy Converter | 1.47 KM |
Images
Nearby Streets
| Name | Average Price | Average Sqft | Distance |
|---|---|---|---|
| Lavenham Close | £ 117,500 | 0 | 0.00 KM |
| Highfield Lane | £ 0 | 0 | 0.00 KM |
| Manchester Road | £ 200,000 | 0 | 0.00 KM |
| Selby Avenue | £ 0 | 0 | 0.00 KM |
| North View | £ 495,000 | 0 | 0.00 KM |
Nearby Transport
| Name | NLC | TLC | Distance |
|---|---|---|---|
| Clifton (Manchester) | 2795 | CLI | 4.85 KM |
| Swinton (Manchester) | 2800 | SNN | 7.03 KM |
| Moorside | 2799 | MSD | 8.10 KM |
| Salford Crescent | 2794 | SLD | 8.50 KM |
| Kearsley (Manchester) | 2605 | KSL | 9.17 KM |
Nearby Listings
| Address | Price | Type | Score | Distance |
|---|---|---|---|---|
| Lavenham Close, Bury | £ 100,000 | BUY | 6 / 10 | 0.00 KM |
| Manchester Road, Bury, Greater Manchester, BL9 | £ 140,000 | BUY | Unknown | 0.04 KM |
| Appleby Gardens, Manchester Road, Bury | £ 115,000 | BUY | 6 / 10 | 0.04 KM |
| Manchester Road, Bury, Greater Manchester, BL9 | £ 330,000 | BUY | 6 / 10 | 0.05 KM |
| Highfield Lane, Bury | £ 200,000 | BUY | Unknown | 0.12 KM |
Nearby Properties
| Address | Price | Distance |
|---|---|---|
| 24 Lavenham Close | £ 50,000 | 0.02 KM |
| 58 Lavenham Close | £ 27,500 | 0.02 KM |
| 52 Lavenham Close | £ 45,000 | 0.02 KM |
| 30 Lavenham Close | £ 80,600 | 0.02 KM |
| 8 Lavenham Close | £ 72,000 | 0.02 KM |