Cranley House, East Montrose Street, Helensburgh, G84 7ER
By Clyde Property
£ 775,000
Reviews
4 out of 5 stars
Clyde Property says ..
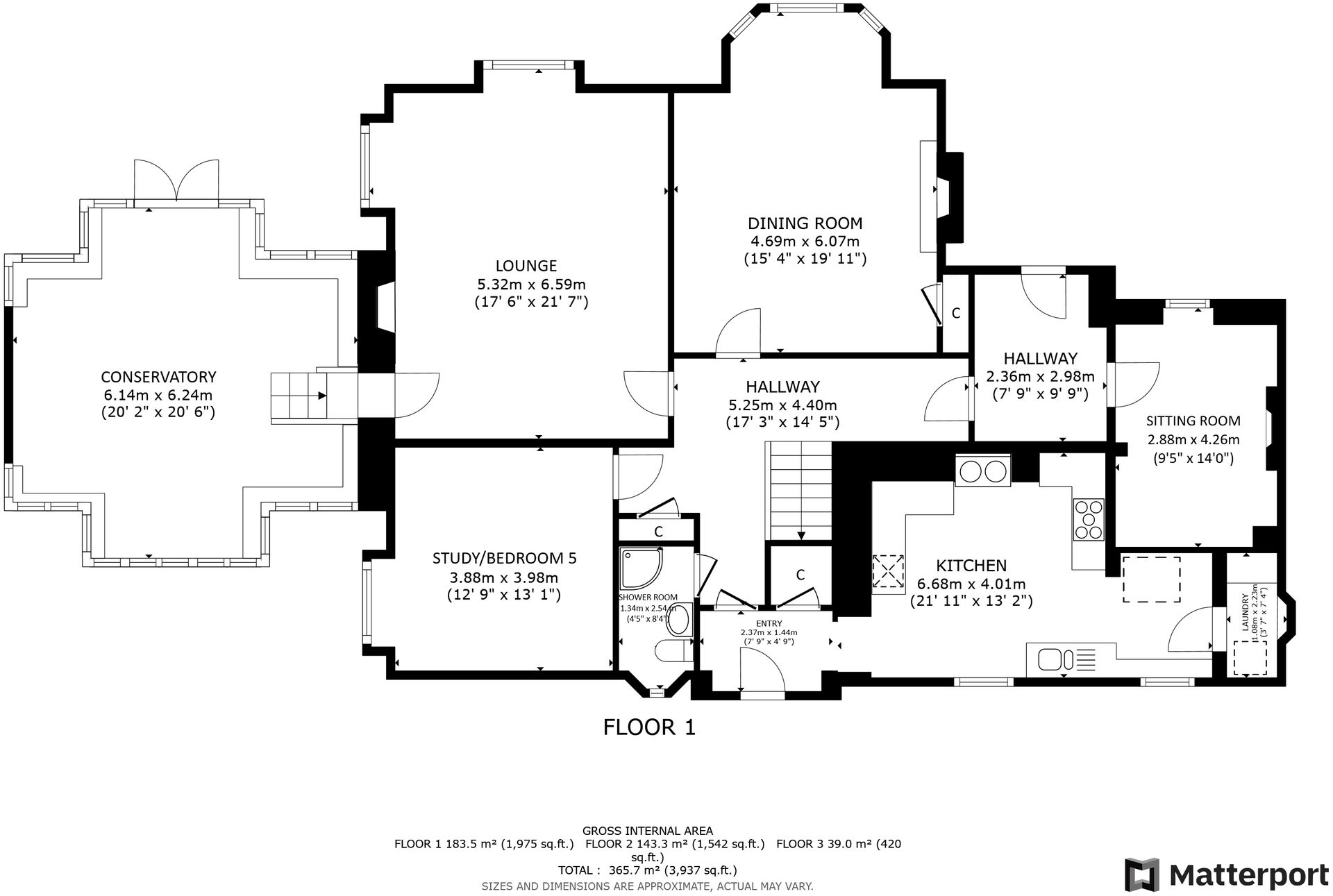
Cranley House is a substantial detached villa, arranged over two storeys with an additional attic floor, occupying a fantastic corner position between Charlotte Street and East Montrose Street.
Property Oracle says ..
Cranley House is a substantial detached property located in a desirable area of Helensburgh. The house features five bedrooms, three bathrooms, and a large, well-maintained garden. The interiors are tastefully decorated and appear to be in good condition. The property also benefits from a conservatory and a study. The location is convenient, with easy access to transportation and local amenities. While the list price is higher than the average for the area, the property’s size, condition, and location could justify the premium.
Therefore, we give this property 8 / 10. *Disclaimer: This is our option and does constitute a recommendation or financial advice. Do your own research. *
- Price
- 7
- Condition
- 8
- Location
- 8
- Land
- 9
- Bedrooms
- 5
- Bathrooms
- 3
The heatmap indicates the level of crime in the area. The color of the heatmap indicates the crime severity and recency.
Metrics Year-on-Year
- Average area value
- 277,375.00 £Increased by 18.74 %
- Average area rental value
- 1,798.00 £/moIncreased by 109.56 %
- Est rental Yield
- 7.78 %Increased by 76.42 %
- Crime Rate
- 0.00 %
Agent Activity
Clyde Property created the listing.
Images
Nearby Streets
| Name | Average Price | Average Sqft | Distance |
|---|---|---|---|
| Charolette Street | £ 149,000 | 0 | 0.00 KM |
| Abercromby Street East | £ 0 | 0 | 0.00 KM |
| Stafford Street | £ 0 | 0 | 0.00 KM |
| West Montrose Street | £ 360,091 | 0 | 0.00 KM |
| Maclachlan Place | £ 0 | 0 | 0.00 KM |
Nearby Transport
| Name | NLC | TLC | Distance |
|---|---|---|---|
| Helensburgh Central | 9981 | HLC | 0.72 KM |
| Helensburgh Upper | 9982 | HLU | 0.81 KM |
| Craigendoran | 9970 | CGD | 2.08 KM |
| Cartsdyke | 9680 | CDY | 7.09 KM |
| Greenock Central | 9681 | GKC | 7.32 KM |
Nearby Listings
| Address | Price | Type | Score | Distance |
|---|---|---|---|---|
| Cranley House, East Montrose Street, Helensburgh, G84 7ER | £ 775,000 | BUY | 8 / 10 | 0.00 KM |
| East Argyle Street, Helensburgh, Argyll And Bute, G84 | £ 155,000 | BUY | 7 / 10 | 0.18 KM |
| Honeysuckle Court, 68a East King Street, Helensburgh, Dunbartonshire, G84 | £ 175,000 | BUY | 6 / 10 | 0.22 KM |
| Honeysuckle Court, East King Street, Helensburgh, Argyll And Bute, G84 | £ 175,000 | BUY | 6 / 10 | 0.22 KM |
| George Street, Helensburgh, Argyll and Bute, G84 | £ 760,000 | BUY | 7 / 10 | 0.29 KM |