Whittley Parish says ..
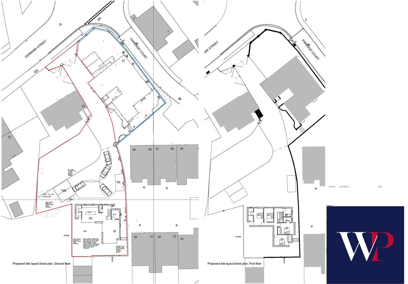
*Development Opportunity* A rare opportunity to acquire a spacious house alongside a separate building plot, complete with planning consent for a large, four-bedroom detached property.
Property Oracle says ..
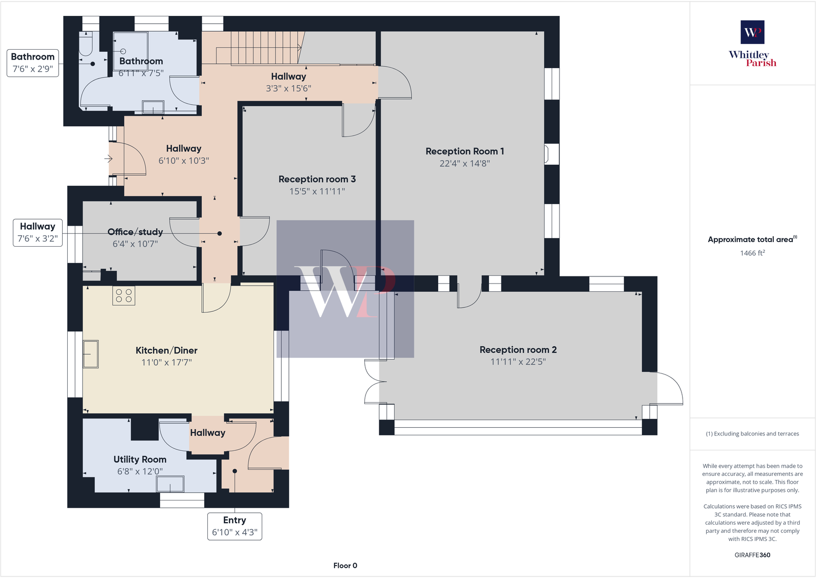
This property is located in Diss, Norfolk, and benefits from being close to local amenities and schools. The nearby Diss High School has a good Ofsted rating. Transport links are also convenient, with Diss train station approximately 2km away. The property itself is a detached house with a sizeable plot, offering ample outdoor space. The images show the property to be in need of modernisation, with dated interiors and some exterior maintenance required. While the plot size is generous, the garden appears slightly overgrown. The list price is significantly higher than the average house price in the area, however, it is a detached property with a larger than average plot size. The lack of comparable property data in terms of square footage makes a definitive price per square foot comparison difficult. However, based on the available data and the condition of the property, the price may be considered on the higher side.
Therefore, we give this property 6 / 10. *Disclaimer: This is our option and does constitute a recommendation or financial advice. Do your own research. *
- Price
- 6
- Condition
- 5
- Location
- 7
- Land
- 7
- Bedrooms
- 3
- Bathrooms
- 3
- Sqft (est)
- 1,968.93
- Lot (est)
- 2,236.00
The heatmap indicates the level of crime in the area. The color of the heatmap indicates the crime severity and recency.
Metrics Year-on-Year
- Average area value
- 223,333.00 £Decreased by 25.65 %
- Est sale value
- 582,803.28 £Decreased by 1.99 %
- Average area rental value
- 1,067.00 £/moIncreased by 8.66 %
- Est letting value
- 1,968.93 £/mo
- Est rental Yield
- 5.73 %Increased by 46.17 %
- Crime Rate
- 10.00 %Unchanged by 0.00 %
Agent Activity
Whittley Parish created the listing.
Nearby Schools
| Name | Type | Ofsted | Distance |
|---|---|---|---|
| Diss Church Of England Junior Academy | Academy Sponsor Led | 0.72 KM | |
| Diss High School | Academy Converter | Good | 1.16 KM |
| Diss Children'S Centre | Children's Centre | 1.16 KM | |
| Palgrave Church Of England Primary School | Academy Converter | Good | 1.31 KM |
| Diss Infant Academy And Nursery | Academy Converter | 1.35 KM |
Images
Nearby Streets
| Name | Average Price | Average Sqft | Distance |
|---|---|---|---|
| Manor Gardens | £ 0 | 0 | 0.00 KM |
| Market Place | £ 0 | 0 | 0.00 KM |
| Cotman Close | £ 0 | 0 | 0.00 KM |
| Saint Mary's Court | £ 115,000 | 0 | 0.00 KM |
| Williamson Close | £ 0 | 0 | 0.00 KM |
Nearby Transport
| Name | NLC | TLC | Distance |
|---|---|---|---|
| Diss | 7348 | DIS | 2.03 KM |
Nearby Listings
| Address | Price | Type | Score | Distance |
|---|---|---|---|---|
| Denmark Street, Diss | £ 625,000 | BUY | 6 / 10 | 0.00 KM |
| Denmark Street, Diss | £ 400,000 | BUY | 5 / 10 | 0.00 KM |
| Denmark Street, Diss | £ 300,000 | BUY | 5 / 10 | 0.00 KM |
| Denmark Street, Diss | £ 170,000 | BUY | 6 / 10 | 0.00 KM |
| Denmark Street, Diss | £ 290,000 | BUY | Unknown | 0.00 KM |
Nearby Properties
| Address | Price | Distance |
|---|---|---|
| 27 Denmark Street | £ 210,000 | 0.01 KM |
| 17 Denmark Street | £ 350,000 | 0.01 KM |
| 8a Denmark Street | £ 92,000 | 0.01 KM |
| 14a Denmark Street | £ 350,000 | 0.01 KM |
| 12 Denmark Street | £ 175,000 | 0.01 KM |