Common Road, Claygate, Esher, KT10
By Curchods Estate Agents
£ 495,000
Reviews
3 out of 5 stars
Curchods Estate Agents says ..
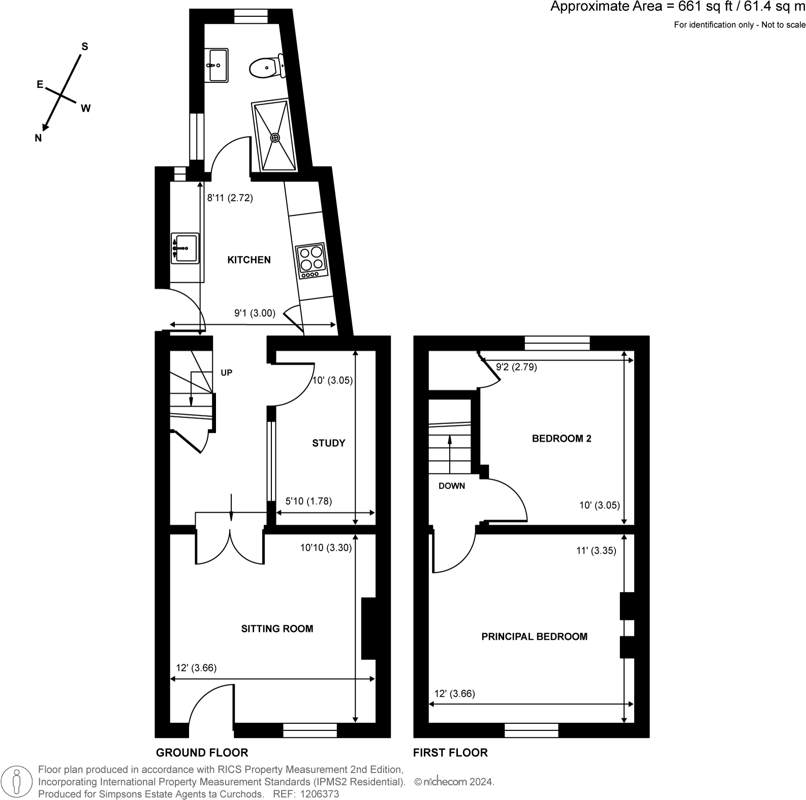
This beautifully refurbished two-bedroom end-of-terrace cottage combines modern comfort with timeless charm. Finished to an impeccable standard, this home offers a welcoming sitting room, a cozy study/snug, and a stylish, fully-fitted kitchen designed for both practicality and style. As well as t...
Property Oracle says ..
This two-bedroom, end-of-terrace cottage in Claygate, Surrey, presents as a well-maintained property following what appears to be a recent refurbishment. The interior showcases a modern kitchen and bathroom, suggesting upgrades that enhance convenience and appeal. The property’s location on Common Road offers convenient access to Claygate station, making it an attractive option for commuters. The presence of a garden provides outdoor space, although it’s not overly large. The overall condition is good, with the presented photos indicating a clean, updated interior. However, additional information on the plot size and more detailed specifications would allow for a more precise evaluation. The asking price of £495,000 falls within a reasonable range for a property of this size and type in the Claygate area, considering the renovations and proximity to transport links. Further clarification regarding the overall condition and size of the plot would allow for a more definitive analysis of value.
Therefore, we give this property 6 / 10. *Disclaimer: This is our option and does constitute a recommendation or financial advice. Do your own research. *
- Price
- 7
- Condition
- 8
- Location
- 7
- Land
- 4
- Bedrooms
- 2
- Bathrooms
- 1
- Sqft (est)
- 661.00
The heatmap indicates the level of crime in the area. The color of the heatmap indicates the crime severity and recency.
Metrics Year-on-Year
- Average area value
- 863,333.00 £Decreased by 17.46 %
- Est sale value
- 499,716.00 £Increased by 20.77 %
- Average area rental value
- 3,019.00 £/moDecreased by 13.47 %
- Est letting value
- 1,322.00 £/moUnchanged by 0.00 %
- Est rental Yield
- 4.20 %Increased by 5.00 %
- Crime Rate
- 29.00 %Unchanged by 0.00 %
Agent Activity
Curchods Estate Agents marked this listing as sold.
Curchods Estate Agents created the listing.
Nearby Schools
| Name | Type | Ofsted | Distance |
|---|---|---|---|
| Claygate & Oxshott Sure Start Children'S Centre | Children's Centre | 0.55 KM | |
| Rowan Preparatory School | Other Independent School | 0.93 KM | |
| Claygate Primary School | Foundation School | Requires improvement | 0.96 KM |
| West Chessington Children'S Centre | Children's Centre | 2.02 KM | |
| Lovelace Primary School | Community School | Good | 2.02 KM |
Images
Nearby Streets
| Name | Average Price | Average Sqft | Distance |
|---|---|---|---|
| Firs Close | £ 235,000 | 0 | 0.00 KM |
| Meadow Road | £ 0 | 0 | 0.00 KM |
Nearby Transport
| Name | NLC | TLC | Distance |
|---|---|---|---|
| Claygate | 5556 | CLG | 1.50 KM |
| Hinchley Wood | 5591 | HYW | 1.81 KM |
| Chessington South | 5554 | CSS | 2.96 KM |
| Esher | 5558 | ESH | 3.04 KM |
| Thames Ditton | 5610 | THD | 3.29 KM |
Nearby Listings
| Address | Price | Type | Score | Distance |
|---|---|---|---|---|
| Common Road, Claygate, Esher, KT10 | £ 270,000 | BUY | Unknown | 0.00 KM |
| Common Road, Claygate, Esher, KT10 | £ 495,000 | BUY | 6 / 10 | 0.00 KM |
| Common Road, Claygate, Esher | £ 270,000 | BUY | Unknown | 0.01 KM |
| Common Road, Claygate, KT10 | £ 550,000 | BUY | 8 / 10 | 0.04 KM |
| Common Road, Claygate, KT10 | £ 875,000 | BUY | Unknown | 0.08 KM |
Nearby Properties
| Address | Price | Distance |
|---|---|---|
| 27 Common Road | £ 540,000 | 0.05 KM |
| 25 Common Road | £ 677,500 | 0.05 KM |
| 31 Common Road | £ 585,000 | 0.05 KM |
| 17 Common Road | £ 310,000 | 0.05 KM |
| 15 Common Road | £ 570,000 | 0.05 KM |